A lakásfelújítás alapvető célkitűzése egy olyan élettér megteremtése volt, amely a tulajdonos lányának lesz majd első otthona. A minőség és az otthonosság fontos szempontok voltak, de a költséghatékonyság és a strapabíró anyaghasználat is kiemelt szerepet kaptak. A vizuális koncepció a frissességre, a zöldellő tavaszi hangulatra és a világos tónusokra épül, amelyet a gondosan megválasztott textíliák és tapéták tesznek teljessé.
A projekt során az átlagos adottságokkal rendelkező ingatlant személyre szabott, mégis rugalmasan használható otthonná formálták, ahol a készletről vásárolt bútorok és az egyedi asztalosmunkák harmonikus egységet alkotnak.

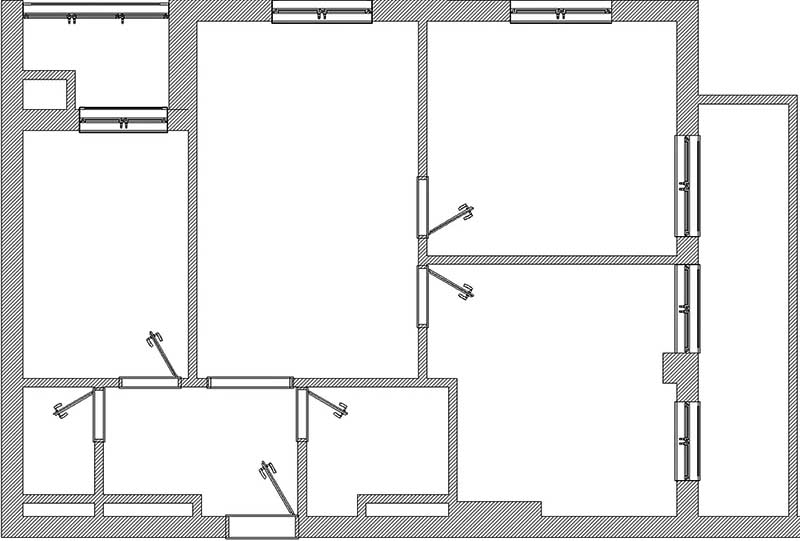
Térszervezés és alaprajzi korrekciók
Az eredeti alaprajz alapvetően kedvező adottságokkal bírt: három szoba, két vizesblokk, valamint egy nagy erkély és egy lodzsa állt rendelkezésre. A felújítás során végzett átalakítások nem drasztikusak, de annál hatékonyabbak voltak a funkciók tisztázása érdekében.
A gázüzemű konyha miatt elengedhetetlen volt a tér leválasztásának lehetősége, ezért a konyha és a nappali közé egy elegáns, könnyed, üvegezett tolóajtó került. A folyosóról nyíló eredeti konyhai bejáratot megszüntették, a bejutás immár a nappalin keresztül történik, így a közlekedő fala beépíthetővé vált. Változás történt a privát zónák kialakításában is: a fürdőszoba bejáratát áthelyezték, így az már közvetlenül a hálószobából nyílik, egy önálló lakosztály-jellegű blokkot létrehozva. A vendég WC továbbra is a közlekedőből érhető el.
Előszoba
A tárolásról egy egyedileg gyártott, mennyezetig érő beépített szekrény gondoskodik. Ez a külső akasztókkal is felszerelt bútor nem csupán a kabátoknak, ruháknak ad helyet, hanem technikai funkciókat is ellát: elrejti az elektromos elosztószekrényt és az internetes kábelezést, valamint külön háztartási részleget biztosít a porszívó és a tisztítószerek számára. Ötletes megoldás a nyitható tükör, amely mögött a kulcsok számára kialakított akasztók bújnak meg, így a felületek mindig rendezettek maradnak.
Mellékhelyiség
A WC-ben két, később a konyhában visszaköszönő dekorációs elem a meghatározó: a beépített tartály fölötti falat friss hangulatú tapétával díszítették, a kis mosdó melletti falat pedig a konyha hátfalon is használt zöld csempe díszíti.
Konyha
A konyha kialakításánál a gépészet esztétikus elrejtése volt az egyik legnagyobb kihívás. A páraelszívó kivezetését egy gipszkarton dobozolással takarták el, amelyet díszlécekkel és a helyiség karakterét megadó tapétával díszítettek, így a kényszermegoldásból látványos fókuszpont született. A helyiségben a munkapult megvilágítását célzott fényforrások, míg a bárpult hangulatát függeszték biztosítják.
Ez is érdekelhet: Egyetemista lányának rendezte be a tervező a 33m2-es lakást
A konyhabútorban kapott helyet a mosógép is, ami praktikus döntésnek bizonyult, mivel a ruhaszárítást a közvetlenül kapcsolódó erkélyen oldják meg.
Ez is érdekelhet: Egyetemista lányuknak rendezték be a szülők a 40 m²-es, egyszobás lakást
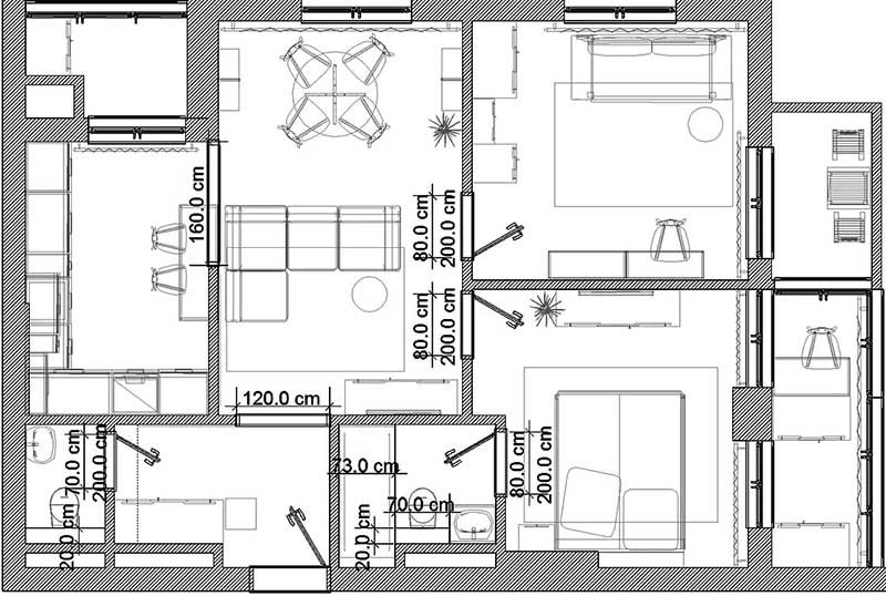
Nappali
A nappali immár nem csupán közlekedő, hanem a lakás valódi szíve. A padlót halszálkás lerakású Egger laminált parketta borítja, amely klasszikus eleganciát kölcsönöz a térnek. A világítási koncepció itt is többrétű: az étkezőasztal felett egy karakteres függeszték dominál, míg a szoba általános megvilágításáról süllyesztett Eglo Fueva lámpák gondoskodnak. A fények kapcsolása több pontról – a bejárat, a konyha és a hálószobák felől is – vezérelhető, növelve a komfortérzetet.
A bútorozásnál a költséghatékonyság jegyében számos IKEA elem került beépítésre, amelyeket egyedi kiegészítőkkel tettek személyesebbé.
Vendégszoba és dolgozó
A harmadik szoba jelenleg dolgozószobaként és vendégszobaként funkcionál, de a későbbiekben könnyedén gyerekszobává alakítható. A tárolást itt is maximalizálták: a ruhásszekrények mellett nyitott polcrendszerek biztosítanak helyet a könyveknek és dokumentumoknak. A munkaállomás megvilágítására külön figyelmet fordítottak, biztosítva a koncentrált munkavégzés feltételeit.
Hálószoba
A háló egyik falán lévő kiugrást a tervezés során nem elfedni, hanem kiemelni igyekeztek egy eltérő falszínnel. Mivel emiatt az ágy nem tolható teljesen a falhoz, a fejtámla mögött egy polcot alakítottak ki, amely éjjeliszekrényként is funkcionál.
A szoba dekorációjának egyik legizgalmasabb eleme a Seletti majmos falilámpája. Bár a piacon számos olcsóbb másolat elérhető, a tulajdonosok a tervezői javaslatra az eredeti, olasz design darab mellett döntöttek, amely játékosságot visz a térbe, rímelve a Grandeco Natural Forest tapéta levél mintázatára.
A hálószobához kapcsolódó, eredetileg nyitott erkélyt részben beépítették és a szobához csatolták. A teret zónákra osztották: az egyik felében a PAX gardróbrendszer kapott helyet, míg a másik oldalon egy női pipereasztal került kialakításra, így egy világos, budoár-jellegű sarkot hoztak létre.
Fürdőszoba: En-suite kényelem
A hálószobából nyíló fürdőszoba a relaxáció helyszíne. A minőségi szaniterek – mint a Ravak kád, a Geberit beépített tartályos rendszere és a Jacob Delafon mosdók – hosszú távú tartósságot ígérnek. A világítás itt is hangulatteremtő eszköz: a mosdószekrény alatti LED-szalag és a tükör melletti függesztékek intimitást adnak a térnek, kiegészítve a mennyezeti fővilágítást. A csaptelepek esetében a választás a megbízható Grohe és Paffoni márkákra esett.
Az ingatlan felújítása során néhány ésszerű fal-átalakítással és a funkciók újragondolásával növelték a lakás használati értékét. Az egységes anyaghasználat – a meleg hatású laminált padló és a visszatérő burkolatok – vizuálisan tágasabbá és összefogottabbá teszi a teret, míg a merészebb tapéták és design lámpák egyedi karakterrel ruházzák fel az otthont.
további cikkek 50 és 100n2 közötti lakások lakberendezése témában | lakberendezés: Tatiana Petrova | fotók: Andrei Semchenko






































