Az egyszobás lakást a szülők képzőművészeti egyetemre készülő lányuk számára rendezték be. A feladat egy a kényelmes élethez és tanuláshoz megfelelő hangulatos enteriőr létrehozása volt, elegendő tárolóhely biztosításával. A lakás korábban a szülők nagymamájáé volt, ezért a projekt során úgy döntöttek, hogy megőriznek néhány retró elemet, amelyek a meghittség és otthonosság hangulatát idézik.

Elosztás és átalakítások
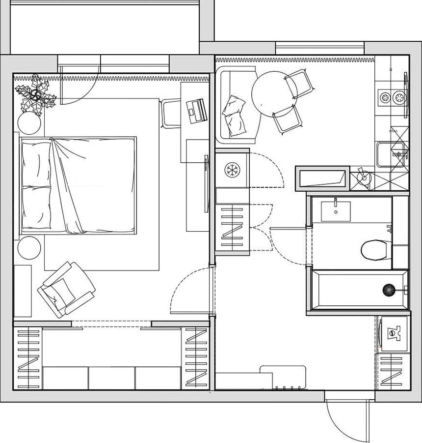
Az alaprajzon csak kisebb változtatásokat hajtottak végre: lebontották a konyhába vezető ajtóval ellátott falat, ami lehetővé tette a konyha területének növelését, valamint egy beépített hűtőt is magába foglaló szekrény elhelyezését a folyosón. A hálószobában alakítottak ki helyet egy külön gardróbnak. A fürdőszoba és a WC egybe lett nyitva.
Ez is érdekelhet: Ajándék a lányuknak: kicsi, mégis rendkívül funkcionális, 29m2-es lakás egy egyetemistának
A tágas előtér
Konyha
A falak festhető flíz tapétát (gyapjúrostos tapéta) kaptak, amelyet szükség esetén könnyen újra lehet festeni. A konyhában a kanapé mögötti falat színes fotótapétával díszítették. A szellőzőaknán elhelyezett tükör egy nem mindennapi megoldás, amely vizuálisan feloldja a szerkezetet és növeli a teret.
A kis konyha inkább ételek melegítésére és a kényelmes kanapén való kellemes időtöltésre szolgál, mintsem komolyabb főzésre. Itt egy moduláris konyhabútor kapott helyet beépített gépekkel és minimális felső szekrénnyel, a hűtőszekrényt pedig egy egyedi gyártású magas szekrénybe rejtették. Az asztalt a tervező állította össze egy öntöttvas asztalláb és egy tömörfa asztallap kombinálásával. A csillárt egy online piactéren vásárolták.
Ez is érdekelhet: Egyetemista lányának rendezte be a tervező a 33m2-es lakást
Az ágy fejtámlája mögötti falat díszlécekkel emelték ki, kontrasztként pedig egy élénk színű gobelinnel egészítették ki. Szemben található a TV-zóna, amely finoman átmegy az ablak melletti dolgozósarokba. A gardrób belső elemeit egy építőipari áruházban méretre vágatták, és egy ezermester a helyszínen szerelte össze, amivel jelentős költséget takarítottak meg. A gardróbot látványos, nehéz függönyök rejtik el, amelyek meghitt, budoárszerű hangulatot teremtenek.
Ez is érdekelhet: Egyetemista lány első otthonnak berendezett pici, de kényelmes és barátságos lakása, 16m2
Fürdőszoba, WC
A fürdőszobában a falakat fehér csempével és kontrasztos falfestéssel díszítették. A padlóra ugyanaz a greslap került, mint a konyhába és a folyosóra. A kis területen sikerült elhelyezni egy teljes méretű kádat, egy mosdót tágas szekrénnyel, egy fali WC-rendszert és egy beépített tárolószekrényt is.
Ez is érdekelhet: Egyetemista lánynak berendezett 46m2-es lakás – lerobbant állapotból stílusos, jól átgondolt terek
további cikkek kis lakás berendezése témában | lakberendezés: Olga Bodrova





























