Házaspár és 19 éves fiuk laknak a felújítandó állapotban vásárolt 57 m²-es, háromszobás lakásban. A lakberendező feladata volt, hogy életet leheljen a jellegtelen térbe, otthonosságot, egyedi karaktert és funkcionalitást teremtsen a szűkös határidők és korlátozott költségvetés mellett.

Az alaprajz
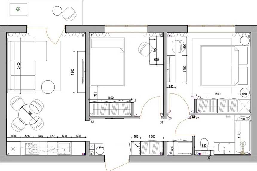
Az eredeti alaprajzot nem változtatták meg. A lakásban volt egy konyha-nappali erkéllyel, két különálló szoba, előszoba, mini-folyosó és egy fürdőszoba. Csupán a hálószobákban építettek plusz válaszfalakat a beépített szekrények számára.
Ez is érdekelhet: Egyterű lakás ötletes elrendezéssel, többfunkciós zónákkal, 57m2
A falak felületképzéséhez festéket választottak, melyet a falakkal azonos színűre festett falpanelekkel és díszlécekkel tettek változatosabbá. A közös zóna – a konyha-nappali, az előszoba és a folyosó – kellemes, világos bézs színt kapott. A szülői hálóban is ezt a színt használták, az ágy fejtámlája mögé pedig egy növényi mintás design tapétát helyeztek. A fiú szobájában egy mélykék színnel hoztak létre egy hangsúlyos falfelületet.
A folyosón egy háztartási szekrényt építettek be mosó- és szárítógéppel, ami lehetővé tette, hogy a fürdőszobát ne zsúfolják tele a gépekkel. A fürdőszobában egy mosdó alatti szekrény és a falsík mögé épített WC fölött egy faliszekrény kapott helyet.
A lakásban nem terveztek külön gardróbot vagy tárolóhelyiséget, ezért a tervezők a tárolás kérdését beépített szekrényekkel oldották meg. Az előszobai szekrény a kabátok és cipők tárolására szolgál. A bejárat melletti sarokban lévő polc a kulcsok, kesztyűk vagy a mobiltelefon elhelyezésére ideális.
Ez is érdekelhet: Lakásfelújítás és átalakítás szokatlan megoldásokkal, otthonról dolgozó pár 57m2-en
A padlóra halszálka mintában rakott vinyl burkolatot választottak. Ez a praktikus anyag a nedvességnek kitett helyiségekben is használható, így a fürdőszoba kivételével az egész lakásban egységes, megszakítás nélküli padlóburkolatot alakítottak ki.
Ez is érdekelhet: Friss, világos lakás fa és menta színű részletekkel, fiatalok 57m2-es otthona
A konyhabútort egy vonalba rendezték, két oldalán magas szekrényelemekkel. Az egyik oldalon a beépített sütő és mikrohullámú sütő, a másikon a hűtőszekrény található. Az alsó szekrényben, a mosogató mellett, egy mosogatógép kapott helyet. A mennyezetig érő felső szekrényeknek köszönhetően rengeteg a tárolóhely.
Ez is érdekelhet: Lakberendező nélkül – új otthon tágas, világos terekkel 57m2-en
Az étkezőben egy vékony lábon álló kerek asztal és puha ülőfelületű, mutatós rattan háttámlájú székek kaptak helyet. A nappali zónában egy kényelmes sarokkanapé és egy TV-szekrény található, ahol szintén lehet apróságokat tárolni.
Ez is érdekelhet: Külön gyerekszobát alakítottak ki az 57m2-es, kétszobás panellakásban
A szülők hálószobájában egy beépített szekrény található, melynek egyik része nyitott polcos elemként funkcionál könyvek és dekorációk számára. Az ággyal szemben egy falra szerelt, fiókos konzol kapott helyet, amely egy fésülködőasztalba megy át.
Ez is érdekelhet: Áthelyezett falakkal kényelmesebb elosztás fiatal házaspár 57m2-es, modern stílusban berendezett lakásában
A fiú hálószobájába egy beépített szekrényt terveztek a ruháknak. Sikerült elhelyezni egy 140 cm széles fekvőfelületű ágyat, hogy a fiatalember alvása kényelmesebb legyen. Mivel tanul, egy munkaállomás is helyet kapott a szobában.
Ez is érdekelhet: Fiatal pár otthona, ahol a pihentető és nyugodt hangulat volt a lakberendezés alapja – 57m2
A fürdőszobában nagyméretű, kőhatású greslapokat, a kád körüli részen halszálka mintában rakott kisméretű csempét és festéket kombináltak, ez lehetővé tette egy visszafogott, pihentető, ugyanakkor praktikus tér létrehozását.
Ez is érdekelhet: Fürdőszoba felújítás olcsón és stílusosan? Íme 11 praktikus ötlet
Az általános világítási koncepciót falon kívüli és beépített spotlámpák alkotják a mennyezeten. A konyha-nappaliban az étkezőasztal fölé egy szőlőfürthöz hasonlító, sok apró búrával rendelkező csillárt helyeztek el. A hálószobában a kiegészítő világítást az ágy két oldalán lévő függesztékek, míg a fiú szobájában az ágy feletti két falikar biztosítja. A fürdőszobában a tükör rejtett LED-világítást kapott.
további cikkek 50 és 100n2 közötti lakások lakberendezése témában | lakberendezés: Maria Tartashnik | fotók: Elena Mihalina

































