A lakás hölgy tulajdonosának már felnőttek a lányai, az 51 m²-es ingatlant magának rendezte be. Finoman nőies, ízléses, modern klasszikus elemekkel átszőtt enteriőr született, melyben nem a tárolóhelyekre helyezték a hangsúlyt – a hölgy tudatosan kevés tárggyal veszi körül magát.

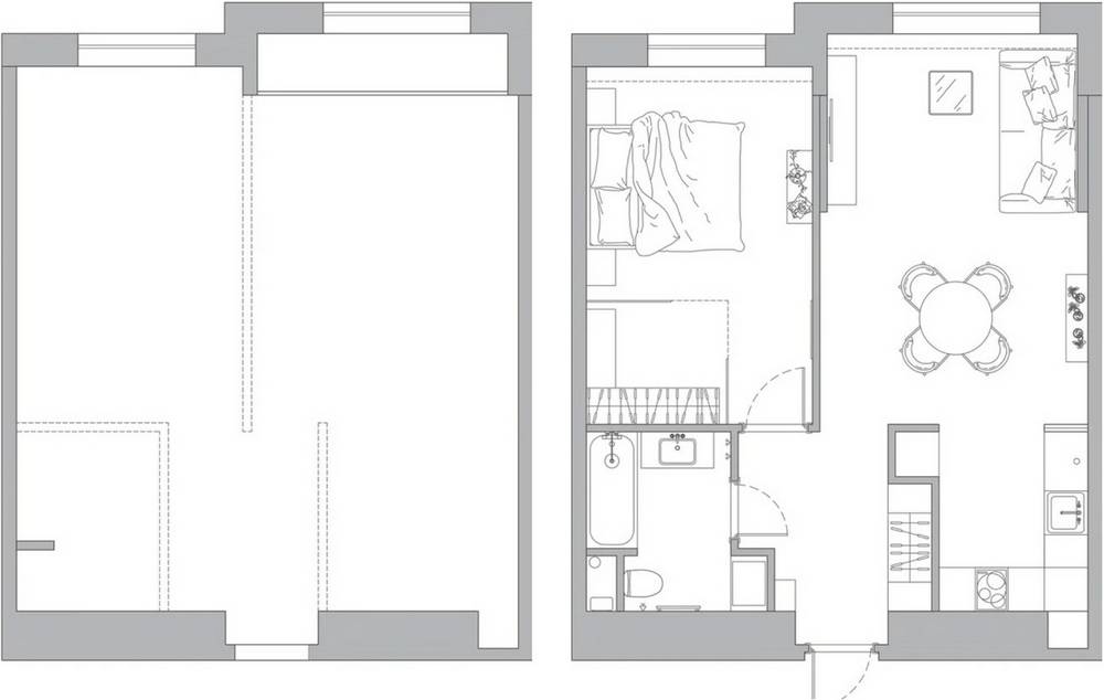
Az enteriőr megtervezésére a tulajdonos lakberendezőt kért fel. A feladat a tér optimális felosztása, egy külön hálószoba kialakítása, valamint egy vendégfogadásra alkalmas terület kijelölése volt. A végeredmény egybenyitott konyha-nappali, egy hálószoba és fürdőszoba. A konyha egy kis fülkében lett kialakítva, míg a főszerep a nappalié lett. A hálószobában a tervező külön gardróbot is kialakított, melyet üveg válaszfalakkal szeparált el a fő tértől.
Az előszoba kialakítása érdekes megoldás. A tervező a belépő zónát egyfajta szürke kockába foglalta. Ebben az árnyalatban festették a falakat, a mennyezetet, sőt, a bejárati ajtóhoz közelebb eső két szekrényajtót is. Ez a szín szempontjából diszkrét megoldás azonnali „wow-hatást” kelt – élénk dekoráció nélkül is vonzza a tekintetet, és emlékezetessé teszi ezt a területet.
Az előszoba és a konyha padlóját karakteres mintázatú csempével burkolták – a tervező szándékosan azonos burkolatot használt e két zóna vizuális egységének megteremtésére, mivel mindkettő jól látható a nappaliból.
A konyhát felső szekrények nélkül alakították ki – a háziasszonynak kevés edénye van. A felső szekrénysor elhagyása lehetővé tette, hogy elsősorban a falakon lévő gyönyörű csempét hangsúlyozzák. A hűtőszekrényt egy magas konyhabútor elembe építették be, ahol további tárolóhelyet is kialakítottak.
A hangsúlyt a nyugodt, semleges színvilágra és a bútorok formavilágára helyezték. A nappaliban dekorációs elemnek tekinthető a tükrös portállal kialakított díszkandalló, amely mellé magas üvegpoharakban gyertyákat helyeztek. A nappaliban vonzza a tekintetet a konyhát diszkréten szeparáló dekoratív válaszfal, de a főszerep az egész lakásban alapvetően a burkolatoknak és a berendezési tárgyaknak jutott.
A bútorokat letisztult, mégis elegáns formavilág jellemzi – vékony lábú kisasztalok, háromlábú kerek étkezőasztal, lekerekített karfákkal rendelkező puha kanapé. A semleges falak hátterében a bútorok kárpitozása finoman, mégis határozottan emelkedik ki, bár lágy pasztell árnyalatokról van szó: a kanapé és az ágy kárpitja kék az étkezőszékek és a puff rózsaszín huzatot kaptak.
A megrendelő nem kért sok tárolórendszert, így a lakberendező a funkcionális minimumot tervezte meg. Ez főként a hálószobai gardróbhelyiség – lényegében egy kis sarok, amelyet üveg válaszfalak és függönyök választanak el a szobától. Az előszobában egy keskeny szekrény ad további tárolóhelyet. A falakra festéket választottak, a hálószobában a sima felületeket dekoratív díszlécekkel tették mozgalmasabbá
Olvastad már? Nőies lakás, ahol a kék és rózsaszín árnyalatok frissé, vidámmá és otthonossá varázsolták a tereket, 51m2
A fürdőszobában márványhatású greslapot és csempét használtak a padlón, míg a vízzel közvetlenül nem érintkező falrészeket festették.
további cikkek 50 és 100n2 közötti lakások lakberendezése témában | lakberendezés: Anna Maltseva | fotók: Evgeny Gnesin






























