Ebben a lakásban a vintage darabok kortárs megoldásokkal és a tervező vázlatai alapján készült egyedi bútorokkal alkotnak harmonikus egységet. A fiatal nőnek és fekete cicájának berendezett enteriőrben a skandi és mid-century stílusokkal alakult ki nosztalgikus retro hangulat, nézzük meg közelebbről a részleteket!

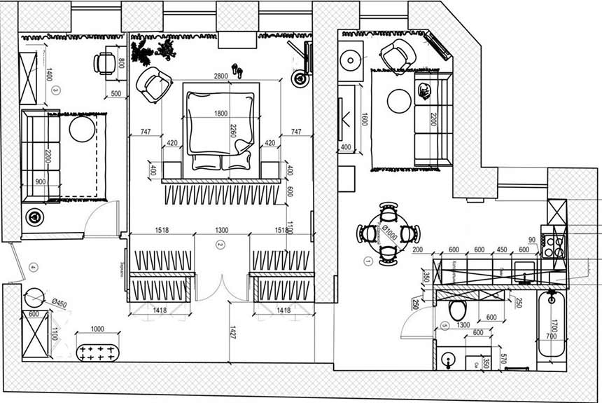
A lakás alaprajzát egy hosszú folyosó határozza meg, a jellegzetessége, hogy az összes helyiség ajtaja egy oldalra nyílik. A nagypolgári lakásoknál megszokotthoz képest a belmagasság itt visszafogottabb, mindössze 2,75 méter. Egy kisebb átalakítás során a fürdőszobát és a mellékhelyiséget egyetlen, egységes térré alakították.
A közlekedőként is funkcionáló hosszú folyosón egy teljes falszakaszt elfoglaló, beépített szekrénysor biztosítja a bőséges tárolókapacitást, amelynek síkjában bújik meg a hálószoba rejtett ajtaja. Az esti hangulatvilágításról a fal alsó sávjában elhelyezett diszkrét jelzőfények gondoskodnak.
A konyha és a nappali között az étkező teremt vizuális átmenetet. A garnitúrát vintage Cesca székek és egy kerek asztal alkotják, mely fölé egy karakteres, narancssárga Meblo függőlámpa került. Az étkezőzóna hangsúlyos falfelületét egy svéd, korallmintás Borastapeter tapéta öltözteti.
A nappali ülőgarnitúrája egy visszafogott, természetes árnyalatú kanapéból és fotelből áll. Ezt a pihenőzónát egy vintage hangulatú, virágmintás szőnyeg fogja otthonos egységbe. A TV-szekrény narancssárga frontjai finoman reflektálnak az étkező lámpájának színére, míg a kanapé fölötti festmény színharmóniát teremt a hangsúlyos tapéta korallos árnyalataival.
A konyha és a nappali egybefüggő teret alkot, ami jelentősen növeli a tágasság érzetét. A konyhabútor világos barack árnyalatú frontjait sárga munkalap és tölgyfa fogantyúk egészítik ki. A mennyezeti stukkó miatt a felső szekrények nem érnek egészen a plafonig. Az egyik elem a kazánnak ad helyet, melynek megfelelő szellőzéséről a szekrény nyitott alsó és felső része gondoskodik. Hogy a szabadon álló fehér hűtőszekrény diszkréten illeszkedjen a környezetbe, oldalról egy rétegelt lemezből készült, nyitott polcrendszerrel oldották meg a takarást. A tágasság és a levegősség érzetének növelése érdekében a mennyezet a falak színénél néhány árnyalattal világosabb tónust kapott.
A hálószoba elrendezése ötletes: a helyiség az ágy mögött kialakított, átjárható gardróbon keresztül közelíthető meg. A nyitott tárolórendszer szükség esetén egy rolóval diszkréten elrejthető.
A lakás legkisebb helyisége a dolgozószoba funkcióját kapta. A szoba különlegessége, hogy minden falát mintás tapéta borítja. Ez a bátor megoldás nem nyomja össze a teret, sőt, egy ékszerdoboz-szerű, kuckós hangulatot teremt. A kompakt munkaállomás az ablak alatt kapott helyet, maximálisan kihasználva a természetes fényt.
Az összevonás eredményeként egy arányos, jól funkcionáló fürdőszoba született, amely bőséges tárolási lehetőségeket kínál. A maximális helykihasználás érdekében a helyiség minden bútorát a tervező rajzai alapján, méretre készítették.
további cikkek 50 és 100n2 közötti lakások lakberendezése témában | lakberendezés: Anastasia Zarkua | fotók: Maxim Maximov




























