Bankszektorban dolgozó házaspár újította fel a kétszobás lakást. A férj gyakran otthonról dolgozik, így szükség volt az alaprajz módosítására is, hogy egy külön dolgozószobát is kialakítsanak. Fontos volt egy értékálló, a trendek változásával sem könnyen elavuló dizájn, a lakberendezővel a modern klasszikus stílus mellett döntöttek.

A tervező feladatai:
- Funkcionálisabb elosztás, olusz dolgozósarok kialakítása
- Sok tárolóhely
- WC és külön fürdőszoba
- A mennyezeten futó, 50 cm magas, esztétikailag zavaró gerenda elrejtése
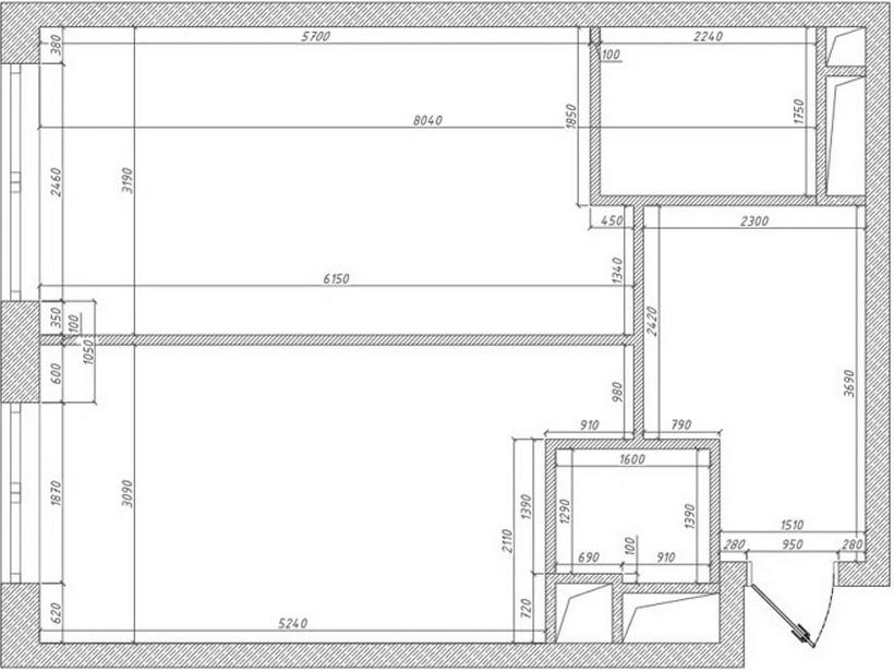
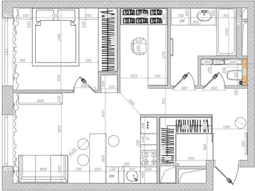
Alaprajz és átszervezés
Az ingatlant a beruházó válaszfalak nélkül adta át; az eredeti tervek egy amerikai konyhás nappalit, hálószobát, gardróbot és fürdőszobát tartalmaztak. A hálószoba területéből elvéve alakítottak ki dolgozószobát, a fürdő a bejárati zóna rovására bővült, ugyanitt külön WC-t is kialakítottak. A gardrób alapterülete kismértékben nőtt. Az átalakítás után két szeparált szoba (hálószoba és dolgozó) és egy egybenyitott konyha–nappali jött létre.
Felületek, dekoráció
Koncepcióként könnyed, modern klasszikus stílus mellett döntöttek gyöngy és világosbarna árnyalatokkal. A stílus hangsúlyozására, illetve a mennyezeti gerenda vizuális eltüntetésére a falakkal azonos színű, magas stukkókat alkalmaztak. A falakat díszlécek tagolják, ritmust és klasszikus hangulatot kölcsönözve a térnek. A padlót halszálkamintában fektetett laminált burkolat borítja.
A fürdőszobába kőhatású kerámialapokat választottak, de nem burkolták a mennyezetig; a falak felső sávját és a mennyezetet világosbarna festés teszi intimebbé a magas, ám szűk térben.
Bútor és tárolórendszerek
A tervező egyik fő feladata a bőséges tárolókapacitás kialakítása volt:
- A bejáratnál külön tolóajtós gardrób található, amely sötétített üveg mögött „rejtőzik”, így a belső rend (vagy rendetlenség) nem látható.
- A hálóban négyszakaszos beépített szekrény, a felnyitható franciaágy alatt ágyneműtartó fiókok biztosít sok helyet.
- A dolgozószobában beépített szekrények gondoskodnak az iratok és munkaeszközök tárolásáról; a nagy asztalon elfér a számítástechnikai felszerelés.
- A konyhabútor sarok elrendezésű, a bárpult az étkezőasztalt váltja ki. Felső szekrények csak az egyik falon vannak, hogy a tér ne váljon nehézkessé. A frontokat sötétített tükrökkel látták el, ami optikailag gazdagítja az enteriőrt. A hűtő egy magas szekrényben, a sütő és a mikrohullámú sütő pedig a háló és a dolgozó közötti fülkében elhelyezett szekrényben kapott helyet. Az alsó elemek egyikébe beépített mosogatógép került.
- A nappaliban a kis kanapé és a TV alatti bútor kínál további tárolóhelyet.
- A fürdőben egy oszlopban egymás fölé került a mosó- és szárítógép, fölöttük és mellettük extra polcokkal. A mosdó alatt bútor, a kádnál pedig fali fülke készült a tisztálkodószereknek.
- A külön WC-ben mosdó alatti szekrény található nyitott és zárt polcokkal.
Világítás
Rétegezett világítási rendszert alakítottak ki. A mennyezetbe süllyesztett spotlámpák mellett csillárok kerültek a nappaliba és a hálóba. A bárpult fölött függeszték, a hálóban további függesztett és asztali lámpa, a dolgozóban pedig asztali lámpa gondoskodik a munka- és hangulatfényről. A fürdőben a tükör fölötti falikar mellett látványos rejtett világítás található a kád oldallapjánál, a fülkében és a mennyezeten; a WC-ben a rejtett fény a tükröt emeli ki.
A stílusválasztást nagyban befolyásolta a mennyezetből 50 cm-re kiálló gerenda eltakarása. A 3,1 m-es belmagasság lehetővé tette, hogy stukkókal és mennyezeti panelekkel vizuálisan elrejtsék. A modern klasszikus stílus tartós, mértéktartó, mégis elegáns: a halszálkamintás laminált padló, a fali díszlécek, a kazettás beltéri ajtók, a letisztult bútorfrontok, az igényes vasalatok és a sötétített tükrök együtt kifinomult megjelenést biztosítanak az enteriőrnek.
további cikkek kis lakás berendezése témában | lakberendezés: Anna Zhizhaykina | fotók: Gleb Hlopunov





































