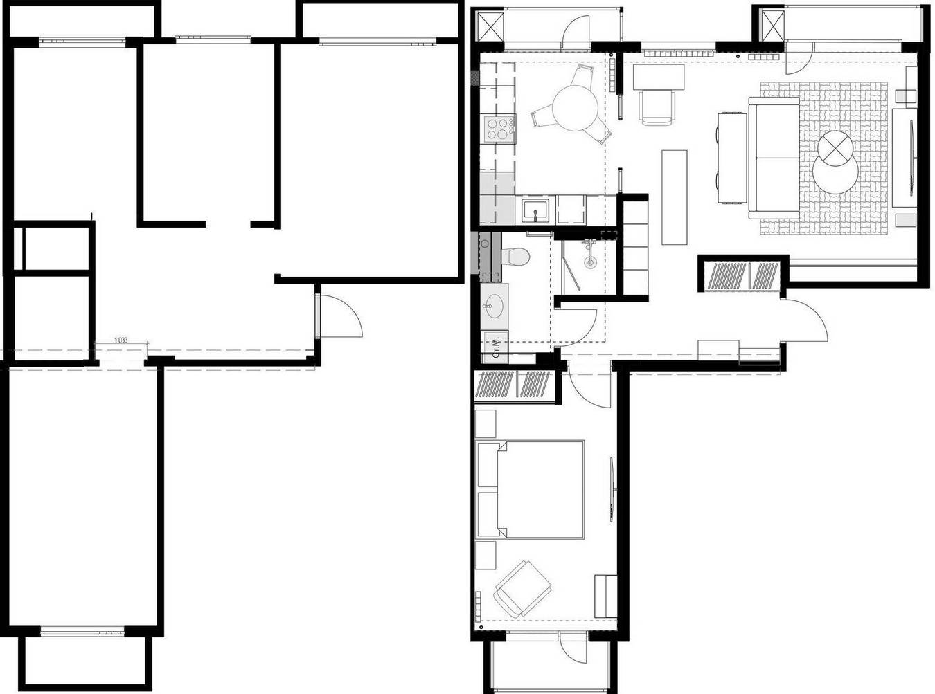
Adott egy 61 m²-es, kétszobás ingatlan, ahol a tervező szakított a sötét, komor legénylakások sztereotípiájával, és egy meglepően világos, kifinomult koncepciót alkotott.
A lakás tulajdonosa egy középkorú férfi, aki munkájából adódóan felváltva dolgozik irodában és otthonról. Szenvedélyes vinyl lemez gyűjtőként olyan élettérre vágyott, amely inspiráló környezetet biztosít a munkavégzéshez, ugyanakkor tökéletes helyszín a pihenéshez és a zenehallgatáshoz is. A tervezés során kiemelt szempont volt az optimalizált tárolórendszerek kialakítása, egy dedikált home office sarok létrehozása, valamint a féltve őrzött lemezgyűjtemény méltó elhelyezése.

Átfogó térrendezés
Az ingatlanon radikális átalakítást végeztek. A korábbi, korszerűtlen elosztású – szűk konyhával és apró, különálló vizesblokkokkal rendelkező – lakásból falbontásokkal és térszervezéssel egy tágas, szellős életteret hoztak létre. A fürdőszoba alapterületét megnövelték, így kényelmesen elfért benne egy épített zuhanykabin. A konyhát egybenyitották a nappalival, egy tágas közösségi teret létrehozva, míg a második szoba megmaradt kényelmes hálószobának. A konyha és a nappali közé elegáns, üvegezett térelválasztó elemek kerültek, amelyek vizuálisan nem szűkítik a teret, mégis funkcionális határt képeznek.
A tervező nagy hangsúlyt fektetett a tárolókapacitás maximalizálására. Mind a hálóban, mind az előszobában elhelyezett gardróbszekrények tükrös frontokat kaptak, ami optikailag tágítja a teret. A bútorok minőségi vasalatokkal és integrált belső világítással rendelkeznek, így a szekrények nemcsak praktikus tárolók, hanem az enteriőr szerves, esztétikai elemei is.
Nappali és konyha
A konyhabútor egyedi asztalosmunkával készült; a beépített háztartási gépeket magas szekrényelemekbe, úgynevezett “tornyokba” rejtették, ami letisztult, egységes összképet eredményez.
Ez is érdekelhet: Tisztaság- és rendszerető férfi lakása: otthonos, természetes, világos élettér 50 m²-en
A lakás tervezési koncepciójának egyik legfontosabb eleme a kifejezetten a megrendelő igényeire szabott Hi-Fi médiakonzol volt. Ez a bútordarab nem csupán tároló, hanem technikai központ is: helyet kapott benne a csöves erősítő, a lemezjátszó, a bakelitgyűjtemény, sőt egy borhűtő is. A tervező különös figyelmet fordított a kábelmenedzsmentre; a hangfalakhoz futó vezetékeket már a szerkezetkész állapotnál a falba és a padlóba rejtették, így a látvány makulátlan maradt.
Ez is érdekelhet: Kulcsrakész új lakást vásárolt a férfi, kevés pénzből karakteres enteriőrt szeretett volna
A nappaliban a kanapéval szemközti TV falat díszlécekkel keretezett, freskó hatású tapéta emel ki. A kompozíció központi eleme egy sötét kárpitozású, ergonomikus kanapé, amely karakteres kontrasztot alkot a világos falakkal, és hívogatóan kényelmes.
Hálószoba
A hálószobában a falakat poliuretán díszlécek tagolják, az ágy fejtámlája mögötti felületet pedig texturált tapéta díszíti, amely melegséget és otthonosságot kölcsönöz a helyiségnek.
Fürdőszoba
A megnövelt alapterületű fürdőszobában minden funkció kényelmesen elfért: az épített zuhanyzó, a mosógép és a szükséges tárolók is. A mosdó alatt egy nagyméretű, függesztett szekrény biztosít helyet a pipereholmiknak, amelyet a falba süllyesztett, praktikus falfülkék egészítenek ki. A burkolatok terén a kisméretű fali csempe és a vízálló tapéta kombinációja dominál, melyet a sárgaréz szerelvények és csaptelepek tesznek igazán elegánssá és időtállóvá.
további cikkek 50 és 100n2 közötti lakások lakberendezése témában | lakberendezés: Asya Kozlovskaya | fotók: Zhenya Muravyova
























