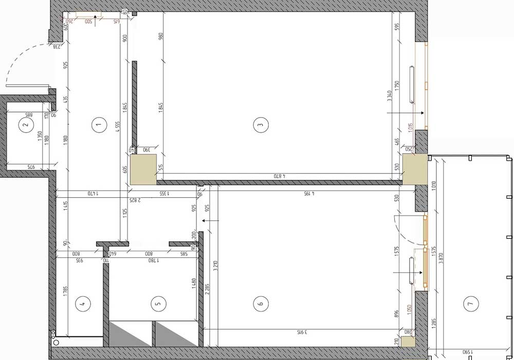
Praktikus szempontok szerint alakította át a tervező egy házaspár egyszobás lakásának alaprajzát. A megrendelők célja az volt, hogy az egyszobás lakásban külön háló zónát alakítsanak ki, és a folyosó terhére bővítsék a fürdőszobát. Első lépésként az alaprajzot módosították, hogy a rendelkezésre álló teret maximálisan ki lehessen használni.

A lakásban két teherhordó pillér határozza meg a szerkezetet; ezek lehetővé tették, hogy a korábbi hálószobán keresztül közlekedőt nyissanak a konyha felé, és a folyosó terhére bővítsék a vizes blokkot. A tulajdonosok kérésének megfelelően a fürdőszoba nagyobb lett: ide tágas zuhanykabint terveztek és itt helyezték el a mosógépet, amely korábban a konyhában kapott helyet. A bejárati előteret elválasztották a lakóterektől, így a tulajdonosoknak többé nem kell a konyha és a szoba között az előszobán áthaladniuk. A háló- és nappalirészt üvegfal választja el egymástól; ez beengedi a nappali fényt a nappaliba, ugyanakkor igény szerint intimitást biztosít a hálóban.
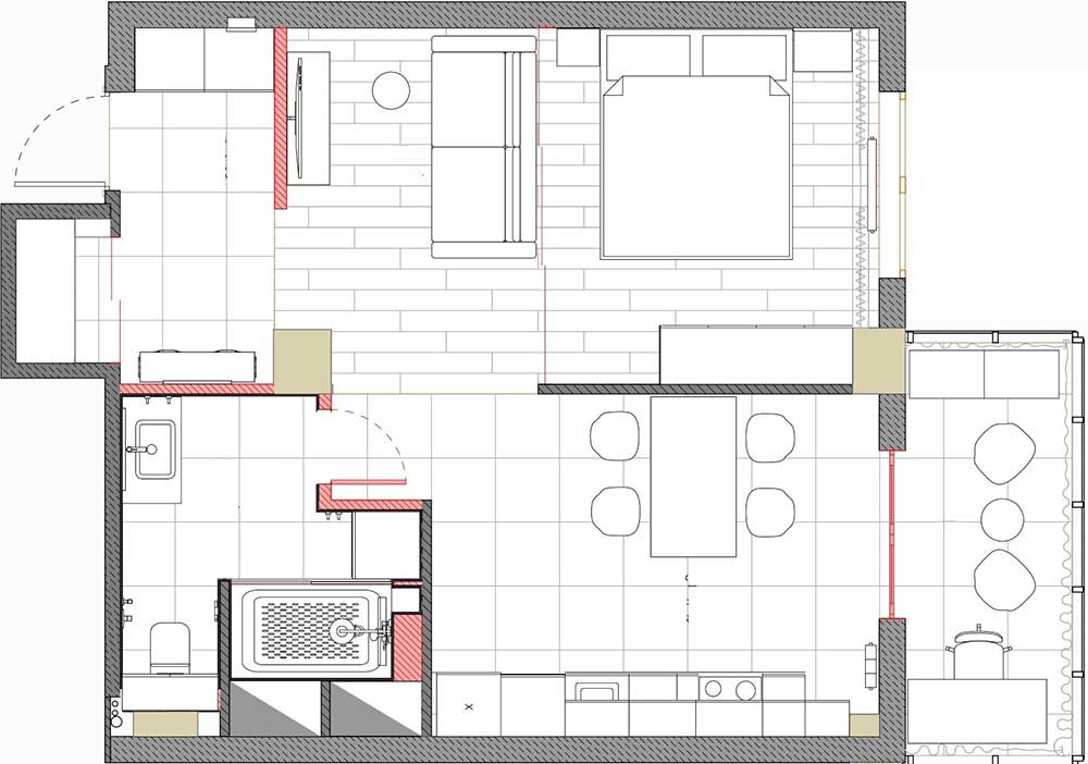
Az előszobában fémvázas konzolasztal és háromrészes, rendhagyó tükör fogadja a vendégeket, a tükörben a háló ablakán beáramló fény tükröződik.
A tárolórendszerek aprólékos tervezésével minden négyzetcentimétert hasznosítottak. A bejáratnál kialakított előtér fülkéjét a kárpithoz illeszkedő szürkéskék tónusúra festették, külön cipőtároló részt alakítottak ki, és ajtók mögé rejtették az elektromos elosztót. Az előtérben elhelyezett gardrób frontját toló üvegfal fedi, az üveg bordázott, akárcsak a konyhában.
A konyha az eredeti helyén maradt, a sarok elrendezés helyett egysoros, egyedi konyhabútor készült a lakberendező tervei alapján. A konyha logikus lezárásához az alsó és felső szekrényeket az erkély felőli oldalon egy magas oldalsó blokkhoz kapcsolták, amely a szerkezet könnyítése érdekében nem ér le a padlóig. A megrendelők előzetesen barna keretes erkélyajtót választottak; ennek a tónusát vitték tovább a konyhai felületeken: a szürke‑barna árnyalatú munkalapon, valamint a bordázott bronz üvegen a szekrény ajtaján. A megrendelő alacsony, ezért a csepegtetőt két felső szekrény között osztották meg, felettük pedig egyszerű polcok kaptak helyet.
A felületeken texturált, selyem hatású vakolatot alkalmaztak, amely a bekapcsolt lámpa fényében finoman csillan. A többi falszakaszt csaknem fehérre festették, hogy vizuálisan tágítsák a teret.
Mivel a lakás alapterülete nem túl nagy (51m2), fontos volt, hogy az egyes helyiségek harmonikusan kapcsolódjanak egymáshoz – így a fürdőszobában megjelenő kék burkolat árnyalata vezette a kanapé és a székek kárpitjának színválasztását. A színpaletta összetett tónusokból áll. „A tükörfrontos TV‑állvány sem véletlen választás. Visszaverődő felületekkel akartuk nagyobbnak láttatni a teret. Tudtam, hogy a megrendelők rendkívül gondosak, a kicsi unokák pedig ritkán jönnek, így a tükör tisztán tartása nem jelent majd gondot, ezért engedhettünk meg magunknak egy kis csillogást” – teszi hozzá a tervező.
A hálószobában tágas gardróbszekrényre volt szükség; az oldalfalon elhelyezett tükör tovább növeli a térérzetet.
A fürdőszobában álmennyezetet építettek, és többféle burkolatot alkalmaztak: alap csempe, hangsúlyos kék csempe, a WC‑rész mögött mozaik, valamint a zuhanyzó zónában faburkolatra emlékeztető csempe.
A megrendelők eleinte a mosógépet a mosdó alá szerették volna beépíteni, a tervező viszont azt javasolta, hogy inkább a folyosó rovására bővítsék a fürdőszobát, így tágas zuhanyzó kialakítására nyílt lehetőség. A mellette elhelyezett mosógép fölött egy tágas szekrény kapott helyet. A mosdópult az ajtóval szemben található, így az érkezők tekintetét is magára vonja.
további cikkek 50 és 100n2 közötti lakások lakberendezése témában | lakberendezés: Polina Andreeva | fotók: Kristina Pleer






























