A lakberendező stúdiót egy házaspár kereste meg, akiknek már külön élnek a felnőtt gyermekei. Eredetileg maguk szeretettek volna foglalkozni a berendezéssel, de hamar rájöttek, hogy egyedül nem boldogulnak, ezért szakmai segítséget kértek a 145 m2-es lakás tereinek kialakításához.

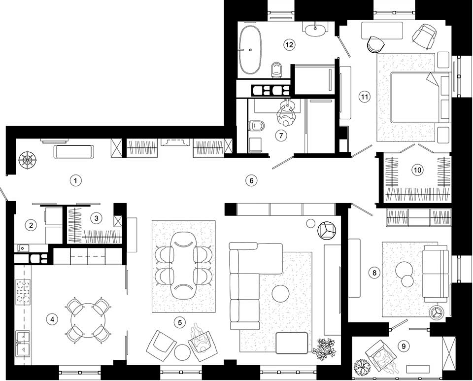
A lakás egy monolit vasbeton vázas épületben található, ezért a tervezés során meghatározó elemek voltak a teherhordó pillérek, amik természetes módon adták meg a tér zónázásának kiindulópontját. A nappaliban a pillérekhez igazodva egy polcos tárolórendszert terveztek, amely elválasztja az előtér zónáját, eltakarja a fürdőszoba bejáratát, ugyanakkor megőrzi a tér nyitottságának érzetét.
Ez is érdekelhet: Tágas családi otthon átgondolt tárolómegoldásokkal minden szobában
A házaspár számára fontos volt, hogy a lakás berendezése és technikai felszereltsége „lépést tartson a korral”, ugyanakkor nem akartak lemondani a számukra otthonosságot jelentő, megszokott elemekről – a koncepció sokáig ingadozott a különböző irányok között.
Ez is érdekelhet: Klasszikus részletek, nyugtató finom színárnyalatok otthonos 120m2-es lakásban
Stílus és koncepció
A tervezők a legfontosabb eredménynek tartják, hogy a lakás több „műfajt” kapcsol össze organikusan. Egyfelől kortárs és technikailag jól felszerelt enteriőr, amely megfelel a jelen kor elvárásainak; másfelől alkalmazkodik a megrendelők ízléséhez és emlékeihez, akik fiatalságukat egy korábbi korszakban élték. Megjelennek benne a ’60-as évekre tett utalások, díszlécek, a konyhában klasszikus stílusú frontok, a függönyökön madár minták – mindezek egy pontosan kimért, arányos térarchitektúrába illesztve. A lakást okosotthon rendszerrel is felszerelték.
Ez is érdekelhet: Természetes színek nagyon szép összhangja egy harmonikusan berendezett lakásban
A padló olajozott, természetes tölgy parketta fedi, a vizes helyiségekben hidegburkolatot alkalmaztak. A letisztult, festett falakat tapéta és MDF panelek díszítik. Alapszínnek egy komplex szürke árnyalatot választottak, amelyet maguk a projekt alkotói úgy határoznak meg, mint „nem meleg, de nem is hideg; nem fehér és nem is színes; egy megunhatatlan és diszkrét árnyalat, amely mindenhez illik”.
Ez is érdekelhet: Belsőépítész otthona: elegáns, stílusos berendezés, tágasság és fény
A bútorválasztás fő szempontjai az esztétikum és a praktikum voltak. A Leicht konyha komplex szürke árnyalatot kapott, a nappaliban Ditra Italia kanapé és Minotti dohányzóasztal, Tomasella vitrin, az előszobában Grange fogas és tükör, a hálószobában pedig Furman konzolasztal és éjjeliszekrények találhatók. Domborművek díszítik a fürdőszobát és az étkezőt, a folyosót pedig festmények díszítik.
Ez is érdekelhet: Korszakok találkozása: eklektikus enteriőr régi bérházban – családi otthon több generációnak
további cikkek nagy lakások lakberendezése témában | lakberendezés: Alexander Ignatiev | fotók: Yegor Piaskovsky






























