A férfi ügyfelének kialakított enteriőrt akár visszafogottnak is nevezhetnénk, ha nem lennének a piros kiegészítők, kontrasztos elemek és érdekes formák, amelyekkel plusz érzelmi töltetet adott a tereknek a lakberendező.
A férfi kényelmes, két fő számára is jól használható életteret kért a tervezőtől. Főbb igényei a következők voltak: gardróbhelyiség kialakítása, otthoni munkára alkalmas dolgozósarok, valamint a közösségi tér zónáinak vizuális összekapcsolása. A dolgozósarkot a tervező a hálószobában alakította ki, a nappali és a konyha-étkező optikai egységét pedig az ajtókat kiváltó nyitott átjárókkal teremtette meg.

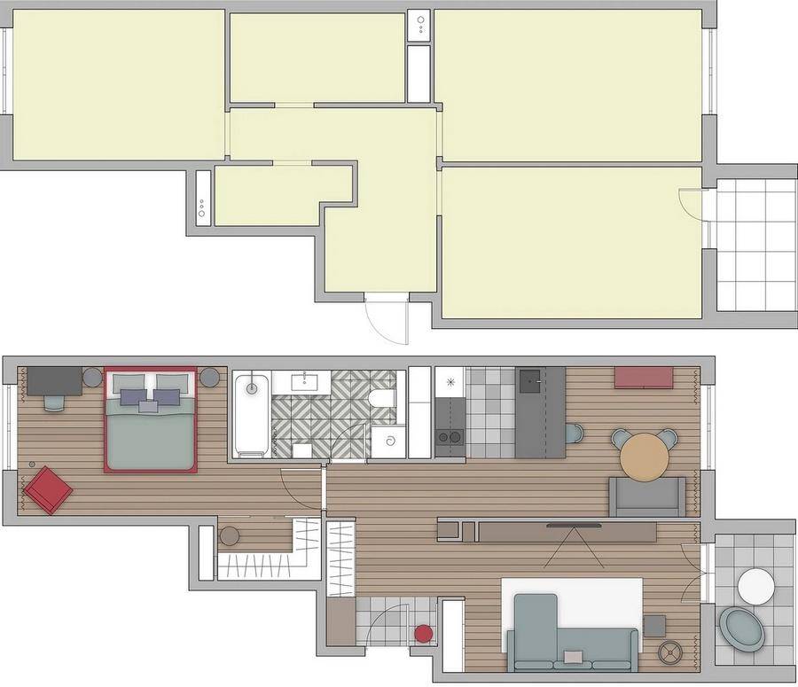
Alaprajz
A 69 m² alapterületű lakás logikus, jól átlátható beosztással rendelkezik: a hosszirányban elnyúló térbe középtájon érkezünk, az ablakok két irányba néznek. Az előszobából jobbra esik a közösségi zóna (konyha-étkező és nappali), balra van a hálószoba, szemben pedig a fürdő. A válaszfalak áthelyezése minimális volt: a két mellékhelyiségből az egyiket gardróbbá alakították (a hálóból nyílóan), továbbá a konyha és a nappali között megszüntették az ajtókat, így ezek majdnem egy légtérré váltak. A két helyiséget elválasztó fal végében egy könyves polcrendszer kapott helyet, amely vizuálisan is összeköti a konyhát és a nappalit.
Ez is érdekelhet: Szép lakásberendezés 69m2-en drága anyagok nélkül is, háromszobás otthon fehér és zöld színekkel, növényi mintákkal
Felújítás és dizájn
A felújítás során a falakat vakolták, festették, gipszkarton álmennyezetet, süllyesztett spot világítást, illetve mennyezeti és fali lámpa kiállásokat alakítottak ki. Minden helyiségben a fő világítás mellett helyi fényeket – fali és állólámpákat – terveztek. A kapcsolók váltókapcsolós rendszerűek, emellett egy központi főkapcsolóval az egész lakás fényei egyszerre lekapcsolhatók.
A megrendelő kifejezetten élénk, piros kiegészítőkkel feldobott belső teret szeretett volna. Ezt a karakteres színt a tervező finoman, kisebb részletekben alkalmazta: a konyha-étkezőben a tálalószekrényen, a lámpatesteken és az üvegmozaik hátfalon jelenik meg. A beltéri ajtótokok szintén piros festést kaptak, ami zárt állapotban diszkrét kontúrt, nyitva pedig élénk színfoltot ad.
Az előszoba zónája sötét antracit színt kapott. Csupán két élénk részlet jelenik meg: a puff és az ajtó keretének piros kontúrja. Tágas beépített szekrényt helyeztek el, amelynek egy része háztartási eszközök tárolására szolgál.
Ez is érdekelhet: 8 praktikus előszoba ötlet lakberendezők projektjeiből
A konyhabútor kompakt, ezért az étkészletek egy külön tálalószekrényben tárolhatók. A frontok matt fehérek, rejtett fogantyúkkal, így semleges hátteret adnak; a piros lámpák, a piros mozaik hátfal és a fekete kvarc kompozit munkalap szolgálnak hangsúlyként.
Hogy az összhatás ne váljon túl harsánnyá, a tervező egy tört, komplex zöld árnyalatot választott háttérszínnek. A zöld és a piros kiegészítő színek, a színkörben egymással szemben állnak, így együtt harmonikus látványt nyújtanak.
Ez is érdekelhet: Legyen színes! – fiatal sebészorvos szokatlanul berendezett modern otthona
A padlóra részben tömörfa járófelületű, rétegragasztott parketta, részben kerámia burkolat került. A nappali tv falát és az előszoba egyik falát valódi fafurnérral borított panelek fedik.
A nappaliban és a hálóban a függönyök semlegesek, a fal színével megegyező árnyalatúak. Az etnikus motívumú, változó szálhosszúságú szőnyeg színei visszaköszönnek a kanapé fölötti képen.
A nappaliban is található egy keskeny beépített szekrény, továbbá nyitott polcok a könyveknek, és zárt tároló a televízió alatti alacsony szekrényben. Minden beépített bútor MDF‑ből készült, és a falakkal azonos színű zománcfestést kapott.
Ez is érdekelhet: Megvalósult álom: harmonikus, nyugodt berendezés fiatal nő 69m2-es otthonában
Bordázott üvegű tolófal mögött rejtőzik a gardrób. Az áttetsző felület mélységet ad a hálónak. >A hálóban a dolgozósarkot az ablaknál, a gardrób előtt alakították ki; a falat tompa kék festéssel emelték ki, így a zóna átláthatóvá válik. Ez az elrendezés kiegyensúlyozza a szoba geometriáját: az ágy a háló zónájának tengelyére kerül, a csillár pedig pontosan a mennyezet fehér részének középpontjába, amitől a helyiség harmonikusnak hat.
Ez is érdekelhet: A legjobb hálószoba szín nyomában: 5 színösszeállítás ötlet
A fürdőszobában a mosdószekrény színe a padlócsempe mintájához igazodik, a kis sámli ugyanezt az árnyalatot kapta. A fehér csempe a zöld fugával látványos kontrasztot kapott. A burkolat kiosztását úgy tervezték, hogy ne legyenek zavaró vágások. A mosógép fölött szekrényt helyeztek el a háztartási vegyszereknek.
Ez is érdekelhet: Hogyan teheted érdekessé a fürdőszobát? 7 gyönyörű tervezési ötlet
Az enteriőr esztétikáját leginkább „szerzői kortárs stílusként” lehetne meghatározni, erőteljes színfoltokkal. Felfedezhető benne a skandináv irányzat letisztultsága és természetes anyaghasználata (fa, pamut), mégsem tekinthető puritán skandináv otthonnak: ez egy érzelmekben gazdag tér. Számos műalkotás díszíti – festmények, grafikák, kerámia‑ és üvegtárgyak –, és még a funkcionális bútorok egy része is műtárgyként hat.
Ez is érdekelhet: Fekete, fehér, meleg fa és lágy szürke: férfi kényelmes lakása
további cikkek 50 és 100n2 közötti lakások lakberendezése témában | lakberendezés: Szvetlana Mamaenko | fotók: Maxim Maximov


































