A megfelelő megközelítéssel és átgondolt tervezéssel nemcsak funkcionális, hanem otthonos és esztétikus teret alakíthatunk ki, mindezt egyszerű, de hatásos megoldásokkal. Nézzük meg azokat a technikákat amelyeket a tervező ebben a 32 négyzetméteres lakásban alkalmazott.

A térszervezés logikája
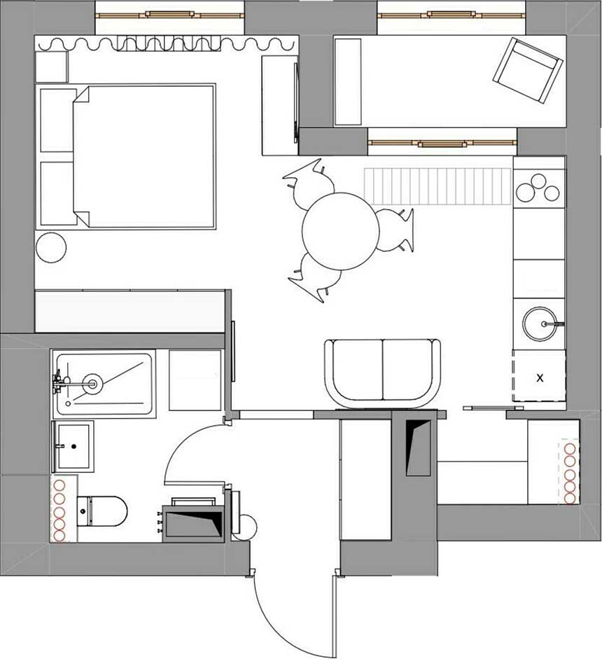
A lakást burkolatok és beépített elemek nélkül vásárolták. Az alaprajz előnyei közé tartozik a tágas lodzsa, a konyha melletti fülkében kialakított kamra, valamint a 2,7 m-es belmagasság.
A kis lakást konyha–nappali és háló zónára osztották. Ahhoz, hogy a hálóban szekrényt lehessen elhelyezni, az előszoba és a fürdőszoba közötti válaszfalat a szükséges mélységig meghosszabbították. A kamra nyílását kissé beszűkítették, hogy a kanapé mögötti falat meghosszabbítsák.
Beépített gardrób az előszobában
A tér szervezésének fontos lépése a praktikus tárolóhely kialakítása. Az előszobában a ruhák és cipők számára készült beépített szekrény és a fal színe megegyezik, így vizuálisan kevésbé tűnik nagy tömegnek, és nem kelt zsúfoltság érzetet. Szemben éppen elfért egy puff, fölötte helytakarékos kis polc és egy kerek tükör.
Világos árnyalatok és természetes fény
Minden falat világos árnyalatra festettek – ez harmonikusan egyesíti a lakás minden zónáját, és optikailag növeli a teret. A lodzsára vezető ajtót függöny nélkül hagyták, hogy a lehető legtöbb természetes fény áramolhasson be. Ez fokozza a tágasság és a könnyedség érzetét. A bejárati zóna előtt nagy, egész alakot mutató tükröt helyeztek el.
Praktikus kamra pajtaajtóval
A konyha mellett kialakított kamra bejáratát pajtaajtó fedi, amelynek köszönhetően a nyílás keskenyebb lehetett, a fal pedig meghosszabbodott, így a szomszéd zónában egy kétszemélyes kanapé is elfért.
Padlóburkolat
Fontos elem a padlóburkolat. A fő helyiségben halszálka mintázatban lerakott kvarc vinil paneleket alkalmaztak. A minta dinamikát ad az enteriőrnek.
Stílusos konyha
A konyha minden lakásban kulcsszerepet játszik, kis alapterületen pedig maximális funkcionalitást kell biztosítania. A konyha frontjai átmenetet képeznek: az alsó sötét frontokat világos felsők váltják. A hátfal tónusa harmonikus összhangot teremt.
Hangulatos lounge zóna
A lodzsán ugyanazt a geometrikus burkolólapot használták, mint a fürdőszobában, ami vizuális egységet és harmonikus átmenetet biztosít. A fotel és a fali lámpa meghitt pihenőhelyet alakít ki – összességében a tér könnyed és kényelmes lett.
Faldekoráció
Textúra és szín hozzáadása: a hálórészben kiemelték az ágy mögötti falat, pitypangmintás tapéta került díszlécekből készült keretbe. A két oldalsó keretet is színnel emelték ki – ez kifinomult megjelenést ad a térnek, és kiemeli a gyöngyszerű függesztett lámpákat. Az ilyen dekoráció figyelemfelkeltő, és egyediséget kölcsönöz.
Eredeti tükör a fürdőben
A fürdőszobában a fő hangsúlyt a tükör kapta – mindig érdemes valami érdekes, szokatlan darabot választani. Itt egy vintage lámpatestet is alkalmaztak, amely karaktert ad a helyiségnek. Világos kőporcelán lapok alkalmazása és a padló geometrikus mintája optikailag tágítja a fürdőszoba terét.
további cikkek kis lakás berendezése témában | lakberendezés: Jelena Szizova























