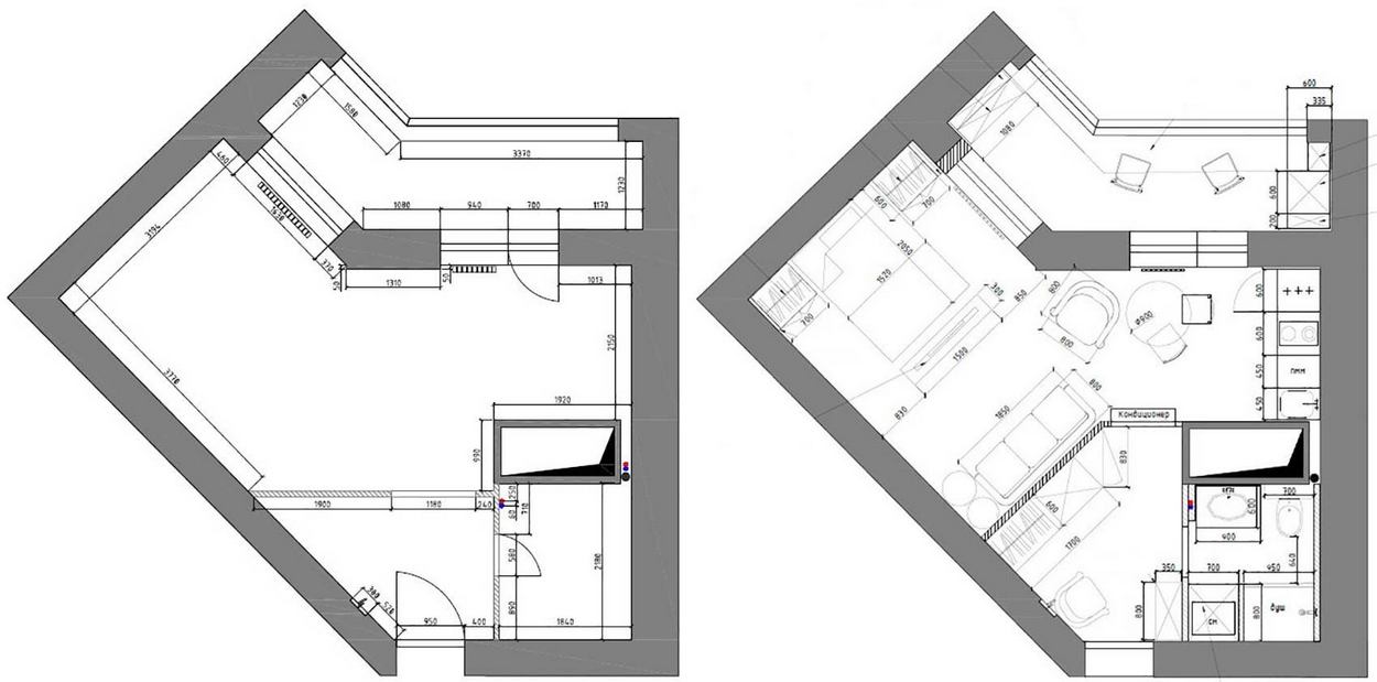
Az új építésű lakóházakban kialakított kisebb alapterületű lakások között akadnak nehezen berendezhető, nem szokványos terekkel építettek is. Ebben a 38 négyzetméteres lakásban is okozott némi fejtörést a szabálytalan tér használhatóvá alakítása.

Négyzet vagy téglalap alakú alaprajt esetében könnyebb a tervező dolga, itt a nem szokványos, szabálytalan terület nehezítette a nappali, külön háló zóna, étkező, kompakt konyha és normálisabb méretű előszoba kiépítését. Az erkély nem volt része a lakásnak, de végül beépíthető vált és így most a hasznos lakóterület része. A kis konyha tartalmazza a leginkább szükséges felszerelést, mellette elfért egy kis étkező is.
A nappali és háló kialakítása érdekes a kis területen – a két zóna közé egy fél fal került térelválasztóként, melyben az teljesen elforgatható TV mindkét oldalról nézhető. A kissé megnövelt méretű előszobába került egy nagyobb szekrény – gardróbok kerültek a hálóban az ágy két oldalára is. A dekoráció nyugodt színeit mintás tapétás, burkolatok dobják fel.
Alaprajz:

további cikkek kis lakás berendezése témában | lakberendezés: Cubiq Studio





















