Teljesen átszervezte a 70 négyzetméteres lakás tereit egy apa és fia részére a lakberendező. A cél a tér teljesen nyitottá alakítása volt, a privát zónák lezárásának lehetőségével. A gyerekszobát, fürdőszobát és a hálószobát egy fából készült fal választja le, tolóajtókkal.

A nappali látványos eleme, fókuszpontja az egyedi bútor, mely magában foglalja a tv sarkot, könyvespolcokat, tárolóhelyeket, előszoba bútort, a sárga felületek dinamikussá teszik a fehér tömböt. Szintén ezt az elvet követi a gyerekszoba berendezése is, a multifunkcionális bútor magába foglalja az ágyat, íróasztalt, tárolóhelyeket szintén élénksárga színnel dekorálva.
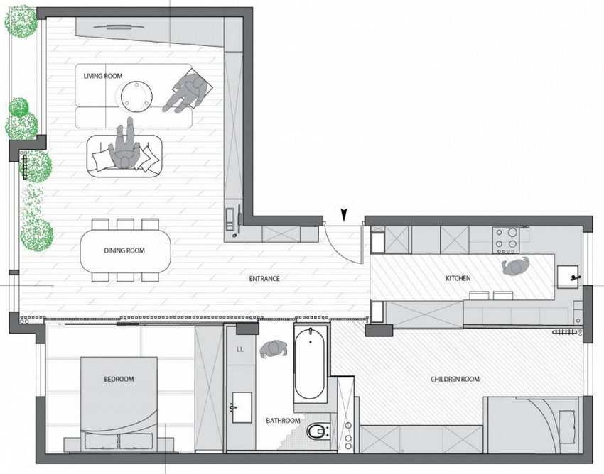
Alaprajz:

lakberendezés: Glenn Medioni | fotók: Pascal Otlinghaus | további cikkek 50 és 100nm közötti lakások lakberendezése témában





























