Háromgyermekes családnak még 90m2-en sem könnyű mindennek és mindenkinek elegendő helyet találni. Kisebb átalakítással igazították az igényeikhez az elosztást, a stílust illetően könnyed, elegáns eklektika mellett döntöttek színes, meleg és barátságos enteriőrrel.

A lakás átalakítása, elosztás
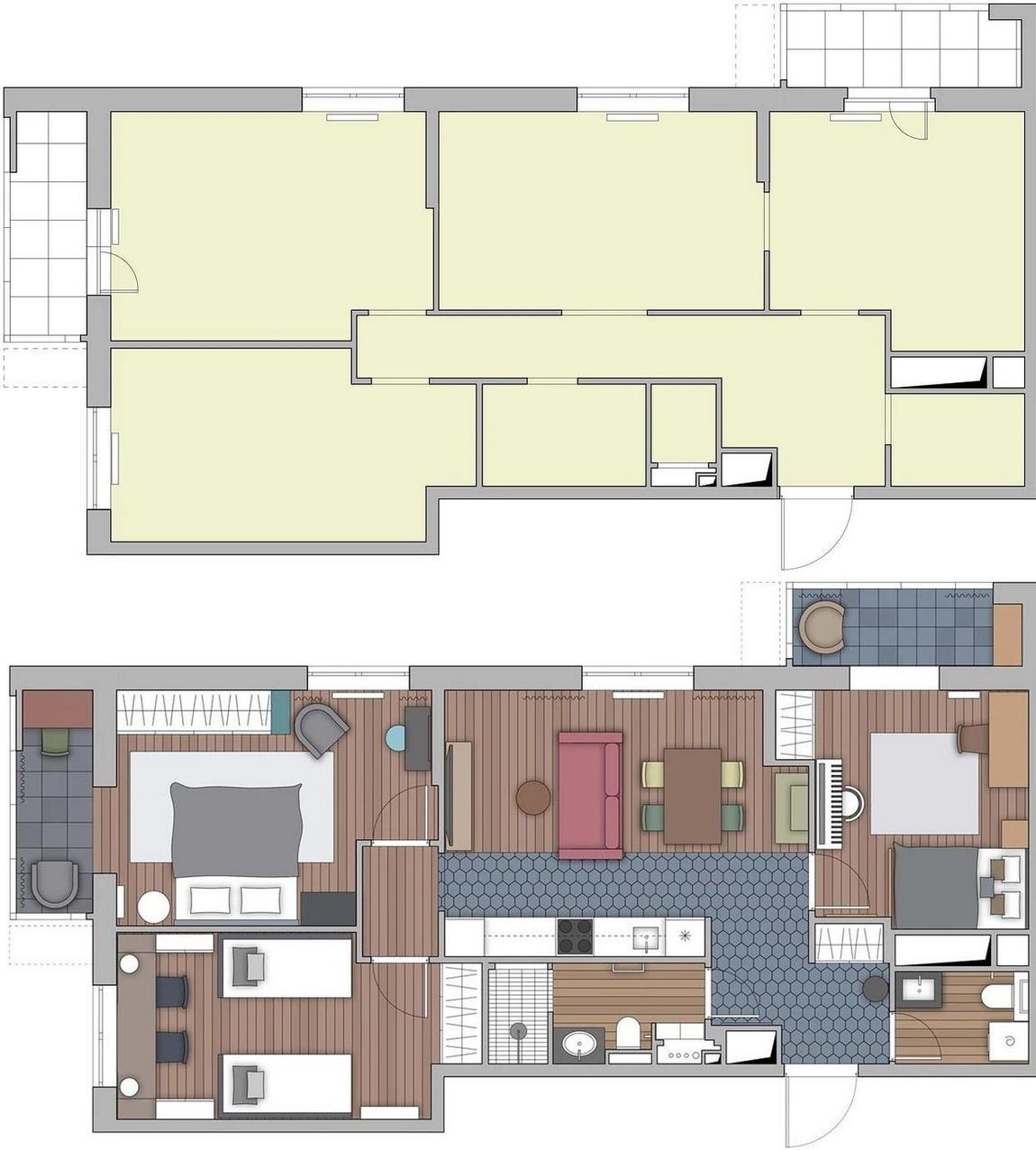
A család (a legidősebb lány nemrég kezdte meg egyetemi tanulmányait, a két fiatalabb fiú iskolások) fő kívánsága volt, hogy hozzanak létre egy elég nagy közös zónát, ahol az egész család együtt lehet, emellett mindenkinek legyen meg a saját személyes tere. Az alaprajz módosítása a nappalit érintette leginkább, itt a folyosó megszüntetésével a konyhával közös teret (22m2) alakítottak ki, az eredeti konyha helyén így hálószobát lehetett berendezni a lányuknak. A nagyobbik fürdőszobát összenyitották a WC-vel, van egy második mellékhelyiség, így ez nem jelentett problémát. Ezen kívül csak két kisebb falat módosítottak, hogy a tárolórendszereket optimálisan helyezhessék el.
A lány hálószobájának bejárata a konyha-nappaliból nyílik. Az ágy közvetlenül a szoba bejáratával szemben helyezkedik el, ezért furnérozott térelválasztót építettek, ez paravánként funkcionál, takarja az ágyat, de nem vesz el a térből.
A fiúknak egy közös hálószobát alakítottak ki, amelyben mindkettőjüknek saját dolgozósarka, polca és gardróbja van.
A szülők hálószobájába és a fiúk szobájába egy kis előtérből lehet bejutni, amit a nappalitól egy nyitott ajtónyílás választ el, felül üvegezett áthidalóval.
Az előszobában érdekes megoldást alkalmaztak: a bejárati ajtó felett MDF-ből készült, festett, tömör áthidalót helyeztek el. Ez segít kiegyenlíteni a bejárati ajtó és a belső ajtók magasságát. Az ajtókeretek és takarólécek szintén MDF-ből készültek, festett felülettel.
Az enteriőr eklektikus, ugyanakkor harmonikus. A nappaliban a klasszikus stílusú tálalószekrény mellett skandinávosan letisztult étkező áll, a tévé zóna pedig etnikus hangulatú, rattan előlapos komóddal van berendezve. A konyhabútorban vannak sima, furnérozott, kazettás és üvegezett frontok is. A konyha különböző stílusú – modern és country – szekrényekből áll. A tévé zónában avantgárd csillár lóg.
Különösen fontos szerepet kapott a fa. Jelen van a különböző árnyalatú rétegelt padlóban a közösségi és privát terekben, a furnérozott ablakpárkányokban, a bútorfrontokon, a falburkoló panelekben, valamint a lány szobájában lévő könnyed válaszfalban. A természetes fa színpompás, lakkozott bútorfrontokkal társul.
A szülők hálószobájában, melynek falait modern stílusú fa panelek borítják, a tervező klasszikus stílusú, kazettás szekrényt és letisztult ágyat helyezett el, neoklasszikus szellemben. A sokszínű enteriőr mégis egységes hatást kelt – az ismétlődő árnyalatoknak és textúráknak köszönhetően.
A hálószobák színpalettája visszafogott. A színek jelen vannak, de árnyalataik nyugodtak: sötétzöld, összetett szürke-kék, szürke és bézs. A paletta természetes, ebben a környezetben a természetes fa nagyszerűen mutat.
A szülők hálószobájának dizájnjában az aszimmetria élénkíti a teret. Az ágy mögötti falon csak az egyik oldalon van furnérozott panel.
A fiúk szobájában a szimmetrikus bútorkompozíció egyedi megrendelésre készült. Ügyeltek arra a részletre, hogy a kényelmes, puha oldaltámlával tervezett ágyak a falhoz kerüljenek.
A zuhanyzó és a mosókonyha egységes stílust kapott: a padlón famintázatú kőburkolat, a falakon zöldes-szürke árnyalatú csempe, vakítóan fehér szaniterek, stílusos fekete csaptelepek.
A fürdőszobában süllyesztett spotlámpák találhatók, a zuhanykabin zónájában van egy megvilágított tükör.
további cikkek 50 és 100n2 közötti lakások lakberendezése témában | lakberendezés: Vera Sheverdenok | fotók: Jevgenyij Gnesin








































