A lakást modern stílusban képzelte el a család, természetes, nemes színárnyalatokkal, mély zöld és sötét fa tónusokkal – akárcsak egy lakosztály egy 5 csillagos szállodában..

Megrendelők és a lakberendező feladata
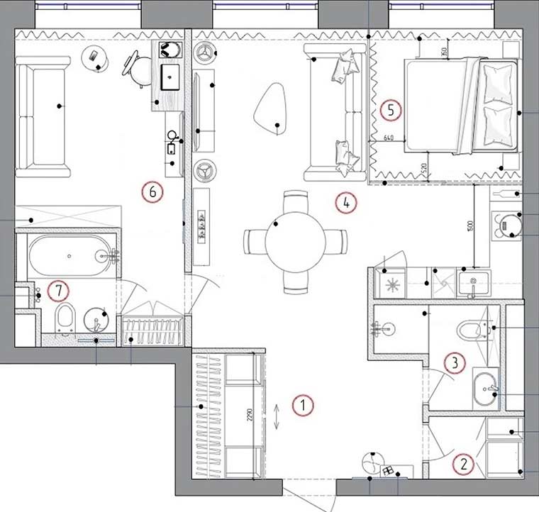
A lakás tulajdonosa egy gyermekes család (a gyerek tizenéves). Gyakran utaznak, nagyon sokat vannak távol, ezt a lakást ideiglenes tartózkodásokra vásárolták és rendezték be. A tervezőt azzal bízták meg, hogy alakítsa át a teret, helyezze el ergonomikusan a bútorokat, tárolórendszereket, és találjon megoldást egy plusz hálószoba kialakítására, amely az eredeti kétszobás alaprajzban nem szerepelt.
A lakás átalakítása
Az építtető által tervezett elosztás szerint a lakásban eredetileg volt egy saját fürdőszobával rendelkező kis hálószoba, egy nagy konyha-nappali, egy második fürdőszoba és egy kis tárolóhelyiség a bejáratnál. A konyha-nappali két ablaka lehetővé tette, hogy annak teréből leválasszanak még egy hálószobát. Ezt üveg válaszfalakkal zónázták, és függönyökkel egészítették ki, hogy elszigeteljék a közös tértől.
Burkolatok
A burkolatok az építtetőtől származtak – rétegelt svédpadló, festett falak, valamint kőburkolat a fürdőszobában. A tervező javaslatára a falak színét részben megváltoztatták – az előszobához mély zöld árnyalatot választottak.
Ezt a kiegészítő színt továbbvitték a konyha hátfal burkolatán – gyönyörű, zöld árnyalatú, fényes, ónix hatású kőporcelánt választottak. A tévé zónában fa hatású paneleket alkalmaztak, hogy a sötét televízió képernyője ne legyen nagyon feltűnő a világos falon.
Bútorok és tárolórendszerek
A tárolórendszereket egyedi tervezés alapján készítették. Az előszobában kialakítottak egy fülkét a gardróbszekrény számára, amelyet matt, bordázott üvegű ajtókkal zártak le – így vizuális kapcsolatot teremtettek a hálószobát elválasztó válaszfallal, de mivel az üveg nem átlátszó, nem szükséges folyamatosan rendet tartani a gardrób belsejében.
A háztartási eszközöket, valamint a mosó- és szárítógépet az előszobai tárolóban helyezték el.
A konyha kompakt, sarok elrendezésű. A sütőt és a mosogatógépet az alsó szekrényekben helyezték el, a hűtőszekrényt magas szekrénybe építették be. Tárolóhely van elegendő, mivel a felső szekrényeket a mennyezetig vitték.
Fiúszoba
A fiú szobájában a bejáratnál gardróbszekrényt helyeztek el, beljebb a fal mellett polcos tárolórendszert, a dolgozósaroknál pedig polcokat és komódot alakítottak ki. Az alvóhely itt zöld kárpitozású, kihúzható kanapé.
Fürdőszobák
A zuhanyzós fürdőszobához egyedi bútorokat terveztek – lebegő fürdőszobai szekrényt a mosdó alá és egy magas szekrényt, amelyet a WC-tartály beépített falrészére helyeztek. A tükör mögött üveg védi a falat a nedvességtől, ez a megoldás nem bontja meg a kompozíció harmóniáját.
A káddal szerelt fürdőszobába olyan tükröt választottak, amely mögött tárolóhely található. Ez a döntés azért született, mert ebben a helyiségben az építtető már előre telepített szanitereket adott át, padlón álló mosdóval.
további cikkek 50 és 100n2 közötti lakások lakberendezése témában | lakberendezés: Svetlana Tyagovskaya | fotók: Anasztázia Kutyrina





































