Barátságos, otthonos berendezést tervezett a lakberendező stúdió ebben a kétszobás, erkélyes, 3.2 méter belmagasságú lakásban, egyszerű megoldásokra törekedve, klasszikus stílusban. A régi épületben található, csendes udvarra néző lakás belső terei is nyugodt hangulatot árasztanak, visszafogott dekorációval, világos bézs falakkal, sötét fa padlóval és díszlécekkel dekorált fehér mennyezetekkel.

A sötét fa padló, világos bézs falak, fehér mennyezetek egységes hangulatot adnak az egész lakásban, lehetőséget adva a terek dekorálására kiegészítőkkel, de az összeállítás önmagában is otthonos. A képeken nem látható, de a tárolóhelyek mennyiségét egy besétálós gardrób növeli a bejárattól balra. A két kis erkély szerencsés adottság, az egyik a hálószobából, a másik a konyhából nyílik, utóbbi beépítésre került, itt egy kis íróasztal is elfért.
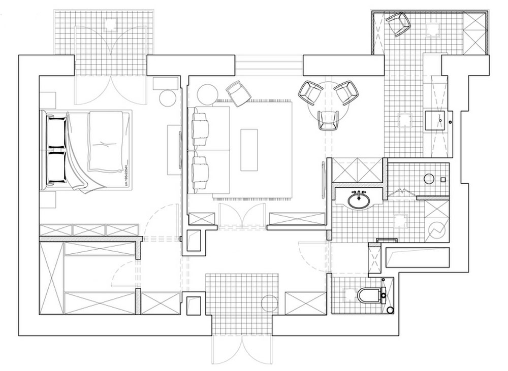
Alaprajz:

további cikkek 50 és 100nm közötti lakások lakberendezése témában | lakberendezés: Atmosfera Interior
























