A kisméretű ingatlanok felújítása során a legnagyobb kihívást a stílus és a funkcionalitás egyensúlyának megteremtése jelenti. Ez a 41,5 négyzetméteres lakásfelújítás projekt éppen erre kínál példaértékű megoldást: egy fiatal pár és kutyájuk számára készült otthon, ahol a mid-century esztétika találkozik a természetes textúrákkal és a bátor színhasználattal.
A tervezési folyamat alapvető célkitűzése egy olyan időtálló és stílusos élettér kialakítása volt, amely képes túllépni az alapterület korlátain. A megrendelők igénye egy letisztult, mégis karakteres enteriőrre irányult, ahol a vintage részletek és a természetes alapanyagok dominálnak. A lakberendező koncepciója a barátságos, „élhető” minimalizmus köré épült, finom utalásokkal a múlt század közepének formavilágára.

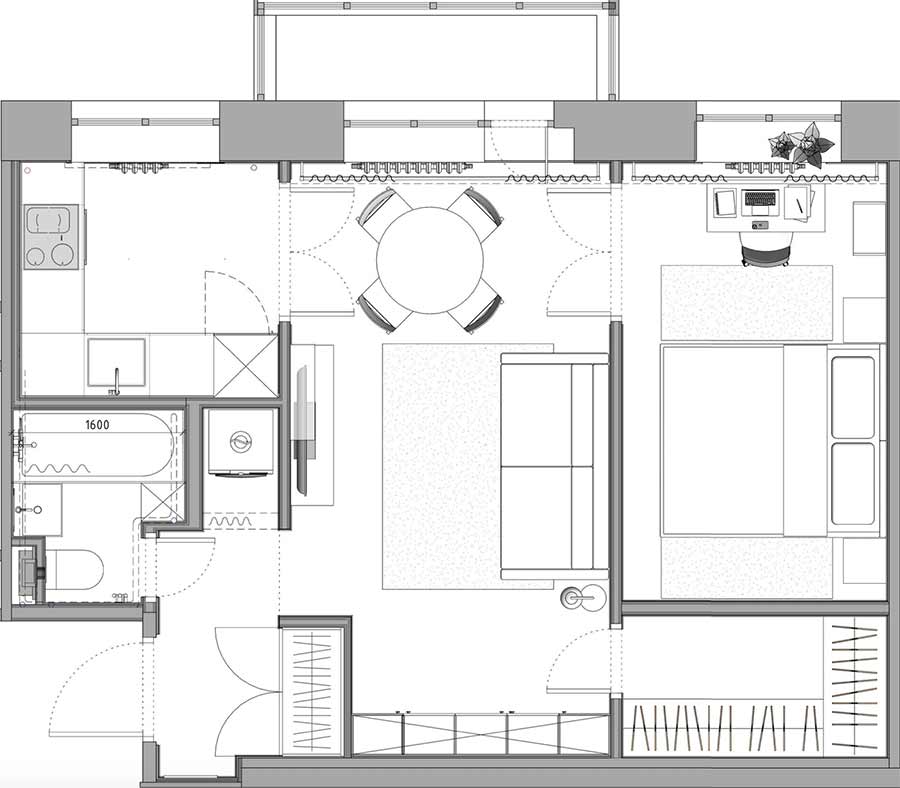
Az eredeti állapot és a térszervezési stratégia
Az ingatlan egy 1960-as évek elején épült társasházban található, amelyre az adott korszak tipikus adottságai – korlátozott alapterület és viszonylag alacsony, 2,67 méteres belmagasság – voltak jellemzőek. A térérzet növelése érdekében a tervező radikális, mégis logikus alaprajzi módosítások mellett döntött.
A legnagyobb változtatást az enfilád (egymásba nyíló terek) jellegű elrendezés bevezetése jelentette: a konyha bejáratát áthelyezték a nappaliba, és azt a hálószoba bejáratával párhuzamos tengelyre illesztették. Ez a megoldás optikailag megnyitotta a tereket, és segített elkerülni a kis lakásokra jellemző bezártságérzetet. Emellett a korábban beépített erkélyt is kiszabadították a burkolatok fogságából, így több természetes fény árad a lakásba, az új, mintás padlólapokkal és pihenősarokkal ellátott kültéri egység pedig a reggeli kávézások ideális helyszínévé vált.
A lakás helyiségei és zónái
Az előszoba nem csupán érkezési pont, hanem az okos tárolás egyik központja is. A tervező itt alakított ki helyet a háztartási blokknak: a mosó- és szárítógép egy diszkrét falfülkében, egy könnyed textilfüggöny mögé rejtve kapott helyet, ami helytakarékos és esztétikus megoldás a kisebb fürdőszobák tehermentesítésére. A helyiség dekoratív fénypontja egy egyedi, kézműves tükör, amely játékos részleteivel azonnal barátságos atmoszférát teremt.
Ez is érdekelhet: Modern, otthonos minimalizmus: így rendezte be a fiatal pár a 42 m²-es lakást
A konyha szerény alapterülete ellenére, a színhasználatnak köszönhetően rendkívül karakteres. A pasztell rózsaszín frontok és a karakteres mintájú padlóburkolat találkozása friss és üde látványt nyújt anélkül, hogy hivalkodó lenne. A tervező tudatosan elvetette a plafonig érő felső szekrények koncepcióját, helyettük könnyedebb tárolókat alkalmazott, így a tér szellősebb maradt, miközben a tárolókapacitás elegendő a mindennapi használathoz. Az étkező zónát autentikus vintage székek teszik teljessé, amelyek hidat képeznek a modern berendezés és a klasszikus designelemek között.
Ez is érdekelhet: Hangulatos családi fészek egy lerobbant 42 m²-es lakásból, élénk színekkel
A lakás központi helyisége a nappali, amely több funkciót is ellát. A pihenő zóna mellett innen nyílik a lakás fő tárolási egysége is: egy gardróbszoba. Ez a döntés lehetővé tette, hogy a többi helyiség – különösen a hálószoba – mentesüljön a robusztus szekrények látványától, így megőrizve a letisztult vonalvezetést. A világítás kialakításánál a rétegzett fényforrásokra helyezték a hangsúlyt, amelyek a természetes fa textúrákkal együtt meleg, hívogató otthonosságot sugároznak.
Az ablak előtt dolgozósarokkal kiegészített hálószoba a nyugalom és a fény oázisa. A színpaletta a sárga és a narancs árnyalataira épül, ami még a fényszegényebb napokon is napsütéses hangulatot áraszt. Mivel minden ruhát és személyes tárgyat a nappaliból nyíló gardróbban helyeztek el, a hálóban nem volt szükség komódokra vagy szekrényekre. Ez a minimalista berendezés segíti a zavartalan pihenést és tovább hangsúlyozza a tér tágasságát.
A fürdőszobában a funkcionalitás maximalizálása volt a cél. Az eredeti elrendezés apró mosdóját egy nagyobb, kényelmesebb darabra cserélték, vállalva ezzel a többi szaniterre jutó helyek minimális szűkítését. A végeredmény egy olyan ergonomikus helyiség lett, amelyben minden szükséges elem helyet kapott, megőrizve a tiszta és rendezett megjelenést.
további cikkek kis lakás berendezése témában | lakberendezés: Anastasia Zarkua | fotók: Maxim Maximov






























