A tervező a tökéletes egyensúlyt kereste a lakásfelújítás során: barátságos és hívogató, fotogén otthon jó ár / érték aránnyal megvalósítható megoldásokkal. Egyértelműen a skandináv stílusra esett a választás.

A tervezés során úgy érezte a lakberendező, hogy az alap skandináv stílus túlságosan steril lenne a fiatal házaspárnak, ezért modern és bohó elemeket is vitt a terekbe – a nappali zónába egy élénk színű szőnyeget, textil‑ és fonott lámpákat a hálóba, nappaliba, a modern vonalat pedig a megrendelők által gyűjtött színes zenei poszterek képviselik.
A fiatalok szerették volna, hogy a fürdőszobában legyen kád és zuhany is, továbbá rengeteg tárolórendszert igényeltek. Fontos volt számukra, hogy a tér inspiráló legyen és emlékezetes legyen.
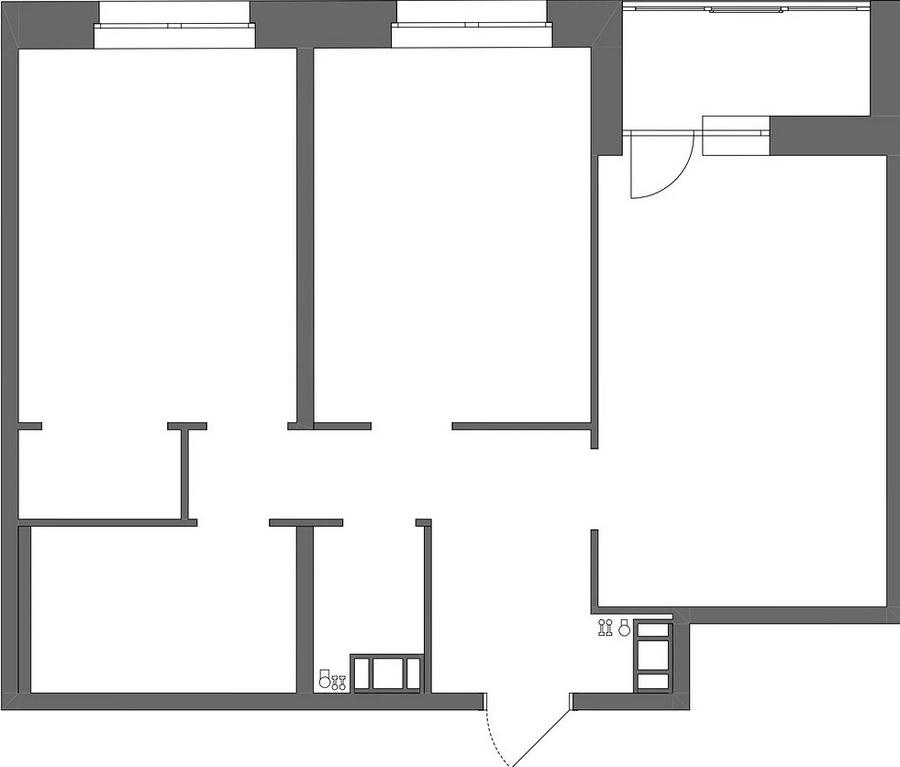
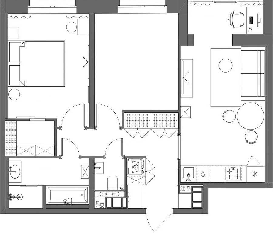
Az eredeti alaprajz szerint az erkélyes lakásban két különálló szoba, gardrób, fürdő, WC és konyha‑nappali volt. A tervező kisebb változtatásokat javasolt: először is megnövelte a gardrób alapterületét; másodszor, a folyosón beépített szekrényt alakítottak ki, amihez a leendő gyerekszoba területéből csíptek le kicsit; harmadszor, a szigetelt lodzsán dolgozósarkot rendeztek be.
Mivel az alapstílus a skandináv volt, annak „szabályai” irányították a burkolatok kiválasztását: világos falak, fa padló, négyzet vagy téglalap formátumú fehér csempe, de megjelenhetnek mélyebb színárnyalatok és geometrikus minták is. A falakon világos festéket használtak, az előszobában pedig egy mélyzöld tónussal emelték ki az ajtót tartalmazó falszakaszt.
A padlóburkolathoz a megrendelők és a tervező famintás vinylt választottak, amelyet praktikusabbnak tartottak a lamináltnál és kedvezőbb árúnak a tömörfánál. Szerették volna, ha a vizes helyiségek kivételével az egész lakásban egységes burkolat fut – a vinyl nedvességálló és jól bírja a mechanikai igénybevételt.
A lakás berendezéséhez széles körben használták az IKEA bútorait. A folyosón a grafitszürke szekrény is onnan származik: a falmélyedést kifejezetten a szekrény méreteihez igazították, így beépített hatást kelt.
A konyhabútor egyedi: kompakt, mégis tágas, minden szükséges gépet beépítettek. A fehér frontok finoman keretes kialakításúak. A sarokban két nyitott polc lazítja a tömör blokkot és dekoratív sarkot teremt.
A nappaliban feltűnő bútor a zöld kanapé. Ez a szín végigvonul a lakáson, és a tervező bevallása szerint éppen ez a kanapé inspirálta őt arra, hogy a skandináv stílust a sztereotip sterilitástól megfosztva, barátságosabbá tegye.
A hálószobában, a gardróbnak köszönhetően nincsenek szekrények. Belül tárolórendszert helyeztek el, amelyet egy pajtaajtó jellegű, fekete fém sínrendszeren futó tolóajtó zár. A konstrukció kilóg az enteriőr fő stílusából, mégsem zavaró; épp ellenkezőleg, eklektikusságot ad és magára vonja a figyelmet.
A fekete fém ágy a megrendelők régi álma volt, szintén a svéd áruházban vásárolták.
A fürdőt funkcionálisan három zónára osztották: mosdó, zuhany és kád. Az egységet a fehér, eltolással rakott négyzet alakú csempe és a kontrasztos fekete fugázás adja. Mindhárom zónát kiemelték: a kád feletti, a vízzel már nem érintkező falfelületet meleg bézs színnel festették, a beépített csaptelepek miatt kialakult felület pedig polcként szolgál, famintás burkolattal a dekor és a piperecikkek számára.
A zuhany egyik falát fekete csempével, a mosdó feletti falat zöld festéssel emelték ki. A padlón apró geometrikus mintás lap, a zuhanyban szürke kőporcelán található.
A WC‑ben folytatódik ugyanez a stílus: a padlón ugyanaz a mintás csempe, a falakon ismét fehér négyzetek fekete fugával és zöld festés, a fa pedig a WC tartályát takaró szekrényfrontokon jelenik meg.
A világításra nagy hangsúlyt fektettek: általános fényként süllyesztett spotok és sínes lámpák szolgálnak. A hangulatvilágítást falikarokkal, a nappaliban és a hálóban függesztékekkel oldották meg, zónákra osztva, így sötétedés után meghittebb, bensőségesebb atmoszféra teremthető.
további cikkek 50 és 100n2 közötti lakások lakberendezése témában | lakberendezés: Nina Klyus | fotók: Margarita Nizamova


































