Hogyan növelhető egy ingatlan piaci értéke nagyobb átépítés nélkül? Egy 1963-ban épült házban található háromszobás lakás felújításával mutatja meg a tervező, hogy a fényviszonyok optimalizálásával, okos térszervezéssel és a geometriai hibák korrigálásával a terek az eredeti falak megtartásával is teljesen új életre kelthetők.

A projekt háttere és a koncepció
A tervező előtt álló feladat kettős volt: egyrészt meg kellett őrizni a hatvanas években épült ingatlan eredeti struktúráját, másrészt olyan befektetési célú felújítást kellett véghezvinni, amely jelentősen növeli a lakás piaci értékét. A megbízói igények középpontjában a térérzet növelése, a természetes fény maximalizálása, valamint a tárolóhelyek bőséges, mégis diszkrét kialakítása állt. A cél egy olyan harmonikus otthon megteremtése volt, amely modern funkcióival és letisztult esztétikájával széles vásárlói réteg számára teszi vonzóvá az ingatlant.
Az eredeti állapot:
Az alaprajz finomhangolása
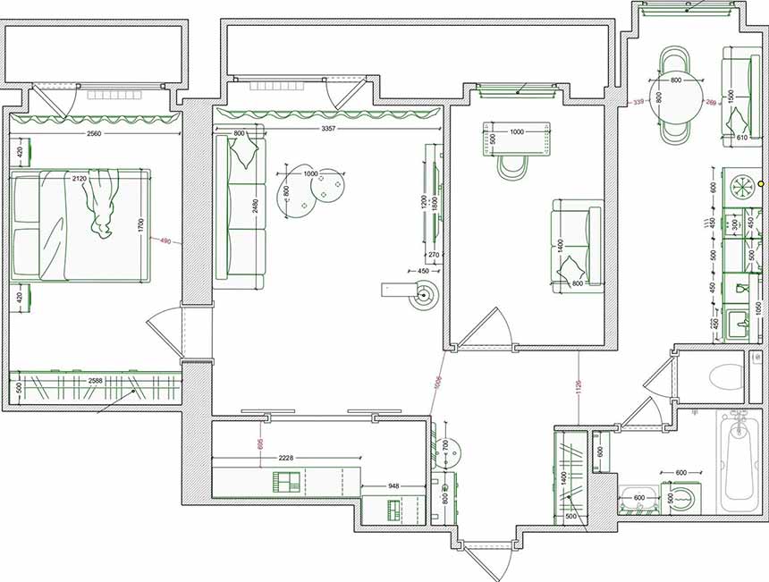
Bár a megbízó kérésére drasztikus falbontásokra nem került sor, a lakás geometriájának korrigálása elengedhetetlen volt. A térszervezés legkritikusabb pontját a vizesblokk jelentette, ahol a hasznos alapterületet csökkentő, szabálytalan falakat és ferde szögeket kellett kiegyenesíteni. A beavatkozásnak köszönhetően a fürdőszoba szerkezete szabályossá és jobban kihasználhatóvá vált.
A felújítás során a gépészeti rendszereket teljesen kicserélték, a falakat és az aljzatot pedig újragondolták. A burkolatok kiválasztásánál a vizuális tagolás és a tartósság volt a fő szempont: míg az előszobában és a vizes helyiségekben nagy formátumú kőporcelánt alkalmaztak, addig a lakószobákba a klasszikus eleganciát idéző, halszálka mintában lerakott, magas kopásállóságú laminált padló került. A falakat festhető tapétával fedték, világos tónusra festették, és diszkrét díszlécekkel gazdagították, ami a polgári otthonok hangulatát idézi.
A projekt egyik legnagyobb kihívását az eredetileg hosszú, csőszerű konyha jelentette. A tervező a teret két jól elkülöníthető zónára osztotta: a tényleges munkaterületre és egy hangulatos étkezősarokra. Az ablak közelében egy kényelmes kanapéval és kerek étkezőasztallal kialakított reggelizősarok kapott helyet, ami megtöri a “folyosó-hatást”, és multifunkcionálissá teszi a helyiséget – legyen szó étkezésről, munkáról vagy vendégfogadásról.
A bútortervezésnél a zsúfoltság elkerülése érdekében egy szakaszon elhagyták a felső konyhaszekrényeket. A gépészeti elemek elrejtése különös figyelmet kapott: a gázcsöveket a beépített hűtőszekrényt is magában foglaló magas elembe integrálták, biztosítva a szerelhetőséget, míg a fűtéscsöveket diszkréten a kanapé mögé rejtették, így a vizuális összkép tiszta és rendezett maradt.
A nappali kialakításánál a tárolás optimalizálása volt a kulcskérdés. A térbe egy gipszkartonból épített, méretre szabott gardróbot illesztettek, amely nyitott polcokkal és egy kis ülősarokkal egészül ki. A költséghatékonyság jegyében kész szekrényvázakat építettek be az előkészített falfülkékbe, ami asztalosmunka hatását kelti, mégis kíméli a költségvetést.
A gardrób elválasztását bordázott üvegezésű tolóajtókkal oldották meg. Ez a megoldás nemcsak praktikus, de az üveg textúrája grafikus elemmel gazdagítja a teret, miközben átereszti a fényt. A világításról egyedi tervezésű falikarok gondoskodnak, a természetes textíliák és az élő növények pedig otthonosságot csempésznek a modern enteriőrbe.
A hálószobában is folytatódik a költséghatékony, mégis esztétikus tárolási koncepció: a beépített hatást keltő szekrények itt is gipszkarton fülkékben kaptak helyet. A színhasználat visszafogott, a textíliák természetes anyaga és a gondosan megválasztott kiegészítők – mint egy külföldről beszerzett konzolasztal – emelik a tér nívóját.
A harmadik szobát a tervező tudatosan hagyta szabadon értelmezhetőnek. Ez a helyiség funkcionálhat dolgozószobaként, gyerekszobaként vagy második hálószobaként is, attól függően, hogy a leendő tulajdonosnak mire van szüksége. Ez a rugalmasság jelentős vonzerőt jelent az ingatlanpiacon.
A fürdőszoba felújítása során a legnagyobb eredmény a tér szabályosítása volt. A “vizes zónákban” a falakat nagyméretű kerámia lapokkal burkolták, míg a kevésbé igénybe vett felületeken vízálló falfestéket alkalmaztak, ami tágasabbá és szobaszerűbbé teszi a kis helyiséget.
Kiemelt figyelmet fordítottak az ergonómiára, különösen a mosógép és a mosdó elhelyezésénél. Mivel a két funkciót egymás közelében kellett elhelyezni, egy speciális, süllyesztett kialakítású mosdót választottak. A mosdótál jelentős része a bútorba süllyed, így a pultmagasság kényelmes maradt, elkerülve azt a gyakori hibát, amikor a gép fölé helyezett ráépíthető mosdó miatt kényelmetlenül magasra kerül a kézmosó.
további cikkek 50 és 100n2 közötti lakások lakberendezése témában | lakberendezés: Az-Zari Victoria Valeryevna | fotók: Egor Vorobiev

































