A tervezőt saját gyermekkori emlékei inspirálták: azok a nyaralók, ahol a berendezést gyakran a városi lakásból kiszorult, „felesleges” tárgyak alkották, ám éppen ez az eklektika teremtette meg azt az utánozhatatlan, otthonos légkört. A 32 m²-es lakás tulajdonosainak kérése egyértelmű volt: egy jellegtelen, elavult lakásból szerettek volna hangulatos enteriőrt varázsolni, amelyet természetes árnyalatok és a zöld szín dominanciája jellemez.

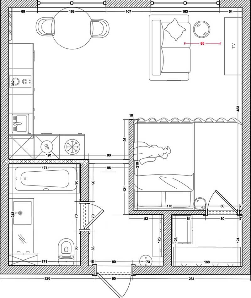
Kiindulási állapot és térszervezés
A 32 négyzetméteres lakásban az egyetlen szobán kívül volt egy külön gardróbhelyiség és egy teljes értékű, kádas fürdőszoba is. A tulajdonosok kifejezett kérése volt, hogy a meglévő falakat ne mozgassák, és kerüljék a felesleges építési munkákat.
A legnagyobb kihívást az egyetlen lakószoba funkcionális felosztása jelentette. A tervező a színeket hívta segítségül a zónázáshoz: a háló és a konyha hangsúlyos, mély árnyalatokat kapott, míg a köztes terek semlegesek maradtak, így teremtve vizuális egyensúlyt. A meglévő burkolatokat megőrizték, csupán a hálófülke egyik falát burkolták utólagosan MDF-panelekkel a textúrák gazdagítása érdekében.
A lakásba lépve egy semleges tónusú tér fogadja az érkezőt, amely nyugodt alapot biztosít a dekorációnak. Mivel a költséghatékonyság szempont volt, a meglévő beugróba nem építettek drága gardróbszekrényt. Helyette egy praktikus polcrendszert alakítottak ki, amelyet egy mennyezeti sínre szerelt, elegáns textillel rejtettek el – ez a megoldás lágyítja a teret. A funkcionalitást egy olívazöld szék és egy apró lerakópolc egészíti ki. A szemközti falat dekoratív képkeretek kompozíciója díszíti.
Nem volt szükség hatalmas konyhára. Az asztalos által készített egyedi bútorzat nélkülözi a felső szekrényeket, így a tér szellősebb maradt. Az alsó elemek terrakotta színű MDF frontjai melegséget visznek a térbe, míg a hűtőt és a sütőt rejtő magas elemeket a szemközti falnál helyezték el.
A térérzet növelésére a tervező egy zseniális trükköt alkalmazott: az ablak melletti falra, ahol a gépészet fut, egy padlótól mennyezetig érő tükröt ragasztottak, amely optikailag tágítja a teret és megsokszorozza a természetes fényt. A hátfal nagyméretű, természetes mintázatú kőporcelánból készült, amely a vékony fugáknak köszönhetően szinte egybefüggő felületnek hat.
A világítás itt kulcsszerepet kap: retro stílusú falikarok világítják meg a pultot, az étkezőasztal fölé pedig egy tekintélyes vintage csillár került. Ennek súlya miatt a rögzítést közvetlenül a betonfödémbe fúrták, átvágva az álmennyezetet. A dekorációt barokk stílusú gipszkeretekbe foglalt képek teszik teljessé, erősítve az eklektikus összhatást.
A konyha és a háló között elhelyezkedő nappali központi eleme egy kompakt, mégis kényelmes, olívazöld kanapé, amely színével és elhelyezésével kijelöli a pihenőzóna határait. Vele szemben egy fal színével harmonizáló TV-szekrény áll. A tér vizuális gazdagságát a textúrák adják: a szőnyeg mintázata finoman visszaköszön a fürdőszoba padlóján, míg az afrikai stílusú, arany dohányzóasztal elegánsan rímel a konyhai csillár fém részleteire. A világítás itt visszafogott: egyetlen, fényerőszabályzós, lapos mennyezeti lámpa biztosítja az alapfényt, hogy ne vonja el a figyelmet a látványosabb designelemekről.
Ez is érdekelhet: Diszkrét eklektika: fiatal nő 60m2-es lakása
A hálót egy 5,5 négyzetméteres alkóvban alakították ki, amelyet sötétítőfüggönnyel lehet leválasztani a tér többi részétől. A helytakarékosság jegyében éjjeliszekrény helyett egy karcsú, acél lerakóasztal került az ágy mellé. A kárpitozott ágy terrakotta szövete harmonizál a konyhabútorral, és ágyneműtartója révén extra tárolóhelyet is biztosít.
A hálószoba egyik legizgalmasabb eleme a „titkos ajtó”. A gardróbszobába nyíló ajtót a tervező MDF-panelekkel burkolta, majd a fal színére festette. Ez a lambériára emlékeztető megoldás a régi nyaralók tornácait idézi, és elegánsan rejti el a tárolóhelyiséget. A falvésés elkerülése érdekében a falikarokat dekoratív, látható vezetékkel szerelték fel, ami ipari bájt kölcsönöz a saroknak.
A vizesblokkban a klasszikus és modern elemek keverednek. A padlót fekete-fehér sakktábla mintás burkolat fedi, amely időtlen eleganciát sugároz. A falakon meghagyták az eredeti csempét, de a fugákat átfestették, frissítve az összhatást. A mosdó mögötti falat vízálló, festett dekorpanelekkel emelték ki, megszüntetve a tipikus „fürdőszoba-doboz” érzést. A tárolást egy tükrös felső szekrény és egy mosdó alatti szekrény oldja meg, a világítás pedig hangulatosan emeli ki a felújított felületeket.
Az eredmény egy eklektikus, mégis harmonikus otthon, ahol a klasszikus fa elemek, a vintage világítótestek és a bátor színhasználat (mélyzöldek, terrakották) tökéletes egyensúlyt alkotnak.
további cikkek kis lakás berendezése témában | lakberendezés: Maria Derendyaeva | fotók: Tatyana Kazakova




























