Élénk, színes, modern enteriőr kialakítására kapott megbízást a lakberendező stúdió. A pici alapterületen logikusan kellett elosztani a funkcionális zónákat a lehető legtöbb tárolóhellyel, kényelmesen tágas konyhával, étkezőpulttal és ággyá alakítható kanapéval.

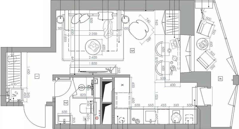
A lakás elosztásán nem változtattak, a felújítás során nagy konyhát alakítottak ki, az étkezőasztal szerepét pedig a magas, széles ablakpárkány tölti be – amely munkahelyként is funkcionálhat. A háló-nappali a lakás központi részén kapott helyet egy kihúzható kanapé formájában.
A projektben két nagy, egyedi gyártású szekrényt terveztek: az előszobában a szezonális ruháknak és egyéb tárgyaknak van hely, beleértve a háztartási gépek (vasaló, vasalódeszka) polcait, valamint van egy ruhásszekrény a szobában is. A zuhanyzóban, a WC felett is kiépítettek egy tárolórendszert, ahol a gépészet mellett a háztartási vegyszerek polcai is helyet kaptak.
A felületképzés során kvarc vinylt, matt lakkal kezelt betonhatású vakolatot, duropolimer díszléceket, festést és greslapokat alkalmaztak – minden anyag rendkívül kopásálló.
A lakásban egy meglehetősen nagy és funkcionális konyha is elfért, amelyben fiókok, nyílóajtós tárolómodulok is vannak, valamint a szemetesnek és a vízszűrőnek is jutott hely. A konyhabútor egyedi megrendelésre készült: standard 600 mm-es és 450 mm-es, valamint egyedi méretű modulokat is felhasználtak.
“A konyha egyik rácsos felső elemében rejtőzik a légkondicionáló beltéri egysége – így nem rontottuk el a kis lakás vizuális összképét. Sok gépet beépítettünk, köztük a hűtőszekrényt, mosó- és mosogatógépet, mikrohullámú sütőt, főzőlapot és szénszűrős páraelszívót” – mesélik a tervezők.
további cikkek kis lakás berendezése témában | lakberendezés: AM|Interior studio | fotók: Alexander Zinoviev





















