A projektben egy egyetemista lány számára rendeztek be egy 37 négyzetméteres lakást, melynek tervezésével a szülők profi lakberendezőt bíztak meg. Az alapvető funkcionális elvárások világosak voltak: a mindennapi élethez elengedhetetlen bőséges tárolóhely és egy kényelmes tanulósarok kialakítása.
Bár a funkciókat a szülők határozták meg, a vizuális koncepció véglegesítésébe a leendő lakó is aktívan bekapcsolódott. A diáklány egy kifejezetten semleges, bézs tónusokra épülő, színes dekorációktól mentes miliőt képzelt el. A tervező ezt a letisztult alapot a modern, valamint a japandi és a wabi-sabi stílusjegyek finom ötvözésével, illetve izgalmas fa textúrákkal és térbeli játékokkal tette élettelibbé, kerülve a túlzott egyhangúságot.

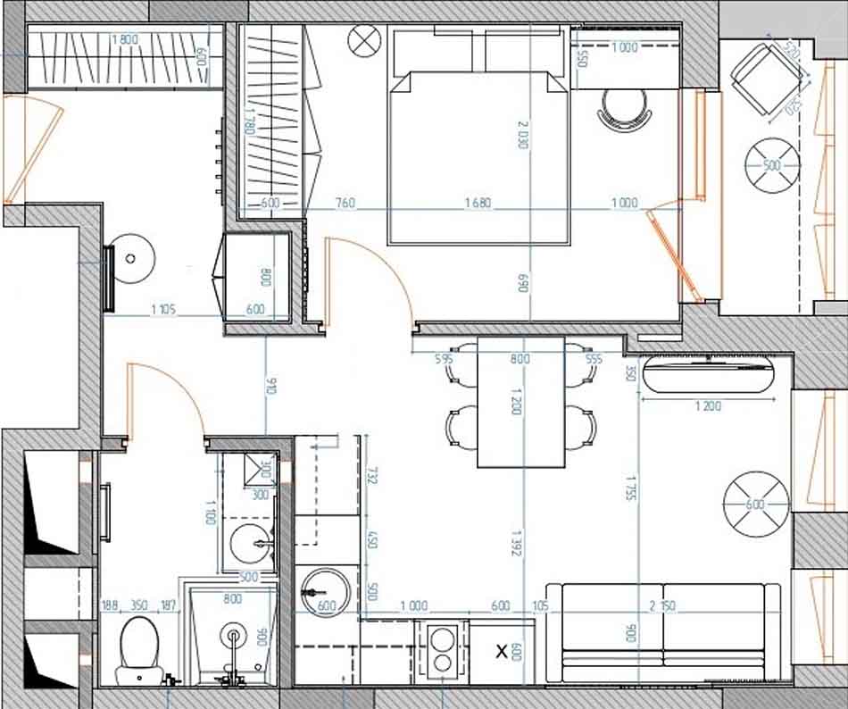
Az építtetői elosztásban eredetileg kizárólag a fürdőszoba volt válaszfalakkal határolva. A vizesblokkok helyének megtartása mellett a tervező a tér teljes átalakítását javasolta annak érdekében, hogy a kis alapterületen minél több beépített tárolórendszert lehessen elhelyezni. Ennek a koncepciónak a részeként a hálószoba bejárata a nappali-konyha zónából nyílik, a közlekedőkben és a hálószobában pedig gipszkarton fülkéket alakítottak ki a beépített szekrények számára.
A térérzet növelése és az optikai egységesség jegyében a fürdőszoba kivételével az egész lakásban – a szobában, az előszobában és a nyitott nappali-konyha térben – azonos kő-polimer kompozit (SPC) padlóburkolatot fektettek le. A falak a megbízók kérésére sima, világos festést kaptak, amely remek, semleges hátteret biztosít az asztalosmunkáknak. A lakás általános alapvilágítását egy modern, mennyezeti sínrendszeres lámpatest-hálózat biztosítja, amelyet helyiségenként kiegészítő fényforrások tesznek teljessé.
A bejáratnál rögtön egy gipszkarton fülkébe simuló beépített ruhásszekrény kapott helyet, amelyben a robotporszívó töltőállomását és a létra helyét is praktikusan kialakították. A folyosón tovább haladva egy háztartási szekrény található a takarítóeszközök számára. A beépített bútorok költséghatékony, fehér laminált bútorlap frontokkal készültek, azonban a tervező a korpuszok faerezetű éleit szándékosan láttatni engedte. Ez a “keretes” fahatás melegséget és életet visz a letisztult, fehér felületekbe.
A konyha és nappali zóna konyhai részén a falszínnel szinte megegyező árnyalatú frontokkal készült a konyhabútor. A költségoptimalizálás jegyében a felső szekrények nem érnek a mennyezetig, és a zárt elemek egy részét hangulatos, rejtett LED-világítással ellátott nyitott polcok váltják fel. A konyhai gépeket – a hűtőszekrényt, a keskeny sütőt és a mosogatógépet – teljesen beépítették a letisztult összkép érdekében. Az étkezőasztal fölött egy fonott burás függeszték gondoskodik a meleg helyi világításról.
A nappali zónában a kanapé mögötti sarokban és a TV-falon fa hatású burkolópanelek teremtenek vizuális hangsúlyt és térbeli dinamikát. A kanapé mögötti falon egyedi, geometrikus kivágásokat hoztak létre, amelyekben falikarokat helyeztek el. A fa panelek mögötti rejtett világítás és a falikarok együttesen biztosítják a nappali meghitt, esti fényhatásait.

Hálószoba és tanulósarok
A hálószobában egy előre kialakított fülkében kapott helyet a ruhákat és ágyneműket rejtő, mennyezetig érő gardróbszekrény. A kétszemélyes ágy elhelyezésénél a helytakarékosság volt a fő szempont: a hagyományos, vaskos ágytámla elhagyásával 15-20 centimétert nyertek, így kényelmesen széles maradt a közlekedő a dolgozósarok felé. Az ágytámlát egy egyedi, falra szerelhető puha párnarendszer helyettesíti, amihez az ágy mindkét oldalán külön kapcsolható olvasólámpák társulnak.

A szoba másik felében lévő tanulósarokban egy vékony falábakon álló, kétfiókos íróasztal kapott helyet. Az asztal mögötti falfelületet szintén fahatású, lamellás panelek díszítik, melyekre a könyvek és füzetek tárolására alkalmas polcokat rögzítettek. A lamellák mögé épített, önállóan kapcsolható rejtett világítás tökéletes fókuszfényt ad a tanuláshoz.
A fürdőszobában egyazon csempekollekció világos bézs és lágy zöld árnyalatait kombinálták, a padlóra pedig tartós greslapot választottak. Az épített zuhanytálcát mozaikburkolattal látták el, méretét pedig tudatosan egy standard üvegkabin méretéhez igazították, így elkerülhető volt az egyedi gyártású üvegfalak magas költsége. A mosdó alatt egy falra szerelt, lebegő hatású szekrény található, amely alatt kényelmesen elfér a szennyestartó kosár. A tárolókapacitást egy nyitott polcos állvány egészíti ki. A költséghatékony, de esztétikus integrált mosdópulthoz az asztalosok hajszálpontosan igazították a pult alatti szekrény méretét, így az eredmény teljesen egyedi beépítés hatását kelti.
további cikkek kis lakás berendezése témában | lakberendezés: Irina Dolganova | fotók: Daria Ivanitskaya

































