Lakberendező segítségét kérték egy kis lakás kialakításához, a 29 m²-es ingatlant egy egyetemista fiú első önálló otthonának szánták. Modern, funkcionális és egyedi otthont kértek a megbízók, a fő feladat egy esztétikus, gyorsan megvalósítható és költséghatékony enteriőr kialakítása volt.
Általános stílus
Az enteriőr teljes egészében monokróm, a megbízó nem szeretett volna élénk színeket, még a textíliákban és a dekorációban sem.
A szürkésbézs tónusokat fekete elemek élénkítik. Ebben a lakásban a fekete szín elválasztó elemként működik, kiemeli és érdekesebbé teszi a lakás többi színét. Ilyen a fekete dohányzóasztal, a fekete vasalatok, a fekete szaniterek, a székek fekete lábai, a beépített szekrények fekete fém elemei stb. Pontosan a fekete az, ami életre kelti a többi árnyalatot, megadja a szükséges kontrasztot, és kiemeli a színeket és tárgyakat. Ez a megoldás különösen jól működik a semleges, szürkésbézs enteriőrökben, megakadályozva, hogy az összhatás jellegtelen és élettelen legyen.

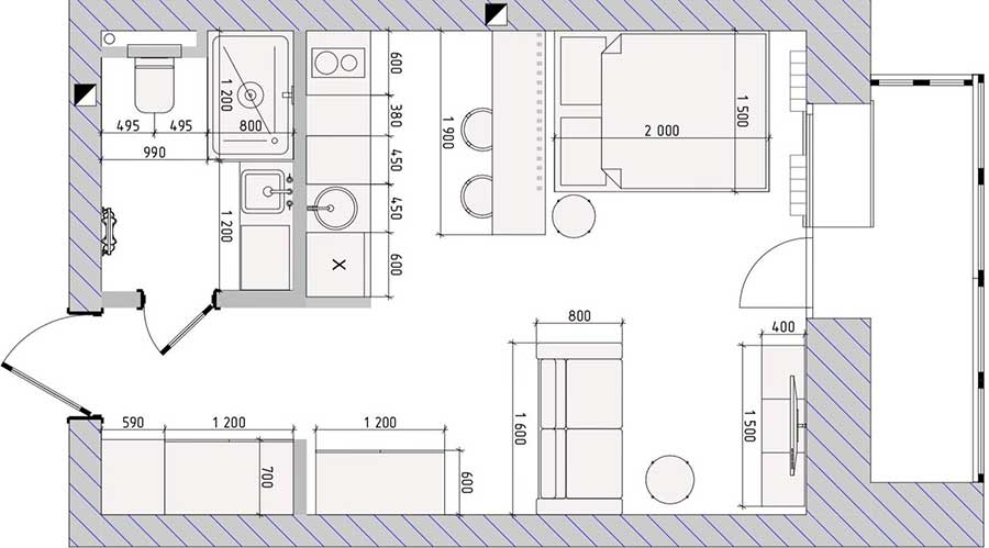
A kis lakásban egyértelmű, jól elkülönített zónákat alakítottak ki:
- Külön előszoba
- Konyha (főző és étkező zóna)
- Nappali (kanapé + TV)
- Háló (ágy)
- Tárolóhely (beépített szekrény)
- Fürdőszoba
A megbízónak különösen tetszett, hogy a televíziót három különböző pontból is kényelmesen lehet nézni: a kanapéról, az ágyból és a bárpulttól is.
Előszoba
Az előszoba keskeny és kicsi, ezért a szekrény tükrös ajtókat kapott. A bárpultnál is alkalmazott léces megoldás visszaköszön a bejárat melletti puff felett. A léceken akasztók találhatók és egy polc a sapkáknak/táskáknak. A puff alatt van egy kis hely a cipők számára.
A bejárati ajtót nem cserélték ki, de a fürdőszobához egy gyönyörű, furnérozott beltéri ajtót választottak – a fa textúrája kiválóan finomítja a monokróm belső teret, és illik a lakás többi bútorához.
Konyha
A lakó keveset és ritkán főz, ezért a szükséges minimumra szorítkoztak. A konyhabútor kicsi, de a tervezésnek köszönhetően helykihasználása mégis kiváló. A belmagasság lehetővé tette a konyha “háromszintes” kialakítását.
A vizuális zsúfoltság elkerülése érdekében a tervező játszott a színekkel. A felső szekrények fehérek lettek, így “lágyítják” a bútor tömegét, a középső szekrények fa hatásúak, az alsók pedig “mokka” színűek. Az eredmény nagyon harmonikus és egyáltalán nem unalmas.
A konyhai hátfal egy hangsúlyos, betonhatású tapéta, ugyanaz, mint a szomszédos falon. A hátfal területén a tapétát plexiüveg borítás védi. Ez egy rendkívül praktikus, olcsó és egyszerűen kivitelezhető megoldás.
A bárpult munkalapjától a mennyezetig futó lécek tökéletesen elválasztják a konyhát és a hálót. Egy keresztirányú léc “megfogja” az esetleges morzsákat, és megakadályozza, hogy azok az ágyra hulljanak. A lécek a takarítást is megkönnyítik, ami egy fiatal lakó számára különösen fontos. A bárpult nemcsak asztalként funkcionál, hanem fontos funkcionális szerepet is betölt: a konyha felőli oldalán polcok rejtőznek benne.
Nappali
A nappali zóna nyugodt árnyalatokkal lett kialakítva, és az ide választott TV-szekrény illett a projekt általános stíluskoncepciójába. A szekrény egyes polcai nyitottak, ami lehetővé teszi a szükséges eszközök elhelyezését anélkül, hogy a kábelek számára külön átvezetést kellene fúrni. A legfontosabb az volt, hogy a konnektorokat előre a megfelelő magasságba helyezzék, amire a tervező különös figyelmet fordított az elektromos tervrajzon.
Ez is érdekelhet: Ajándék a lányuknak: kicsi, mégis rendkívül funkcionális, 29m2-es lakás egy egyetemistának
Háló
Ebben a zónában hangsúlyos, sötétszürke, betonhatású tapétát használtak. Ez vizuálisan elválasztja az ágyat a kanapétól, ugyanakkor összekapcsolja azt a konyha zónájával.
Az éjjeliszekrény stílusban és színben is illeszkedik a TV-szekrényhez. Nyugodt tónusai mintegy kiegyensúlyozzák az ágy melletti aktívabb falat. Vizuális kompaktsága ellenére a szekrény rendkívül funkcionális – pontosan erre van szükség az ilyen kis stúdiólakásokban, ahol minden négyzetméter számít. Ez a kis éjjeliszekrény egyben zónaelválasztó elemként is működik.
Fürdőszoba
Itt minden szükséges funkció helyet kapott. Bekerült a mosógép, egy tágas (1200×800 mm-es) zuhanyzó, és egy szekrény a háztartási vegyszereknek a WC-tartály felett.
A fürdőszoba szintén monokróm árnyalatokban lett kialakítva, fa elemekkel kiegészítve. A zuhanyzó területét sötétszürke, nagy formátumú greslapokkal, míg a többi zónát világosszürkével burkolták.
A fekete törölközőszárító és a fekete szaniterek lehetővé teszik, hogy a szürke színek érdekesebben “játsszanak”. A mosógép fölé egy grafit színű fali szekrény került. Ez kompakt és nem zsúfolja tele a kis helyiséget. Itt egy másik érdekes megoldást is alkalmaztak: a szekrény egy vonalban van a tükörrel és a zuhanyfallal, ami vizuálisan egyensúlyba hozza az összes tárgyat, és az enteriőr befejezettebbnek tűnik.
további cikkek kis lakás berendezése témában | lakberendezés: Anna Pozdnyakova



























