Az ergonomikus térszervezésnek köszönhetően a tervezőnek sikerült a kis alapterület minden négyzetcentiméterét maximálisan kihasználnia, és egy vizuálisan letisztult, mégis részletgazdag otthont alkotott hölgy ügyfelének.
A 36 m²-es lakás tulajdonosa, egy fiatal, aktív életmódot folytató nő, a fárasztó munkanapok után egy nyugodt, rendezett környezetben szeretett volna pihenni. Az igényei határozottak voltak: az egyszobás lakásban el kellett helyezni hálószobát gardróbbal, konyha-nappalit kanapéval, valamint természetesen a fürdőszobát és az előszobát. A belsőépítészeti koncepció alapja a tiszta vonalvezetés és a minőségi anyaghasználat lett, amely tökéletesen tükrözi a lakó személyiségét. A végeredmény egy lágyabb elemeket sem nélkülöző, minimalista, természetes tónusokra épülő enteriőr.

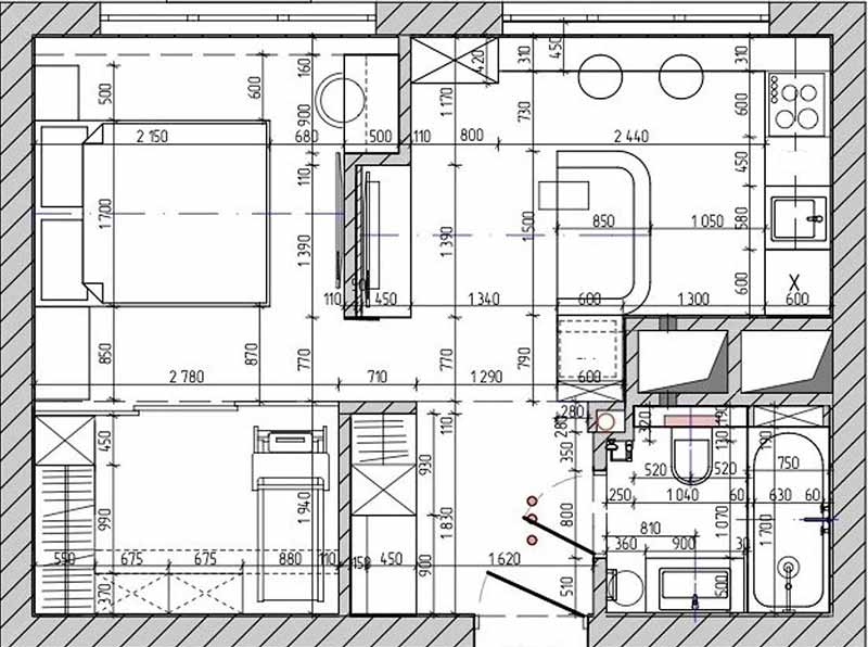
Az átalakítás és az alaprajz
Az eredeti alaprajzon még különálló konyha és egy szoba szerepelt. A tulajdonos kérésének – a tágasabb, multifunkcionális terek létrehozásának – érdekében a tervező jelentős alaprajzi módosítást javasolt. A konyha és a szoba közötti válaszfalat elbontották, és új falakat emeltek, aminek köszönhetően sikerült leválasztani egy kompakt nappali zónát közvetlenül a konyha mellett. A térszervezés egyik kulcseleme a hálószobából nyíló gardróbhelyiség lett, amelyet egy fémkeretes, füstüvegezett tolóajtóval választottak le a hálótérről, így biztosítva a fény áramlását, de elszeparálva a tárolórendszert.
Előszoba
A bejárati zónába lépve azonnal érzékelhető a koncepciót uraló egységesség és praktikum. A padlót az előszobábant – és a fürdőszobában is – egy karakteres, terrazzo mintás greslap borítja. Ez a burkolatváltás vizuálisan is kijelöli a zónát, elhatárolva azt a lakás többi részétől, ugyanakkor összeköti a vizes helyiségeket. A tárolásról egy mennyezetig érő szekrény gondoskodik, amelyet egy ülőkével és konzollal ellátott nyitott rész tesz szellősebbé; ez alatt kapott helyet a cipők tárolója. A megvilágítást sínrendszeres lámpák és egy falikar biztosítja, amely hangulatfényként egy műalkotást is megvilágít. A nappali és az előszoba határán egy magas toronyszekrény áll, amely kettős funkciót lát el: az előszoba felől rejti a mosógépet és a háztartási szereket, míg a nappali oldaláról polcos tárolóként funkcionál.
Konyha és nappali zónák
A konyhabútor kompakt kialakítású, beépített hűtővel és mennyezetig érő felső szekrényekkel, azonban a munkafelület korlátozott mérete miatt kreatív megoldásra volt szükség. A tervező a mikrohullámú sütőt és a vízforralót a TV-zóna és a bárpult melletti szekrénybe rejtette: a gépészet zárt ajtó mögött kapott helyet, a vízforraló egy kihúzható polcon áll, felettük pedig egy üveges vitrin szolgál a díszesebb edények tárolására. A világítást itt is sínrendszer és a bútorzatba rejtett LED-szalagok biztosítják.

A közösségi térben a padlót meleg hatású, halszálkás mintájú vinyl burkolja. A tervező a praktikum miatt választotta ezt az anyagot: víz- és kopásálló, így nem volt szükség a kis alapterületű tér további felszabdalására különböző burkolatokkal. A falakat világos bézs falfesték borítja, amelyet a nappali zónában a kanapé melletti tárolórendszeren és a falon megjelenő furnérozott panelek egészítenek ki. A TV-fal mögött gipszpanelek imitálnak durva kőfelületet, izgalmas textúrát adva a térnek.

Hálószoba és gardrób
Az ágy fejtámlája mögött puha kárpitozott panelek és gipsz lécezett elemek váltják egymást. Az ággyal szemben, az ablaknál egy dolgozósarok kapott helyet, amely fésülködőasztalként is funkcionál, felette zárt faliszekrényekkel. A hálóból nyíló, üvegfalú gardróbban a polcrendszerek mellett a tulajdonos kérésére a futópadnak is jutott hely, így a sporteszköz nem a nappali látványát töri meg. A világítást az ágy melletti olvasólámpák és rejtett hangulatfények teszik teljessé.
Fürdőszoba
A fürdőszoba falain a nyugalom jegyében kőhatású kerámia dominál, amely harmonizál a padló terrazzo mintájával. A tárolás itt is maximálisan kihasznált: a mosdó alatti szekrény mellett a WC-tartály beépítése felett is tárolóhelyet alakítottak ki, amely a kádnál nyitott polcokba megy át, helyet biztosítva a kozmetikumoknak. A megvilágításról a tükör melletti falikar és a mennyezeti lámpák gondoskodnak.
további cikkek kis lakás berendezése témában | lakberendezés: Irina Vashchenko | fotók: Anastasia Kutyrina



























