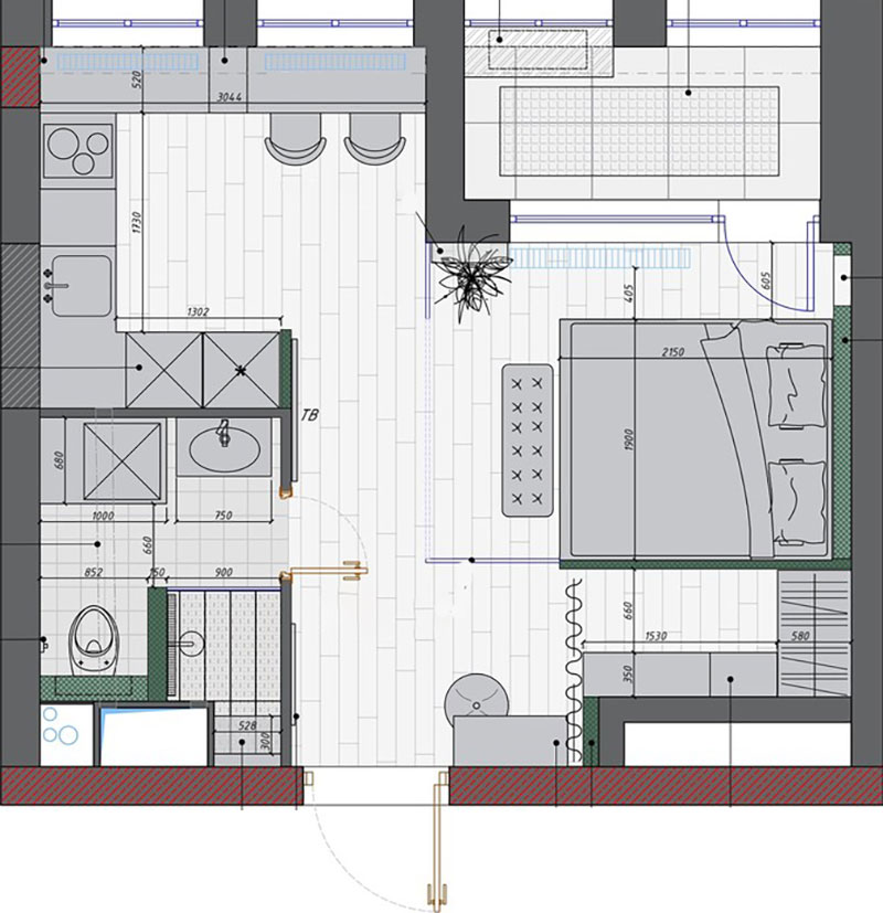
A kis alapterületű, mindössze 28m2-es lakásban sok az ablak, így itt mindig sok természetes fény és friss levegő áramlik be. Mivel a fiatal nő kifejezetten kedveli a növényeket, a terekben a trópusokat idéző hangulat megteremtése mellett döntöttek – ezt nemcsak természetes bézs és zöld árnyalatokkal, hanem tapétával, képekkel és fa elemek beépítésével is hangsúlyozták.

A fürdőszoba falát kissé megtoldva egy fülkét alakítottak ki az L alakban tervezett konyhabútornak. A pultot kiterjesztették az ablak elé, ezzel kétszemélyes étkezőt hoztak létre. A háló zónát csak az előszoba felől határolja tömör fal, ez választja le a gardróbot. A hálót teljes területét a térérzetet nem szűkítő további üvegezett panelekkel jelölték ki. Nappali nincs, de az ügyfélnek fontosabb volt a kényelmesen és praktikusan berendezett alvó zóna.
A zöld szín kiválasztásánál az IKEA konyhabútor volt az irányadó, amely mind színben, mind költségben megfelelt az elképzeléseknek. A bejárat mellett kialakított, függönnyel leválasztott gardrób mellett a konyhabútor a másik fő tárolórendszer, így a tárolókapacitást maximalizálták a mennyezetig érő elemekkel. A felső polcok pedig létráról könnyen elérhetők – a létra a lodzsán növénytartóként is funkcionál, amikor épp nincs használatban.
A fürdőszobát világos burkolatokkal, meleg árnyalatú fa és fa hatású kerámia felületekkel díszítették, a padlóra választott színesebb, mintás csempék élénkítik a dekorációt. A törölközők szárításához az egyik falba fűtést szereltek. Bár a zuhanyzó ténylegesen 90×90 cm, a mély fülkének – amely polcokat, ülőfelületet és trópusi eső élményt kínáló zuhanyt tartalmaz – köszönhetően a tér tágasabbnak hat, és bőséges tárolófelületet kínál.
további cikkek kis lakás berendezése témában | lakberendezés: Olga Szemcsenko

























