Az ötemeletes társasház 1917-ben épült. A tervező feladata az volt, hogy olyan modern, univerzális enteriőrt hozzon létre, amely jól illik a fiatal tulajdonoshoz. A koncepció alapját a mindössze 24 m²-es garzonlakásban New York dinamikus és nyers, indusztriális stílusa ihlette.
Az épületet a 90-es években irodákká alakították át, így a klasszikus alaprajzok teljesen elvesztek. Amikor a befektető átfogó felújítás céljából megvásárolta az ingatlant, a lakberendezők egy tipikus, gipszkarton falakkal apró irodahelyiségekre osztott teret kaptak. A teljes alaprajzot újraosztották kompakt lakásokra; a gépészeti rendszereket és a vezetékeket a modern követelményeknek és az új elrendezésnek megfelelően teljesen újratervezték és kiépítették.
A bontási munkálatok során autentikus poroszsüveg-boltozatok, a nyílások feletti téglaívek és még néhány régi lelet is előkerült. Ezek a felfedezések jelentették a projekt kiindulópontját. Ahol csak lehetett, a boltozatokat és a történelmi téglafalazatot gondosan restaurálták, és beépítették az új dizájnba.
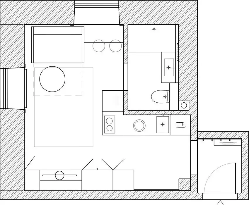
A garzonlakásnak a fő helyisége L-alakú alaprajzzal és két egymásra merőleges falon elhelyezkedő, nagy ablakokkal rendelkezik. Az ablakok elhelyezkedése alapjaiban határozta meg a konyhabútor pozícióját is. A külső sarok mentén kellett elhelyezni, ami normál esetben tovább erősíthette volna a tér szabálytalan formájának érzetét. A tervező azonban vizuális és színbeli trükköket alkalmazott a figyelem elterelésére.
A falakat fokozottan ellenálló, mosható szupermatt zománcfesték borítja – ez egy kifejezetten praktikus megoldás a kis helyiségekben, amin a tervezés során nem volt érdemes spórolni. A fürdőszobában kerámiaburkolatot használtak a falakon és a padlón egyaránt. A konyha tágas tárolórendszerrel van felszerelve. A klasszikus sütő helyett itt egy főzőlap és egy mikrohullámú sütő kombinációja kapott helyet. Helytakarékossági okokból a mosógépet és a kompakt hűtőszekrényt a pult alá építették be.
A tárolórendszerek szervesen illeszkednek a térbe. A beépített szekrények egészen a mennyezetig érnek, bőséges helyet biztosítva a legszükségesebb holmik tárolására.
Az élénkkék fókuszfal és a hozzá kiegészítő színként választott fukszia kanapé olyan vibráló kontrasztot teremt, amely a szoba geometriájáról a színek dinamikájára irányítja a tekintetet. A világítás és a dekoráció szintén részt vesz ebben a figyelemfelkeltő játékban, tovább fokozva az optikai hatást.
Kifejezetten rendhagyó részlet a fürdőszobai csillár. A tervezők szándékosan szakítottak a hagyományos sztereotípiákkal, hogy még egyedibbé és személyesebbé tegyék a enteriőrt.
további cikkek kis lakás berendezése témában | lakberendezés: Varvara Golovko | fotók: Mikhail Bravy



















