A projekt egy 46 m²-es, modern lakóparkban található ingatlan átalakítását mutatja be. A megbízók, egy házaspár, fontos jövőbeli szempontot is figyelembe vettek: egyetemista lányuk a tanulmányai befejeztével ebben a lakásban kezdi majd az önálló életet.
A lakberendező multifunkcionális életteret alkotott: a fő cél egy kényelmes konyha-nappali – teljes értékű alvást biztosító kanapéval és étkezőasztallal -, valamint egy külön hálószoba létrehozása volt, amely méretes gardróbbal és egy kompakt dolgozósarokkal is rendelkezik.

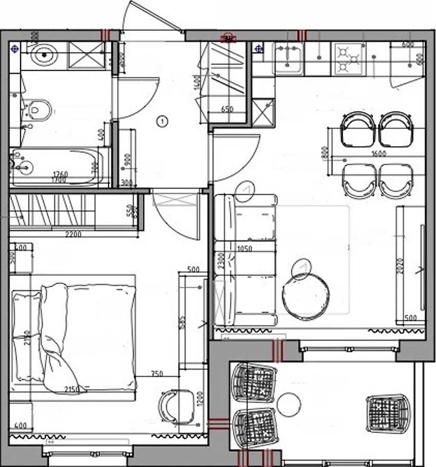
Eredeti állapot és a tér átalakítása
Az eredeti alaprajz egy külön hálószobából, egybenyitott konyha-nappali zónából, fürdőszobából és lodzsából állt. Az elrendezés alapvetően funkcionálisnak bizonyult, így a tervező csak egyetlen, ám annál fontosabb ponton változtatott: a hálószoba ajtajának nyílását kissé eltolta. Ez a finom módosítás kulcsfontosságú volt ahhoz, hogy az előszobában egy teljes értékű, fal síkjába simuló tárolórendszert lehessen kiépíteni.
Előszoba: a diófa és a terrazzo találkozása
Az előtér hangulatát a meleg, sötét diófa tónusú bútorlapok és a hűvös pisztácia színűre festett falak kifinomult kettőssége határozza meg. A padlón praktikus és látványos, nagyméretű, terrazzo mintás greslapot használtak. A tárolásról egy méretes, padlótól plafonig érő gardróbszekrény gondoskodik, amelynek alsó, nyitott részén helyet hagytak a cipőknek és a robotporszívó töltőállomásának – utóbbihoz rejtett konnektort is kiépítettek.
PROFI TIPP: A fal színének “átfordítása” a mennyezetre – ahogyan itt az előszobában is látható – egy izgalmas tervezői fogás. Segít egybefogni a teret, és ahelyett, hogy “lenyomná”, inkább karaktert és mélységet ad a helyiségnek, különösen, ha világos alapszínnel párosul.
Konyha: háttérbe simuló funkciók
Az L-alakú konyha a nappali tér szerves részét képezi. A felső szekrények egészen a mennyezetig érnek, maximálisan kihasználva a rendelkezésre álló teret. A tervező ügyes trükköt alkalmazott: a felső elemek és az alsó szekrényfrontok színe megegyezik a falak és a mennyezet pisztácia árnyalatával. Ennek köszönhetően a konyhabútor jelentős mérete ellenére szinte beleolvad a környezetébe, nem nehezedik rá a térre. A munkalap felett süllyesztett spotlámpák egészítik ki a célzott fényt.
Nappali: semleges alapok, dinamikus részletek
A nappali-étkező zónában a padlóburkolat parketta hatású, halszálka mintában rakott vinylre vált, amely meleg, otthonos alapot teremt. Az alapszín itt a semleges bézs, melyet a falakon finom textúrájú dekorvakolat formájában alkalmaztak. Ezt a nyugalmat fekete fém profilok és minimalista lámpatestek (sínes rendszer és kanapé feletti fali lámpák) teszik dinamikussá és modernné.
PROFI TIPP: A nappaliban (és a hálóban) látható vékony, fekete fémcsíkok nem csupán dekoratív elemek. Vertikális elhelyezésük optikailag megemeli a belmagasságot, miközben elegáns, grafikus ritmust ad a semleges bézs falfelületnek.
A kényelmes kanapé ággyá alakítható, így biztosítva extra fekhelyet. A konyhához hasonlóan itt is megjelennek a fa felületek, például a letisztult TV-szekrény formájában. Az étkezőasztal fölött egy különleges, LED-szalagos lámpa lóg.
A nappaliból nyílik a loggia, ahol egy kis kanapéval és fotellel alakítottak ki védett pihenősarkot; a klímaberendezés kültéri egységét itt a fürdőszobai panelekkel megegyező, szellőzőnyílásokkal ellátott doboz rejti el.
Hálószoba: a nyugalom rétegei
A hálószobában a lakás teljes színpalettája (bézs, pisztácia, diófa) finom egyensúlyban tér vissza. Az ablaknál a fal és a mennyezet ismét pisztácia színt kapott, otthonos keretet adva a kilátásnak. Az ágy mögötti falon texturált, 3D hatású falpanelek teszik mozgalmassá a felületet, anélkül, hogy mintákkal terhelnék azt.
PROFI TIPP: Az ágy mögötti fal texturálása (itt bordázott panelekkel) nagyszerű módja annak, hogy egy hálószobát vizuálisan gazdagabbá tegyünk anélkül, hogy erős színekkel vagy mintákkal zsúfolnánk tele. A textúra mélységet és kifinomultságot ad a térnek.
A tárolást egy nagyméretű, tükrös ajtajú beépített szekrény oldja meg, a tükörfelület pedig segít tágítani a kompakt helyiséget. (hogy a nagy tükör jó ötlet-e egy hálószobában, arról ebben a cikkben olvashattok bővebben) Az ággyal szemben egy komód és egy fölé helyezett, lebegő konzol kapott helyet, amely alkalmanként íróasztalként is funkcionálhat. A világításról sínes rendszer, valamint az ágy melletti dizájner függesztett és fali lámpák gondoskodnak, rejtett hangulatvilágítással kiegészítve a függönyöknél.
Fürdőszoba: a terrazzo és a diófa eleganciája
A fürdőszobában visszatér az előszoba terrazzo mintás greslapja, melyet a padlón és a kád oldalfalán is következetesen alkalmaztak. Ezt semleges, világos falicsempével és a már ismert pisztácia színű falfestéssel kombinálták. A helyiség igazi éke azonban a sötét diófa burkolat és bútorzat. A WC-tartályt rejtő gépészeti falat és a felette lévő tárolókat is ebből az anyagból készítették, elegáns, egységes felületet teremtve.
PROFI TIPP: A WC mögött, a gépészetet rejtő fal teljes beépítése bútorlapokkal (ahogy itt a diófa panelekkel tették) rendkívül elegáns és praktikus megoldás. Eltünteti a gépészetet, és egyúttal értékes, rejtett tárolóhelyeket hoz létre, miközben a fa melegséget és luxus érzetet visz a vizes helyiségbe.
A mosdó alatti nagyméretű, szintén diófa fronttal ellátott szekrényben a mosógép is helyet kapott. A mosdó feletti tükrös szekrények további tárolóhelyet biztosítanak, a bútor alatti rejtett LED-világítás pedig lágy hangulatfényt ad a helyiségnek.
további cikkek kis lakás berendezése témában | lakberendezés: Darina Ermak | fotók: Kristina Pleer



































