A kislakás tulajdonosai nyitottak voltak egy színesebb dizájnra – a 39,5 négyzetméteres, új lakóparkban található ingatlanban karakteres és emlékezetes enteriőrt szerettek volna, amely ugyanakkor kifejezetten funkcionális és kényelmes.

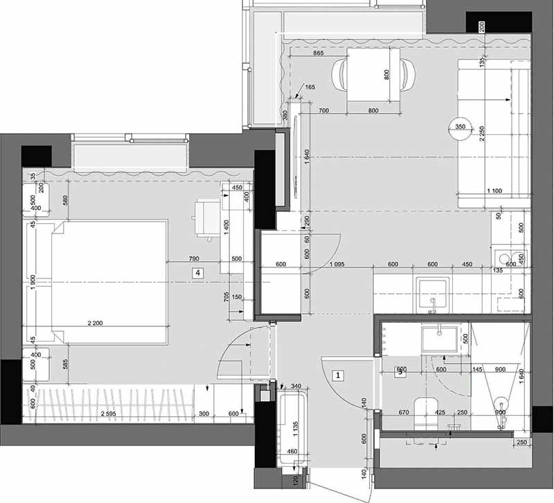
Az új építésű lakás egy modern lakóparkban található, a legnagyobb előnye a panorámaablakok és a vízpartra nyíló kilátás, míg a legnagyobb kihívást a konyha-nappali viszonylag kis alapterülete jelentette. A tervezőnek itt komoly munkát kellett fektetnie abba, hogy minden funkció kényelmesen elférjen.
A burkolatok kiválasztásánál a minőség és a strapabírás játszott főszerepet. A padlóra parketta került, a falakat mosható, kopásálló festékkel és dekorvakolattal látták el. A fürdőszoba padlóját spanyol, mintás cementlap-hatású burkolat díszíti, amelyet szürke kő- és márványhatású lapokkal kombináltak. Különösen látványos megoldás a konyhai hátfal, ahol mélykék, egyenetlen felületű, fényes kisméretű csempét alkalmaztak, amely izgalmas textúrát ad a térnek.
A teret úgy alakították ki, hogy már a bejáratnál, az előszobából feltáruljon a kilátás a zöldövezetre. A belső elrendezést is ennek rendelték alá: a kulcsfontosságú zónák – mint a nappali és az étkező – az ablak felé tájolva kaptak helyet.

A színpaletta alapját a lágy zsályazöld adja, amely harmonikus kapcsolatot teremt az ablakon túli környezettel. A dinamikus összhatás érdekében ezt korall árnyalatokkal és mélykék színekkel egészítették ki. A hálószobában a drámaibb hatás érdekében az ágy mögötti falat gazdag téglaszínű dekorvakolattal emelték ki, amelyet fekete grafikus elemekkel tettek még kifejezőbbé.
további cikkek kis lakás berendezése témában | lakberendezés: Anna Sinitsa | fotók: Nick Rudenko, Elena Karasaeva



















