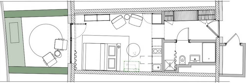
A saját terasszal rendelkező kis 30 m2-es lakásban nem állandó jelleggel, inkább csak munkájához kapcsolódóan rövidebb időszakokra lakik a tulajdonos, így a kompakt teret a minőségi pihenés igényével alakíttatta ki. A tervezők feladata egy burkolatokkal már ellátott, de bútorozatlan tér – előszoba, fürdő és egy lakószoba – komplett stúdiólakássá formálása volt.
A csapatnak adott volt a befejezett alap, amelyet bútorokkal és dekorációval kellett megtölteniük, ám a helyiség elnyújtott geometriája kihívás elé állította a koncepció alkotóit. Az enteriőr központi eleme egy egyedi tervezésű, dobogóra emelt ágy lett.

A bejáratnál a tervezők gardróbszekrényeket és fiókos tárolókat alakítottak ki. Itt jelenik meg az enteriőr fő dekoratív motívuma: egy kör alakú, élénkvörös falfülke. A bátor színhasználatnak (és a kiegészítőknek) köszönhetően a lakást oldott, kozmopolita és finoman retro hangulat hatja át.
Kompakt funkciók és tárolás
A konyhablokk közvetlenül az előszobai átjáró mellett kapott helyet. A kompakt elrendezés ellenére a bútorzatba sikerült integrálni egy teljes méretű hűtőszekrényt, mosogatógépet, valamint egy kombinált pároló-sütőt is. A változó mélységű szekrények elnyelik az összes háztartási eszközt, így a tér nem hat zsúfoltnak.
A térszervezés központi eleme: a dobogó
A konstrukció a megrendelő egyik speciális kérésére született válasz: fontos szempont volt, hogy a megvetett ágyra ne lehessen ráülni közvetlenül. Ezt a funkciót a matracot körbeölelő, tárolórendszerként is működő perem látja el. Ez a felület multifunkcionális: a konyha felőli oldalon nézve ülőkeként, étkezőként szolgál. A funkcionális kialakítás és a mennyezeti lámpa együtt vizuálisan elválasztja a konyhát a hálórésztől.
Világítás bontás nélkül
Annak érdekében, hogy elkerüljék a komolyabb építészeti beavatkozásokat és a vésést, a meglévő mennyezeti kiállásokat kreatívan hasznosították: a süllyesztett szpotok helyére különböző átmérőjű, gömbölyded függesztékek kerültek. A sárga fotel felett egy állítható karú dizájner lámpa, a komódnál pedig egy modern falikar gondoskodik a helyi megvilágításról, alkalmazkodva a bútorok pozíciójához.
további cikkek kis lakás berendezése témában | lakberendezés: ANCconcept, Peter Lukyanov, Kirill Ustinov | fotók: ANCconcept




















