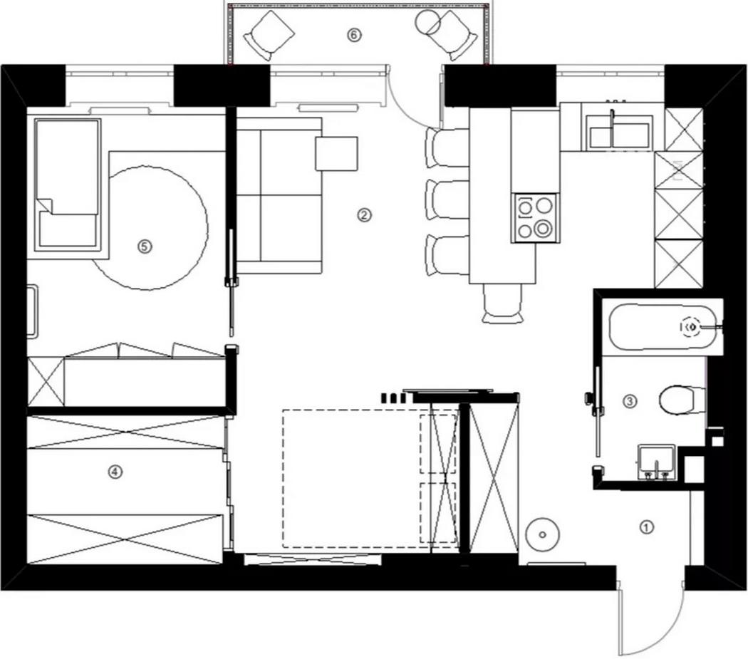
A tervezők 46 négyzetméteren zseniálisan átgondolt elrendezést valósítottak meg rengeteg funkcióval egy háromfős családnak és labrador kutyájuknak. Konyha-nappalit, hálót, előszobát, fürdőszobát, gyerekszobát és gardróbot hoztak létre modern stílusú berendezéssel.

A család teljesen szokványos kis lakást vásárolt apró konyhával, átjárható nappalival és egy hálószobával, amelyhez egy mini-gardrób tartozott, a tárolóhelyek egyértelműen hiányoztak. Teherhordó falak nem voltak, ami megkönnyítette az átalakítást, azonban a ferde falak és mennyezet, valamint a teljes lakáson végighúzódó egyenetlen gerenda megnehezítette a munkát.
A családfő a munkája miatt gyakran tartózkodik külföldön, és szállodákban száll meg. Azt kérte, hogy a lakás alapvetően egy apartmanszállóra emlékeztessen: egy multifunkcionális térre konyhával. A legfontosabb elvárás az volt, hogy a kislánynak végre saját szobája legyen – még akkor is, ha ezért a különálló szülői hálóról le kell mondaniuk.
A házban gázfűtés van, de a megrendelő kategorikusan ellenezte a gázt, ezért a lakásban a gázvezetéket lezárták – ez lehetővé tette a konyha és a nappali egyesítését, így kisebb helyiségek helyett egy világos, összefüggő tér jöhetett létre.
A Ligne Roset kanapé és a BoConcept székek kivételével minden bútort egyedi gyártásban készíttettek. Külön figyelmet érdemel az étkezőasztal, amely egybe van építve a konyhabútorral, valamint a hálófülkében található átalakítható ágy / szekrényágy. A tervezők szerint a legnagyobb kihívást a szokatlan kialakítású svédfal megvalósítása jelentette, de végül mindenki elégedett lett az eredménnyel.
Amikor a koncepció kidolgozása befejeződött, kiderült, hogy mindenki – beleértve a megrendelőt is – megfeledkezett egy a kutya számára kialakított helyről. Külön látványterveket kellett készítenünk, hogy megtaláljuk a legmegfelelőbb zugot. A kutya természetesen végül a kanapét választotta.
– emlékeznek vissza a tervezők.
Mivel a lakás kicsi, semmiképp sem akarták színekkel széttagolni a teret. Minden falat ugyanazzal a festékkel, a Little Greene 105 fehér árnyalatával festettek le. A padló egységes hatást kelt, mivel a parkettát pontosan ugyanolyan árnyalatúra színezték, mint a Porcelanosa kerámia burkolatot, amely az előszobában és a fürdőszobában található. A fa furnérral borított panelek és ajtók természetes melegséget visznek a térbe. A fekete kiegészítők mint a kilincsek a fehér ablakokon, valamint a fekete kapcsolók és lámpák kontrasztot teremtettek.
A megrendelő kért az enteriőrbe egy piros széket, hogy megtörje a monokróm színvilágot, később ehhez hozzáadtak még egy piros Omoikiri csaptelepet a konyhában. A gyerekszoba a legszínesebb a kármin árnyalattal (kárminvörös / bíborvörös), mellyel élénkebbé tették a kis helyiséget.
Érdemes megemlíteni a lakás technikai felszereltségét is: a konyhát Bosch és Samsung készülékekkel, valamint egy Elica páraelszívóval szerelték fel. A hálószobában projektoros házimozi-rendszer biztosítja a kényelmes filmnézést az ágyról, a fürdőszobába pedig Noken szanitereket választottak.
további cikkek kis lakás berendezése témában | lakberendezés: FlatforFox | fotók: Jevgenyij Gnesin



































