Egy szerkezetkészen átvett új építésű lakást rendezett be a belsőépítész. A szűkös költségkeret miatt egyszerűen megvalósítható megoldásokban gondolkodtak, mint a nappaliban függönnyel leválasztott gardrób, vagy a fehér, négyzet alakú csempével burkolt fürdőszoba.
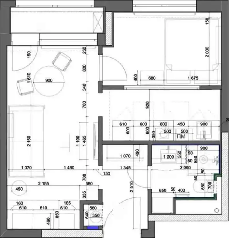
A térszervezés során egy rendhagyó elosztás mellett döntöttek: a konyha nem a nappalival egybenyitva kapott helyet – ezt a területet a már említett, függönnyel rejtett gardrób foglalja el –, hanem a hálószoba mögött alakítottak ki a funkció számára egy ablaktalan, keskeny helyiséget. Hogy a főzőzóna mégse maradjon természetes fény nélkül, a hálószobával közös fal felső részébe egy belső ablakot építettek be.
A dekoráció kimondottan visszafogott. A tervező a csendes, nyugodt hangulat megteremtésére fókuszált, és ennek szellemében a semleges szürke árnyalataira alapozta a színpalettát. Az esetleges egyhangúságot néhány jól elhelyezett, élénkebb színfolttal törte meg, míg az otthonos, természetes hatást a meleg tónusú, fahatású laminált padló és a puha textíliák használata erősíti.
további cikkek kis lakás berendezése témában | lakberendezés: Anna Makarova | fotók: Dasha Myagkaya






















