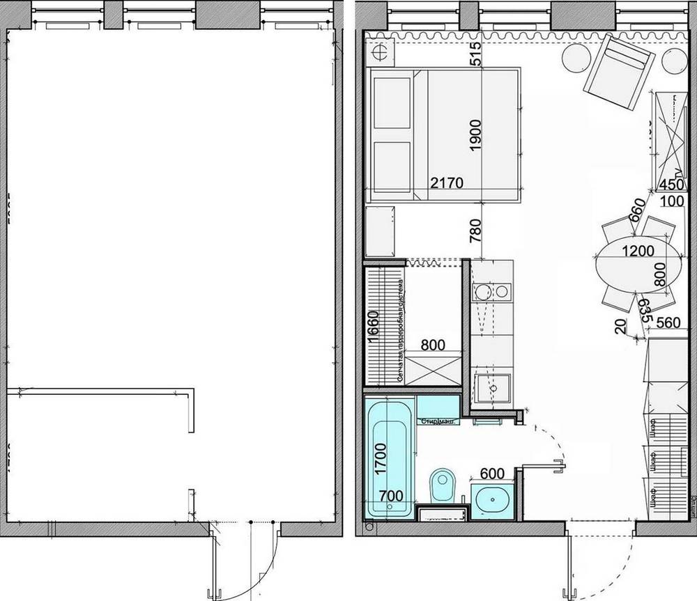
A 30 m²-es lakásban a tervező a helykihasználás és a költségvetés optimalizálása érdekében, egyetlen közös térbe szervezte a konyhát, a hálót és az előszobát – még egy kis gardróbnak is sikerült helyet találni.

A megbízó azt a feladatot adta a lakberendezőnek, hogy egyetlen személy számára tervezzen életteret, akinek ez az otthon elsősorban az alvás és a hétvégi pihenés színtere. A konyha, az étkező, a hálórész és az előszoba egyetlen közös térbe került, válaszfalak nélkül. Az alvó zóna a bejárattól nem látható, ami biztosít egy minimális privát szférát.
A falak festést kaptak. Mivel az enteriőrt a modern klasszikus stílus jegyében kívánták megalkotni, a falfelületeket díszlécekkel dekorálták. A mennyezeti szegélyeket a fal színére festették, ami vizuálisan növeli a belmagasságot. A padlóra fa hatású laminált burkolatot választottak. Az előszoba és a konyha zónáját sem különítették el eltérő burkolattal, hogy a kis teret ne szabdalják fel vizuálisan.
Az enteriőr stílusát – modern klasszikus – azért választották, mert ez a megbízó kedvenc lakberendezési irányzata. A stílus jellegzetes vonásai a falakon alkalmazott díszlécek klasszikus kazettás elrendezésében, a magas szegélylécekben és a mennyezeti szegélyekben érhetők tetten. A beltéri ajtót tokborítás nélküli, falsíkba záródó, festhető típusra cserélték, hogy jelenlétével ne terhelje vizuálisan a szűkös teret.
A tárolórendszerek megtervezése egy kis alapterületű lakásban mindig komoly kihívás. Igyekeztek a lehető legtöbb tárolóhelyet kialakítani a tér túlzsúfolása nélkül. Az előszobában egy tágas szekrény kapott helyet. Ez nem egyedi gyártású bútor, a szekrénytesteket konyhai elemekből állították össze, de belül ruhaakasztó rudakat helyeztek el. Az egyik modul a beépített hűtőszekrényt rejti.
A tervező úgy döntött, hogy a felső szekrények frontja fehér legyen, elkerülendő az egyszínű szekrények által keltett “vagon-hatást”. A konyha kisméretű, egyenes vonalú elrendezésű. Az alsó elemekben elfért egy mosogatógép, a sütőt pedig kombi, mikrohullámú funkcióval is rendelkező típusból választották.
Az ablakok közötti falszakaszon elhelyezett nagyméretű álló tükör valójában egy ajtópanel. A gyártó eltévesztette a méreteket a megrendelés teljesítésekor, a tervező azonban leleményes volt, és új funkciót talált a darabnak.
Ez is érdekelhet: Egyedül élő édesanyjának újíttatta fel a kis 30 m2-es lakást a fiatal nő
Az étkezőasztal a székekkel, valamint a TV-szekrény már a megbízó tulajdonában volt – hogy az utóbbit a stílushoz igazítsa, a tervező úgy döntött, hogy sárgaréz lábakra állítja. Ezek szépen rímelnek az előszobai szekrény és a konyha fogantyúira, vasalataira.
A hálórészben lévő gardróbot fali sínes, kosaras tárolórendszerrel szerelték fel. Az ágy ágyneműtartós (emelőszerkezetes), így a belsejében szezonális holmik, ágyneműk és egyéb tárgyak is tárolhatók.
A fürdőszobában semleges bézs csempét alkalmaztak. A kád feletti falat és a kád előlapját azonban márvány hatású greslappal burkolták, ezzel is erősítve a modern klasszikus esztétikát. Erre a stílusra jellemző a természetes anyaghatású felületek, mint a fa, a márvány vagy más kő textúrájának használata.
Többféle világítási megoldást dolgoztak ki. A mennyezeten süllyesztett spotlámpák adják az általános fényt. A konyha-étkező-előszoba térrészben rejtett LED-világítást is kiépítettek, az étkezőasztal fölé pedig függesztékek kerültek. A rejtett mennyezeti világítás a fürdőszobában is megjelenik mint kiegészítő hangulatfény.
további cikkek kis lakás berendezése témában | lakberendezés: Alexandra Gaevskaya | fotók: Ekaterina Geits




























