Tágas, világos és szellős, ugyanakkor minden igényt kielégítően funkcionális belső tér kialakítása volt a fő cél abban a 36 m²-es ingatlanban, amelyet egy fiatal, még gyermektelen pár számára újítottak fel. Az eredetileg egyszobás elrendezést a tervező alapjaiban gondolta újra: a legfőbb kihívást egy különálló háló és elegendő tárolókapacitás kialakítása jelentette, miközben a költségvetést szűkös keretek között kellett tartani.

Térszervezés
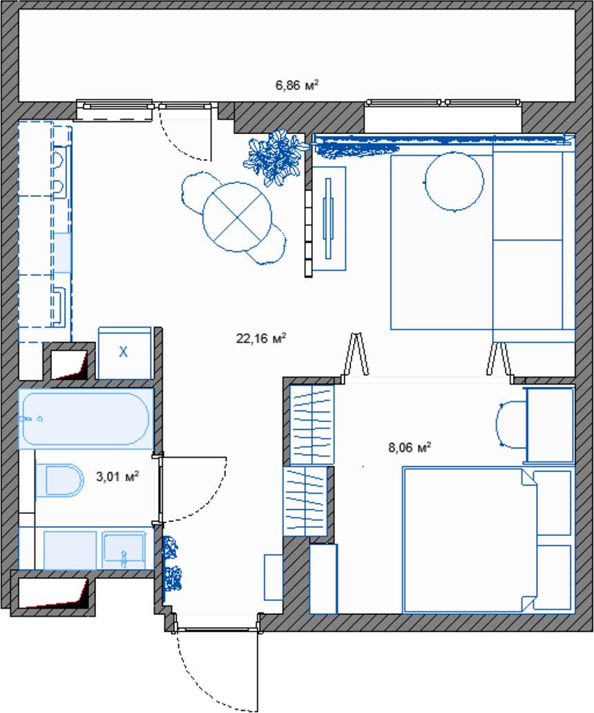
A funkcionális zónák a helyükön maradtak, azonban a tervező a nagyméretű szobát két részre – egy nappalira és egy hálószobára – osztotta fel.
A tárolás kérdését előre tervezett falfülkékkel oldották meg, amelyekbe szabványos méretű gardróbszekrények illeszthetők. Az egyik ilyen beugró az előszoba és a háló felől is hozzáférhető szekrényt rejt, felette pedig nyitott tárolórészt alakítottak ki a nagyobb holmik vagy szezonális dobozok számára.
A felületek kialakításánál az egyszerűség dominál: minden helyiségbe minta és textúra nélküli, festhető tapéta került. A hálószobában a falakat és a beépített szekrényt azonos színre festették, hogy a tárolóbútor minél inkább belesimuljon a térbe. A padlót laminált parketta burkolja, míg az előszobában és a konyhában 30×30 cm-es greslapokat alkalmaztak.
A konyhabútor egyedi megrendelésre készült, maximalizálva a rendelkezésre álló munkafelületet. A költséghatékonyság jegyében a hűtőszekrény szabadon álló típusú maradt, de egy méretre szabott falfülkébe került, így a nappali felől nézve rejtve marad, megőrizve a tér vizuális tisztaságát. A konyhát kétzónás főzőlappal, sütővel és mosogatógéppel is felszerelték.
A nappali és a háló közé épített üvegtégla fal nemcsak a természetes fény bejutását biztosítja, de meghatározza a lakás esztétikai karakterét is. Az üvegtéglák kör és négyzet alakzatai egyfajta geometrikus ritmust adnak, amely visszaköszön a fürdőszobai és az előszobai burkolatokon, sőt a dekorációban – például a nagy kockás terítőben – is. A fekete-rácsos motívumvilágot egy online piactéren talált dekoratív fém polcelem teszi teljessé, a frissességről pedig nagyméretű szobanövények gondoskodnak.
A berendezési tárgyak jelentős részét használtcikk-kereskedő portálokon keresztül szerezték be. Az eredetileg tervezett, pajtaajtó-mechanikával szerelt zsalugáteres tolóajtókat a fal teherbírása miatt végül egy rugalmasabban kezelhető, két részre osztható paravánnal váltották ki.
A hálószobában a hagyományos ágykeret helyett strapabíróbb boxspring alapot használtak. Az ágyvéget kreatív módon, konyhai síntartó rúd és hosszabb ülőpárnák kombinációjából alakították ki. Az éjjeliszekrényeket egy hosszanti fali polc és egy lábak nélküli, konzolos asztalka helyettesíti, amely egyszerre használható éjjeliként, sminkasztalként vagy akár laptopasztalként is.
A vizesblokkban háromféle burkolat kombinációja érvényesül: a padlón fa hatású greslap, a falakon pedig karakteres mintájú kerámialap látható, amelyet fekete díszcsíkkal egészítettek ki. A mosdókagyló és a mosógép közös pult alá került, ahol egy további nyitott fülkét hagytak, amely polcokkal vagy ajtóval tetszőlegesen tovább alakítható.
további cikkek kis lakás berendezése témában | lakberendezés: Alexandra Bakanova | fotók: Alexia Gorbunova



























