Bár a 32 négyzetméter nem tűnik soknak, egy átgondolt koncepcióval tökéletes, teljes értékű első saját otthon válhat belőle. A tervezés fókuszában a nyugalom, a kiegyensúlyozottság és az otthonosság állt, amely egy modern, semleges tónusú, mégis rengeteg tárolóhellyel rendelkező enteriőrt eredményezett. Nézzük meg, hogyan dolgozott a lakberendező!
Optikai trükkök
A tervezés során kiemelt figyelmet kaptak a térérzetet növelő apró, de annál hatásosabb részletek. Az átlagnál kisebb belmagasság ellensúlyozására a fürdőszobába egy kifejezetten magas ajtó került, míg a hálószoba ajtaja egy felső panellel lett kiegészítve. Ezek a függőleges vonalak vizuálisan megnyújtják és magasabbnak mutatják a teret.
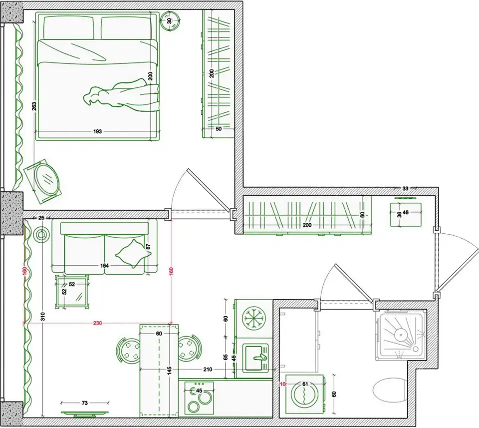
Alaprajz
A kiindulási alapot egy készen átvett, új építésű lakás adta. A költséghatékonyság és a büdzsé kímélése érdekében az eredeti burkolatokat és alapokat maximálisan megtartották, így alaprajzi módosításra sem került sor. A konyha a nappalival egy térben kapott helyet, a hálószoba szeparáltan helyezkedik el, a fürdőszoba és a WC pedig egy közös helyiségben található.
Előszoba: Beépített hatás okosan
Az előszobában rögtön egy praktikus tárolórendszer fogadja az érkezőt. Az asztalosmunka során egy standard gardróbmodellt vettek alapul, ám annak érdekében, hogy a mennyezetig érve egy drágább, egyedi beépített bútor hatását keltse, a felső űrt egyedi elemekkel töltötték ki. A szekrény eredeti fogantyúit fehérre festették, így azok szinte teljesen beleolvadnak a frontokba. A bejáratnál egy organikus formájú tükör és egy kényelmes, buklé huzatos puff teszi teljessé a kompozíciót.
Az enteriőr vezérmotívumaként végigvonulnak a meleg fa elemek: megjelennek az ágy és a kanapé lábainál, az éjjeliszekrénynél, az előszobai magasító elemeknél, valamint a fürdőszobai tárolóknál. Ez a fajta anyaghasználat a „design-healing”, azaz a gyógyító dizájn irányzatába illeszkedik, amely a természetesség révén az otthonosság, a nyugalom és az ellazulás érzetét erősíti.

Konyha és nappali: Fáradt kék és aszimmetria
Az enteriőr kialakítása a konyhabútor megtervezésével indult. A fő koncepció egy semleges alap – szürke és elefántcsont (ivory) színek – felállítása volt, amelyhez akcentusként egy finom kékesszürke árnyalatot társítottak.
Az L-alakú konyhában egyedi megoldást alkalmaztak a felső szekrényeknél: nem akarták teljesen elhagyni őket, de a zsúfoltság érzését is szerették volna elkerülni, így a bútorozás aszimmetrikus lett. Az egyik falon a mennyezetig érnek a szekrények (kiegészítve egy praktikus oszlopelemmel), míg a másik falra kékesszürke színű, fogantyú nélküli frontokkal szerelt felső szekrények kerültek. Ezek magassága csupán a fele a normál felső szekrényekének, ami rendkívül diszkrét, szellős megjelenést kölcsönöz a térnek.

A pult és a frontok laminált bútorlapból készültek, a hátfalat pedig kontrasztos fugával ellátott mozaikcsempe borítja. A kompakt konyha minden szükséges gépet magában foglal: beépített hűtőt, mikrohullámú sütőt és egy háromzónás indukciós főzőlapot. A konyha és a nappali zónáját egy kétszemélyes bárpult választja el egymástól, amely egyben az étkező szerepét is betölti.
A nappali részen a tervezőnek egy vendégágyként is funkcionáló pihenőzónát kellett kialakítania, erre a célra egy kompakt, ággyá alakítható kanapé bizonyult a legjobb választásnak. A mellette lévő állólámpa ideális az esti olvasáshoz és meghitt atmoszférát teremt. A falakat bársonypapírra nyomtatott, egyedi poszterek díszítik; a csillogás elkerülése érdekében ezeket üveg nélküli keretekbe helyezték. A nappali hangulatát egy koptatott, vintage hatású szőnyeg koronázza meg.

Hálószoba: Kontrasztok és nyugalom
A hálószoba terét tudatosan nem zsúfolták túl, csak a legszükségesebb bútorok kaptak itt helyet: egy kényelmes kétszemélyes ágy, egy fa lerakóasztal és egy egész alakos tükör. A tárolást itt egy költséghatékonyabb, de látványos megoldással oldották meg. A drágább beépített szekrény helyett egy magas, önálló modellt választottak. A bútoron lévő hosszú, fekete fogantyúk függőleges irányba vezetik a tekintetet, tovább magasítva a teret, miközben elegáns, határozott kontrasztot alkotnak a letisztult fehér frontokkal.

Fürdőszoba
A fürdőszobában az építtető által készített eredeti burkolatokat megőrizték. A funkcionalitást egy egyedi szekrénnyel bővítették, amely esztétikusan elrejti a beépített mosó-szárítógépet, a teret pedig egy stílusos poszterrel tették személyesebbé.

további cikkek kis lakás berendezése témában | lakberendezés: Olga Patraman | fotók: Ruslan Stukalov
























