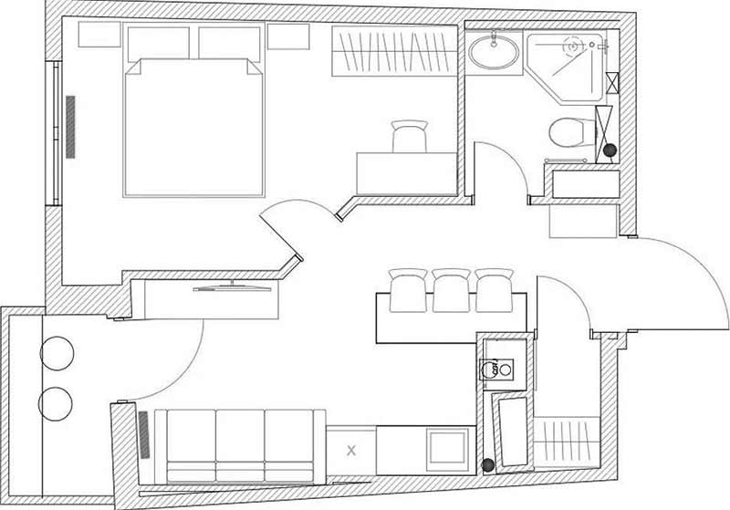
A mindössze 34 négyzetméteres kislakás átalakítása során a tervező és a megrendelő házaspár célja az volt, hogy a szűkös alapterületből a lehető legtöbbet hozzák ki. Az alapvető elvárások között szerepelt egy teljesen szeparált hálószoba, egy kinyitható kanapéval rendelkező nappali zóna, valamint bőséges tárolóhely kialakítása. A projekt egyik esztétikai kihívását a házaspár eltérő ízlésvilága jelentette: míg a feleség a nyugodt, visszafogott tónusokat kedvelte, a férj az élénkebb színekhez ragaszkodott. A végeredmény egy modern stílusú otthon lett, amelyet neoklasszikus elemekkel – például díszes lábazati szegélyekkel és mennyezeti stukkókkal – fűszereztek meg, miközben a bútorok formavilága megmaradt letisztultnak és funkcionálisnak. A színpaletta a modern stílusnak megfelelően kontrasztos, mégis harmonikus, ahol a nyugodt háttérszíneket karakteres árnyalatok egészítik ki.

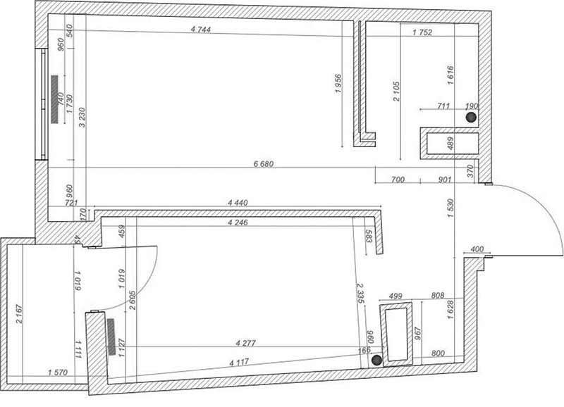
Az ingatlan alaprajza eredetileg meglehetősen bonyolult volt, a falak többsége nem zárt be derékszöget. A lakás eredeti felosztása különálló hálószobából, konyhából és fürdőszobából állt. A felújítás során a belső válaszfalak áthelyezésével a térszerkezet jelentősen megváltozott: a hálószoba és a közlekedő, valamint a konyha és a közlekedő közötti falak módosításával a hálót ugyan valamelyest csökkentették, de cserébe a konyhát összenyitották az előtérrel. Ez a megoldás szellősebb térérzetet eredményezett, és lehetővé tette, hogy a konyhában, közvetlenül az ablaknál egy kis nappali funkciót is kialakítsanak.
Míg az általános falfelületek semleges szürke árnyalatúak, a bejárati zónában és a gardróbban a falak és a mennyezet merész terrakotta színt kaptak – ez az élénk árnyalat a férj kérése volt, amely reflektál az épület homlokzatának egyik színére.
Különleges építészeti megoldás született a gépészet elrejtésére és a tárolás maximalizálására: az előszoba egyik beugrójából leválasztottak egy alig több mint egy négyzetméteres gardróbot. A határoló falat úgy építették meg, hogy a gardrób felőli oldalon egy mélyedésben kapott helyet a mosógép, míg a fal konyhai oldalán lévő kiugrásra a főzőlappal ellátott pultrész került. A padlót az egész lakásban egységesen parketta hatású laminált lappal burkolták, a falakon pedig a festett felületek dominálnak.

A konyhabútor vonalvezetését a gépészeti strang kiugrása nehezítette, de ezt sikerült a dizájn részévé tenni. A fő konyhai blokkban kapott helyet a mosogató, a beépített sütő és a hűtőszekrény, felettük pedig zárt felső szekrények futnak. A térbe forduló pultszakasz egyfajta bárpultként funkcionál, amely alatt tágas fiókok biztosítják a tárolást. A főzőlap a gépészeti dobozolás melletti sarokban került beépítésre, a falon süllyesztett polcokkal kiegészítve. A világítás zónákra osztott: a pult felett modern függesztékek, a munkapultnál célzott szpotok, a kanapé felett pedig hangulatos falikar található. Az ablak előtt kialakított nappali sarokban a kényelmes kanapé biztosít helyet a pihenésnek.

A hálószobában a tárolást egy háromajtós gardróbszekrény oldja meg, de elfért egy fiókos íróasztal is. A helytakarékosság jegyében a hagyományos éjjeliszekrényeket kis méretű, falra szerelt lebegő konzolok helyettesítik. A dekorációban itt is visszaköszön a terrakotta árnyalat az ágy mögötti tapétán, melegséget víve a szürke alaptónusok közé. A világításról egy karakteres, vintage stílusú, „pitypang” formájú csillár, valamint az ágy melletti falikarok gondoskodnak.
A vizesblokkban izgalmas vizuális játék érvényesül a burkolatokkal. A „vizes” zónák – a zuhanyzó és a mosdó feletti rész – terrakotta színű burkolatot kaptak, míg a WC beépített tartályát rejtő falat és a zuhanyfülke falfülkéjét sötétszürke mozaikkal emelték ki. A többi felületet festették. Különleges térnövelő trükk a falak felső sávjában, közvetlenül a mennyezet alatt elhelyezett tükörcsík, amely a „végtelen plafon” illúzióját kelti. A padlót olyan járólap borítja, amely a helyiségben használt összes színt – a terrakottát, a feketét és a szürkét – egyesíti magában. A világítást itt is beépített mennyezeti lámpák adják.
további cikkek kis lakás berendezése témában | lakberendezés: Natalia Zakharova | fotók: Maxim Maximov
































