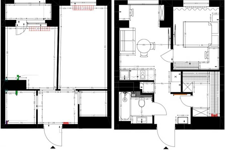
A home office-ban dolgozó ügyfele számára két dolgozósarkot is biztosított a lakberendező a kis kétszobás lakásban. „A szín a belsőépítészet egyik legfontosabb eszköze, és ebben az eklektikus otthonban éppen a szín az, ami irányítja a figyelmet és játszik a szemlélővel” – mesél projektjéről a dizájner.

„A tulajdonos távmunkában dolgozik, ezért két munkaállomást is kialakítottak – a hálószobában a gardróbbal egybeépítve, a nappaliban pedig az ablak mellett kapott helyet az íróasztal. A gardrób, az előszoba és a fürdőszoba padlóját kézműves, geometrikus mintázatú csempe borítja – ez a burkolat egyben összekötő kapocsként is szolgál a különböző zónák között. Az előszobában elhelyezett festmény visszatükröződik a vele szemben lévő nagy tükörben, és a gardróbba is jut fény az 1960-as évek divatját idéző, stílusos üvegtéglákon keresztül.”
Ez is érdekelhet: .
„A folyosón és a nappaliban lévő bútorokat a falak színére festették, ami vizuálisan tágítja a teret. Ezek rejtik az összes háztartási gépet – a hűtőszekrényt, a mikrohullámú sütőt, a sütőt és a mosógépet. A konyhasarok letisztult, ugyanakkor elegendő helyet biztosít az edényeknek, beszereltünk egy kompakt főzőlapot és az egyik felső szekrénybe rejtett páraelszívót.”
Ez is érdekelhet: Otthonos, modern, funkcionális berendezés két dolgozósarokkal, bézs és fa tónusokkal
„Sok élénk szín található itt, a precízen megválasztott árnyalatok mégis egységes ritmust teremtenek, és egyetlen részlet sem üt el a környezetétől. Ellenkezőleg, minden négyzetméter finoman folyik át a másikba, és a sok, önmagában is karakteres elem egységes képet alkot.” – mondja a tervező.
Ez is érdekelhet: Hogyan lett 38m2 rendkívül elegáns és könnyed tér aranyszínű kiegészítőkkel, kellemes, világos árnyalatokkal
„A lakás színpalettáját a lágy nugát, a kakaó, a pisztácia, a bézs, a barack és az olíva árnyalatai alkotják, zöld, lime, skarlátvörös, terrakotta, sárga és mustárszínű kiemelésekkel. Egy másik fontos hangsúly az ismétlődések és a „garnitúra-hatás” elkerülése. Sokkal érdekesebbnek találtam, hogy teljesen különböző tárgyakat kapcsoljak össze a térben, és megtaláljam bennük a harmóniát. Így a lakásban például nincsenek egyforma székek: az egyik egy fekete gerincű fa csontvázra emlékeztet, a másik pedig egy bársony masnira.”
Ez is érdekelhet: Üres betonkockából hangulatos otthon, fiatal nő új lakása 38m2-en
további cikkek kis lakás berendezése témában | lakberendezés: Sara Mikhailova | fotók: Mikhail Bravy
























