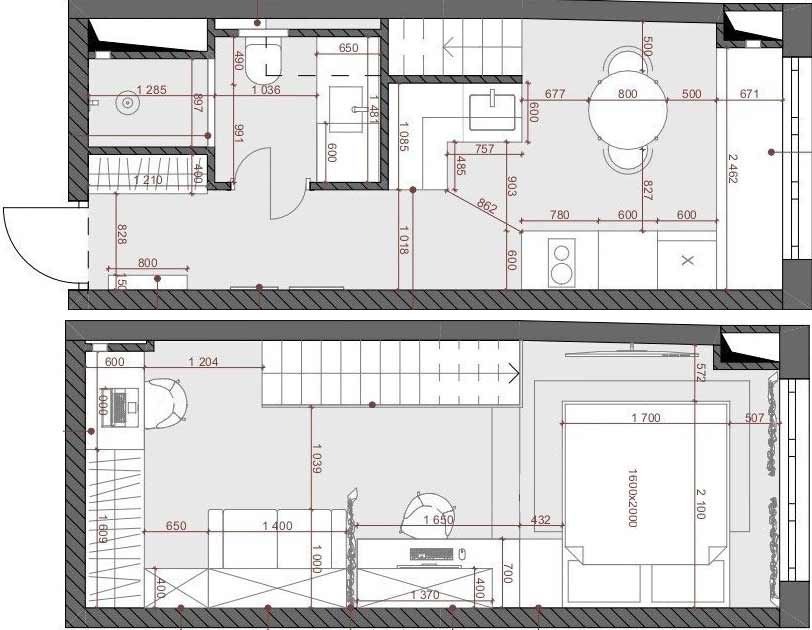
A lakberendező stúdió tervezői azt a feladatot kapták, hogy egy fiatal pár kisméretű, félemelettel kialakított lakásában szervezzék meg minél hatékonyabban a funkcionális zónákat, beleértve az előszobát, fürdőszobát, konyhát pihenősarokkal, teljes értékű hálószobát, két munkaállomást és a tárolóhelyeket. A fő kihívást a helyiség keskeny, mindössze 2,7 méteres szélessége és a lenyűgöző, 6 méteres belmagasság jelentette. A fiatalok egy színes, bohó stílusú enteriőrre vágytak, amely otthonos, meghitt hangulatot teremt.

A meglévő félemeletet teljes értékű második szintté alakították, megnövelve a födém alapterületét és meghosszabbítva a lépcső melletti válaszfalat, amely így a konyha falaként funkcionál. A földszint a közösségi élettér lett, itt kapott helyet a fürdőszoba és a konyha-nappali, míg a második emelet a privát szférává vált, ahol a dolgozósarkokat és a hálószobát helyezték el.
A tervezők különös figyelmet fordítottak azokra a megoldásokra, amelyek vizuálisan növelik a lakás alapterületét és mélységet adnak a térnek. Erre a célra tökéletesen megfelelt a falak és bútorok komplex, hűvös kék árnyalata. Ezt a domináns színt világos, semleges tónusok és a fa meleg árnyalatai egészítik ki.
A konyhabútor egyedi megrendelésre készült. Egyik részében két toronyszekrény foglalja magába a beépített háztartási gépeket: a hűtőszekrényt, a mikrohullámú funkcióval is ellátott sütőt és a főzőlapot. A másik részben kapott helyet a mosogató a mosogatógéppel és a tárolásra szolgáló felső szekrények. Az edényszárítást praktikusan az alsó szekrényekben oldották meg.
Ez is érdekelhet: Hogyan lett teljes értékű otthona a fiatal hölgynek egy 18 m²-es lakásban
A fő hangsúlyt a fürdőszobában és a konyhai hátfalon megjelenő mélykék csempe kapta. A mennyezetre festhető gipsz lámpatesteket választottak, amelyek letisztult, sallangmentes összhatást eredményeznek.
A fürdőszoba eredeti elrendezése egy kényelmes és tágas zuhanyzót tartalmazott, ezért a tervezők megtartották annak elhelyezkedését, és egy falfülkében funkcionális polcokkal egészítették ki. A pult alá egy teljes méretű mosógép is bekerült, ami milliméter-pontos tervezést és egyedi méretű ajtó alkalmazását tette szükségessé. A mosdó mellett nagyméretű tükör és egy nyitott polccal is ellátott tárolószekrény kapott helyet.
A lakás tulajdonosait ábrázoló, egyedi festmény egy művésznőtől lett megrendelve. A kép a tér zónázásának elemeként is szolgál. Ez az erőteljes hatású belsőépítészeti „vászon” valódi fókuszponttá vált: az asztalnál ülve lehetetlen levenni róla a tekintetet. Impozáns méretének köszönhetően a festmény paradox módon vizuálisan tágítja a kis teret és érdekes perspektívákat nyit. A folyosói tükrökben visszatükröződve például szinte arra invitálja a szemlélőt, hogy bepillantson a sarkon túlra.
A lépcsőfokokat greslappal burkolták, amelynek színe és mintázata a lehető leginkább hasonlít a fa hatású laminált padlóhoz, így az egységes felület illúzióját kelti. A falakat festették, a duropolimer szegélylécet pedig a falak színére festették, ami egy kiváló minimalista és egyben költséghatékony megoldás.
Ez is érdekelhet: Diáklakás: kreatív tervezéssel mindössze 18m2-en alkotott funkcionális kis életteret a lakberendező
Minden bútor egyedi megrendelésre készült. Ez a döntés ugyan növelte a költségvetést, de lehetővé tette, hogy a rendelkezésre álló terület minden centiméterét racionálisan kihasználják. A tárolórendszerek teljes belső kialakítását egyedileg, a tulajdonosok igényei szerint tervezték és valósították meg.
Az alvóhely a bejárattól a lehető legtávolabb, a lakás második emeletén található. Egy dobogón alakították ki, ami a különböző padlószintek révén hangsúlyozza a tér zónázását, valamint vizuálisan korrigálja az aránytalanul hosszú és keskeny szobát. Az ágy emelőszerkezettel van ellátva, amely kényelmes hozzáférést biztosít az alatta lévő hatalmas tárolóhelyhez. Ez ideális ágyneműk, textíliák és szezonális holmik tárolására.
további cikkek kis lakás berendezése témában | lakberendezés: YADOMA DESIGN STUDIO | fotók: Konsztantyin Pirjev



























