A tulajdonos hölgy frissen házasodott fia számára rendezte be ezt a 39 négyzetméteres lakást. A cél egy egyedi, de funkcionális tér létrehozása volt, amelyben a fiatal pár önálló életet kezdhet. A tervezési koncepció központi eleme a mediterrán életérzés megidézése, valamint a kis alapterület maximális kihasználása volt okosan elhelyezett bútorokkal.

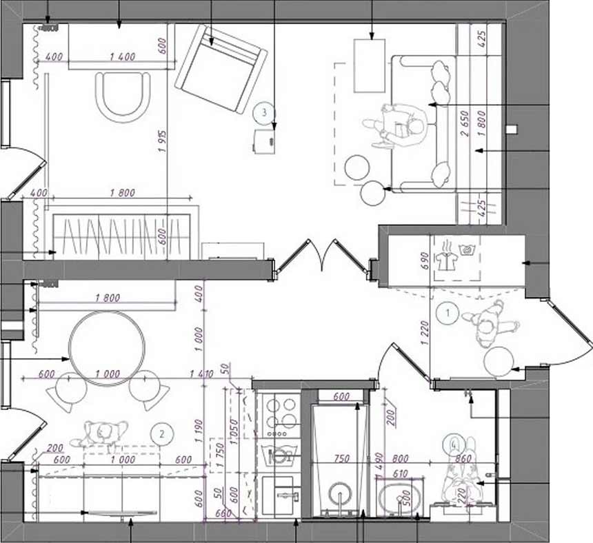
Eredeti állapot és alaprajz
Az eredeti alaprajz a klasszikus „nappali plusz hálófülke” elosztást követte: egy amerikai konyhás nappalit, egy apró hálószobát, fürdőt és előszobát foglalt magában. Mivel a fiatal párnak nem volt szüksége nagy alapterületű konyhára, az alaprajzot teljesen újragondolták. A lakás elhelyezkedése – mivel alatta nem lakóhelyiség található – lehetővé tette a vizesblokkok áthelyezését. Így a korábbi hálószoba helyére került az új konyha, míg a régi konyha-nappali térből egy tágasabb, kombinált nappali-hálószoba helyiséget alakítottak ki. A térkapcsolatokon is változtattak: az előszoba és a konyha közötti ajtónyílást megszüntették, a szoba bejáratát pedig a konyha felől nyitották meg egy elegáns, felülvilágítóval ellátott kétszárnyú ajtón keresztül, ami növeli a térérzetet és a fény áramlását.
Előszoba
Az előszoba egyik falát hangsúlyos terrakotta színűre festették, ami melegséget ad az rlőtérnek. A padlót dekoratív megoldással burkolták: apró hatszögletű lapok alkotnak „szőnyegmintát”, amelyet négyzetes csempék kereteznek. Mivel a lakásban nincs külön gardróbszoba, a tárolást itt egy beépített, karakteres kék frontokkal rendelkező szekrény oldja meg. Ez nemcsak a kabátoknak és cipőknek biztosít helyet, hanem a háztartási funkciókat is elrejti: az egyik szekcióban kapott helyet a mosó- és szárítógép oszlop. A világítást praktikus mennyezeti spotlámpák biztosítják.
Konyha
A konyha kialakítását a mediterrán hangulat vezérelte. A teraszajtó és az ablak melletti falat négyzet alakú, terrakotta színű csempékkel burkolták, vizuális kapcsolatot teremtve az előszoba falszínével. A konyhabútort két funkcionális zónára osztották: az egyik oldalon található a fő munkafelület a főzőlappal és a mosogatóval, míg a másik oldalon a magas elemek kaptak helyet, amelyek a beépített hűtőt, a sütőt, a mikrohullámú sütőt, valamint a fiókokat és a mennyezetig érő tárolókat rejtik. Az étkezősarokban egy tárolóhellyel ellátott pad és a kültéri bútorokat idéző fonott fotelek erősítik a déli tájak hangulatát. A világítás itt rétegezett: az általános fényt adó spotokon túl a konyhabútornál falikarok és rejtett fények, az étkezőasztal felett pedig egy kézzel készített makramé csillár gondoskodik a meghitt atmoszféráról.
Ez is érdekelhet: Különleges konyha, kék és bézs árnyalatok férfi otthonában: 39 négyzetméternyi harmónia
Nappali és háló zóna
A lakás legnagyobb helyisége kettős funkciót lát el. A falakat tartós, lakkozott dekorvakolat fedi, sőt, ugyanebből az anyagból egy plasztikus falpanel is készült dekorációs elemként. A padlót halszálkás lerakású szalagparketta borítja, ami klasszikus eleganciát kölcsönöz a térnek. Mivel a helytakarékosság kulcsfontosságú volt, az alvásfunkciót egy transzformálható bútorral oldották meg: összecsukva egy kényelmes kanapé oldalsó polcokkal, kinyitva pedig teljes értékű franciaágy. A ruhák tárolására szolgáló nagy gardróbszekrény különleges kialakítást kapott: az ajtók mögötti részt függönyözéssel egészítették ki, így a bútor inkább hat egy könnyed tálalónak, mintsem robusztus ruhásszekrénynek, ezzel is finomítva a tér összképét. A világítást lineáris süllyesztett lámpák adják, melyet a fotel melletti függeszték, a rejtett mennyezeti és függönyvilágítás, valamint a dolgozósaroknál elhelyezett, mozgatható állólámpa egészít ki.
Fürdőszoba
A fürdőszobában a burkolatok kombinációja dominál: a falakon fehér négyzetes lapok váltakoznak a zuhanyzóban ugyanannak a kollekciónak a kék darabjaival, míg a padlón fekete-fehér hatszögletű mozaik fut mintába rendezve. A víz által nem ért falfelületeket itt is a lakáson végigvonuló terrakotta árnyalatra festették. A tárolást a mosdó alatti szekrény, a WC tartálya fölé épített zárt tároló és a zuhanyzó falfülkéjében kialakított polcok biztosítják. A világításról süllyesztett spotok és a tükör mellett elhelyezett finom vonalú, lineáris függeszték gondoskodik.
további cikkek kis lakás berendezése témában | lakberendezés: Ksenia Muravyova | fotók: Tatyana Ulyanova
































