A tervező számára a megbízás különleges, személyes jelleggel bírt, hiszen a leendő lakó közeli hozzátartozója volt. Az édesanyja kívánságlistájának élén egy világos, barátságos enteriőr állt, amelyben a praktikus fa konyha és a karakteres, texturált parketta játssza a főszerepet. Fő célkitűzés volt, hogy a kis alapterületű lakás minden zónája nyugodt hangulatával a pihenést szolgálja.

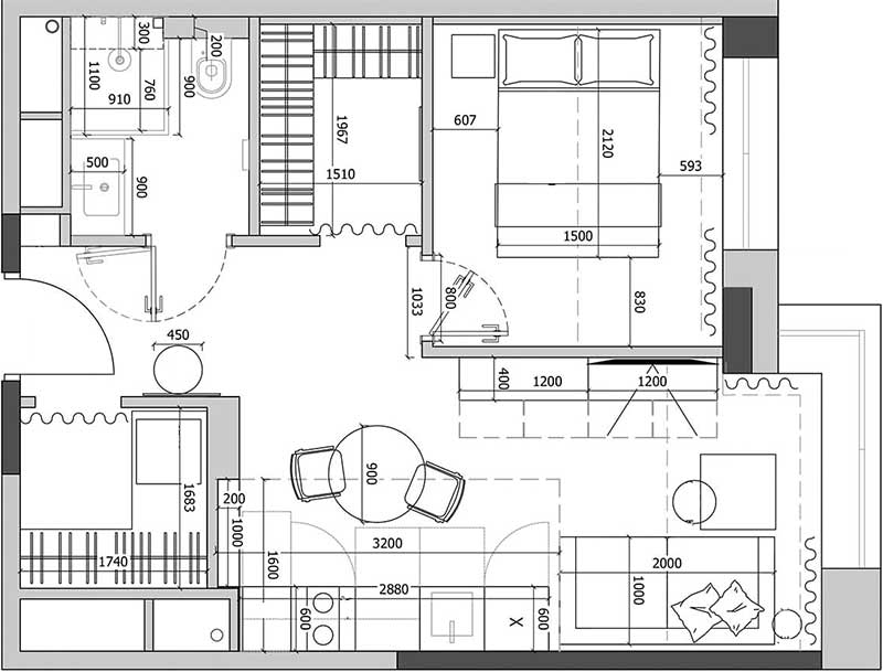
A tervezési folyamatot a felelősségteljes térszervezés jellemezte: a cél egy olyan kompakt, mégis lélekkel teli élettér létrehozása volt, amely hűen tükrözi lakója személyiségét, ugyanakkor minden négyzetcentimétert racionálisan hasznosít. A gondos alaprajzi elrendezésnek köszönhetően a 37 m²-es lakásban helyet kapott két gardróbhelyiség, egy fürdőszoba, egy szeparált hálószoba, valamint egy kényelmes, amerikai konyhás nappali is.
A térkialakítás egyik legegyedibb építészeti megoldása a hagyományos nyílászárók részleges elhagyása: a beltéri ajtók egy részét sűrű szövésű textíliák váltották fel. A tervező tudatosan távolodott el a múló trendek kényszeres követésétől; a prioritás egy olyan időtálló, békés háttér megteremtése volt, amely a mindennapi élet nyugalmát szolgálja.
A vizuális térnövelés legfontosabb eszközeiként a tükrök jelennek meg, amelyek elmossák a helyiségek közötti éles határokat, és levegősebbé, tágasabbá teszik az összhatást. A projektben a tárolási funkciók is változatosak: a zárt szekrényrendszereket nyitott polcok váltják, teret engedve a dekorációnak – a tulajdonos kedvenc vázáinak és dísztárgyainak.
Ez is érdekelhet: Egyedül élő édesanyjának újíttatta fel a kis 30 m2-es lakást a fiatal nő
A beépített bútorok egységes, fa hatású felületeket kaptak. A frontok meleg árnyalata kiválóan ellensúlyozza és kiemeli a kanapé kárpitjának mélyzöld tónusát, valamint a terrakotta függönyök elevenségét. Az enteriőr kifinomultságát az egyedi világítástechnikai megoldások koronázzák meg: a hálószobában elhelyezett kézműves kerámia falikarok, az előszoba travertin lámpateste, valamint a boltíveket hangsúlyozó rejtett hangulatvilágítás.
további cikkek kis lakás berendezése témában | lakberendezés: Lina Knyazeva | fotók: Liza Gurovskaya
























