Ez a 29 négyzetméteres lakást az egyedül élő fiatal tulajdonos igényeit figyelembe véve alakította ki a lakberendező. A tervezés során a cél egy kompakt, mégis minden életteret (hálószoba, nappali, munkahely, konyha) kényelmesen integráló, funkcionális otthon megteremtése volt. Az átgondolt térszervezésnek és tárolási megoldásoknak köszönhetően a lakás a kis alapterület ellenére is tágas és kényelmes otthon benyomását kelti.

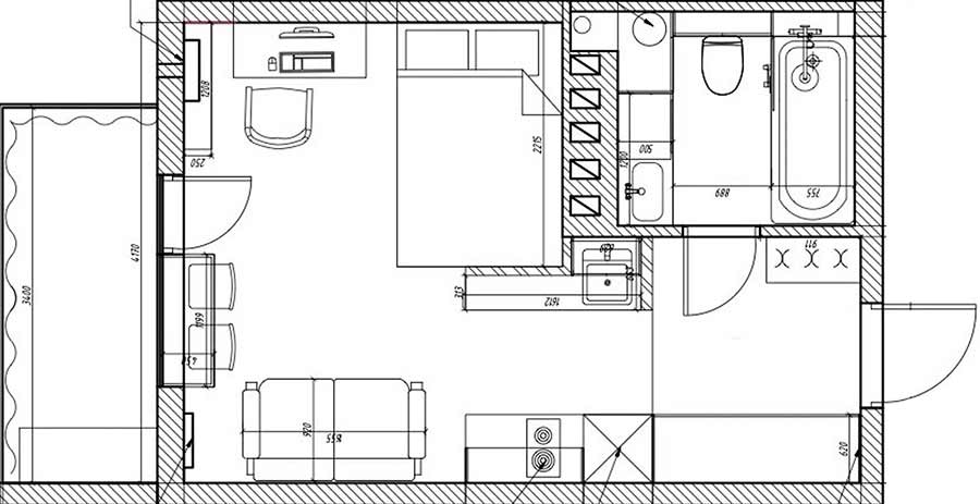
Alaprajz és előtér
A lakásba lépve egy hűvös kék árnyalatú előtér fogad, melynek padlóját terrazzo hatású greslap burkolja. A tárolásról egy teljes falat elfoglaló, tükrös frontokkal ellátott beépített szekrény gondoskodik. A tükrök tágítják a szűk teret, a szekrény belső osztása pedig pedáns rendet biztosít a ruházatnak, a mindennapok során használt dolgoknak és a háztartási kiegészítőknek.
Konyha
Az eredeti alaprajzot felülírva a konyha az előtér és a szoba közötti átjáróba került. Ezt a zónát egy merész, terrakotta színblokk emeli ki, amely vizuálisan kijelöli a funkciót és beljebb az ágy fülkéjének hátterét is adja. A konyhabútor két párhuzamos részből áll. Az egyik oldalon a mosogató kapott helyet, amely alatt egy 620 mm széles modulba rejtették a kompakt mosogatógépet és a víztisztítót. Szemben a fő munkapult, a főzőlap, valamint a hűtőt és a kombi sütőt magába foglaló magas elem található. A vasbeton falak miatt a konnektorok praktikus módon a pult oldalsó lezárására kerültek.
Nappali a funkcionális zónákkal
A lakrész központi terét a nappali és a dolgozósarok kettőse foglalja el. A padlón strapabíró, világos fa hatású kvarc vinyl burkolat fut végig, a falak alapszíne pedig egy lágy bézs. A berendezés egy kanapéból, egy nyitott polcos állványból és egy kompakt munkaállomásból áll. Az itt található íróasztal a tulajdonosok korábbi bútora, melyet speciális bútorfestékkel festettek át, hogy tökéletesen illeszkedjen az új színpalettához (szürkéskék, terrakotta, bézs és grafit). Az ablakpárkányt kibővítették, ami így két székkel kiegészítve étkezőpultként funkcionál.
Hálófülke
A háló funkciót egy ötletes építészeti megoldással különítették el: az ágy a térelválasztóként funkcionáló, a konyhával közös falnak köszönhetően kialakult fülkeszerű bemélyedésbe került. Ennek a “kuckónak” a hátfalát a konyhánál már látott terrakotta szín határozza meg, meleg és védett atmoszférát teremtve. A választott ágy felnyitható mechanizmussal rendelkezik, így alatta bőséges tárolóhely nyílik az ágyneműk számára.
Ez is érdekelhet: Okos tervezés: a 29m2-es pici lakásban még külön hálószoba és külön konyha is van
Fürdőszoba
A fürdőszoba a méretei ellenére teljes értékű. A padlót és a falakat az előtérből ismert terrazzo greslap borítja, világoskék falfestéssel kombinálva. A helyiségben a kád, a mosdószekrény és a mosógép mellett egy mennyezetig érő sarokszekrény is elfért – ez utóbbi rejti a keskeny vízmelegítőt, valamint helyet biztosít a felmosóeszközöknek és a háztartási tisztítószereknek is.
további cikkek kis lakás berendezése témában | lakberendezés: Anna Evdokimova | fotók: Andrey Shishov





























