A lakberendező panelházban alakított ki világos és romantikus otthont egy fiatal doktornő számára. A tervezés fő szempontja a hálószoba, gardrób és egy kényelmes pihenősarok egy helyiségbe rendezése volt. Az enteriőr kontrasztos színvilágot kapott: a mély kék és a finom rózsaszín párosa uralja a dekorációt. A kék az erőt és a magabiztosságot szimbolizálja, míg a rózsaszín a nőiességet és a lágyságot hozza el a térbe. Ez a harmonikus kombináció tökéletesen tükrözi a megrendelő egyéniségét és karakterét.

Kihívások és megoldások egy panelházban
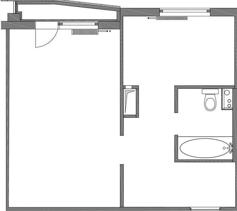
Ennek a lakástípusnak sajátossága, hogy az összes belső válaszfal teherhordó, így komolyabb átalakításra nincs lehetőség – mindössze egy kis gardrób leválasztására nyílt mód. A tervező ennek ellenére funkcionálisan jól tagolt tereket alakított ki: a lakás szobájában elhelyezett egy kényelmes franciaágyat, pihenő- és olvasósarkot rendezett be heverővel. A különálló konyhában van elegendő tárolóhely és étkezőasztal, az előszoba tágas, a WC-vel kombinált fürdőszoba káddal szerelt.
Finom részletek, erőteljes hatás
A hálószoba és a konyha falai világos alapszínt kaptak, amely tökéletes hátteret biztosít a karakteres bútoroknak és a gondosan válogatott kortárs műalkotásoknak. Az előszobában ezzel szemben egy mély kék tónusú falszín dominál. A hálóban és a közlekedőben elhelyezett díszlécek dinamikát és térbeli mélységet adnak az enteriőrnek.
Kényelmes olvasósarok és romantikus fürdőszoba dekoráció
A hálószobában egy külön kis olvasó- és dolgozósarok is helyet kapott: egy rózsaszín chaise longue (heverő) teremti meg a kényelmes környezetet az elmélyült olvasáshoz, munkához vagy hobbihoz. Ez a nyugodt sarok tökéletes választás, ha valaki egy könyvvel a kezében szeretne feltöltődni.
A lakó számára a legkedvesebb bútordarab egy klasszikus vonalvezetésű, sötétkék, díszes fejtámlával ellátott franciaágy, amely hívogató megjelenésével ideális pihenőhelyet kínál a hosszú, fárasztó napok végén.
A fürdőszoba vidám, hangsúlyos kialakítást kapott: a fürdőkád melletti falon elhelyezett virágmintás burkolat romantikus hangulatot áraszt, és visszautal az enteriőr egészére jellemző tavaszi virágtematikára, amely a falakon elhelyezett műalkotásokban is visszaköszön.
további cikkek kis lakás berendezése témában | lakberendezés: Nadya Volk | fotók: Jevgenyij Kurapov





























