A jó dizájn nemcsak esztétikus, hanem praktikus is. A lakberendező a kis 36m2-es lakás felújítása során kiemelt figyelmet fordított az ergonómiára és a felhasznált anyagok minőségére, hogy az ingatlan hosszú távon értékálló és egy esetleges eladásnál kifejezetten vonzó és kiemelkedő választás legyen.
.
A lakásfelújítás előtt ezek voltak a tulajdonos kérései:
- Univerzális, mégis személyesnek érezhető, könnyen alakítható enteriőr
- Világos tónusok, természetes textúrák és különleges részletek használata
- Minél több tárolási lehetőség kialakítása
- A kis lakásban megőrizni a tér tágasságának érzetét
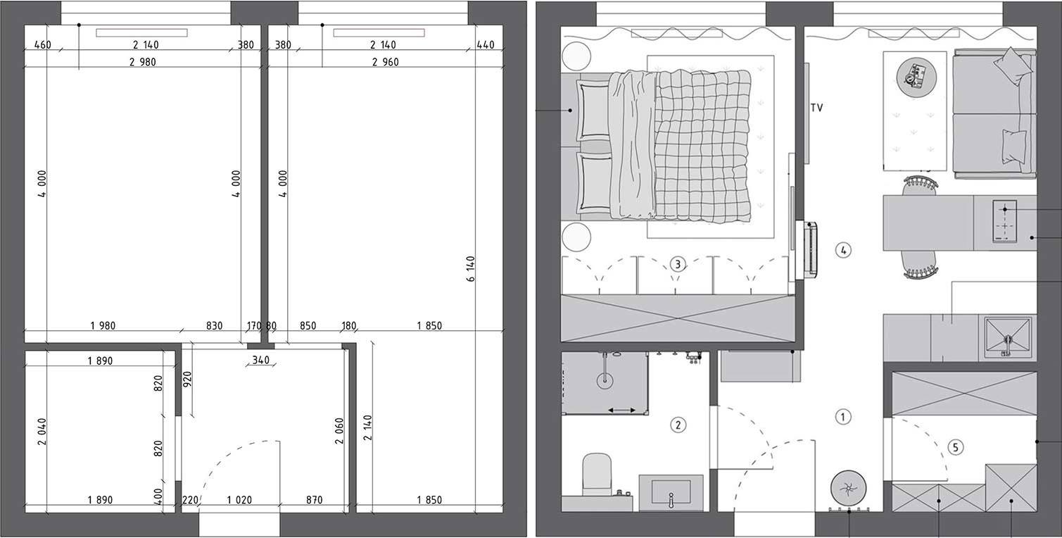
A térszervezés logikája
Az új építésű lakásban a tervezés üres, szabadon alakítható betonszerkezetből indult, amelybe a nagy ablakoknak köszönhetően bőven jutott természetes fény. A hálószoba ajtaját az előszobából a konyha-nappaliba helyezték át, és az eredeti ajtó helyén látványos falrészt alakítottak ki tükörrel. A konyha eredetileg kijelölt helyén egy gardróbhelyiséget alakítottak ki, míg a konyhát kissé előrehozták.
Előszoba
Az előszoba világos tónusai követik a lakás egységes színvilágát. A padlóra fa hatású kvarc vinyl burkolatot választottak. A bejáratnál egy fiókos konzolasztal található, amely alatt cipőtárolási lehetőség is van. Mellette egy színes plüss puffot helyeztek el, fölötte ruhatartó kampók vannak. A tükrös felület beépített világítással rendelkezik.
Konyha-nappali
A világos falak harmonikusan olvadnak össze a konyhabútorral és a matt, finoman texturált kőmintás munkalappal, ami könnyedséget és tágasságérzetet kelt. A konyha központi eleme egy bárpult / félsziget, amelyen főzni és étkezni is lehet. Az alatta elhelyezett fiókok praktikus tárolóhelyek. Egy 60 cm-es oszlopba sütő-mikrohullámú sütő kombinációt és egy 45 cm széles kompakt mosogatógépet építettek be, mellette pedig egy beépített hűtő kapott helyet. A tér hangsúlyos elemei a grafit színű bárszékek.
A nappaliban a falakkal egyező tónusú, íves profilú díszlécek a világítás hatására érdekes árnyjátékot hoznak létre. A helyiség központi eleme egy kompakt, kinyitható kanapé. A falon lévő sötét üvegű fali lámpák különlegessége, hogy fényerősségtől függően változik a vizuális hatásuk.
Hálószoba
A hálószobában a fő látványelem az ágy mögötti fal, amelyet domború duropolymer panelekkel díszítettek. A mennyezetbe süllyesztett LED-szalag lágy esti fényt és árnyjátékot biztosít. A panelek kialakításánál figyeltek arra, hogy ne kelljen őket vágni vagy túlzottan alakítani, ezáltal könnyű volt a telepítésük. Az egyedi beépített szekrény a gardrób mellett további tárolási lehetőségeket biztosít. Színe szinte teljesen azonos a falakéval, így homogén felület jött létre.
Az ággyal szemközti falon dekoratív lámpák hoznak létre látványos árnyjátékot. A fő világítás mennyezeti sínrendszerrel van megoldva, az egyik éjjeliszekrény fölött elhelyezett függőlámpa pedig helyi hangulatvilágítást ad.
Gardrób
A 3 m²-es gardróbhelyiségben elhelyeztek egy nagy beépített szekrényt, amelyben polcok, ruhatartó rudak, fiókok és cipőtárolók vannak. Külön részként alakították ki a mosási zónát mosógéppel, valamint a takarító- és háztartási eszközök tárolóhelyét.
Fürdőszoba
A fürdőszobában kőhatású kerámia burkolat és festett falak kombinációját alkalmazták, míg a padlót terrazzo mintájú greslapok borítják. Praktikus tárolási lehetőséget biztosít a fiókos mosdószekrény, fölötte világítással ellátott tükör van. Az enteriőr különleges eleme egy dekoratív, bordázott üvegű lámpa.
további cikkek kis lakás berendezése témában | lakberendezés: Evgeniya Akimova | fotók: Ekaterina Geits





































