Erősen elavult, de egyedi hangulatú kis garzon teljes felújítását vezényelte le a lakberendező. Az új enteriőr kiindulópontját a lakásba eredetileg beépített szekrények mesés ornamentikájú ajtói adták. Ezeket gondosan restaurálták, a retro hangulat pedig a burkolatokban és a bútorválasztásban is visszaköszön. Lássuk, mi lett az eredmény.

A projekt célkitűzései között szerepelt az eredeti adottságok megőrzése: az alaprajz, az eredeti ablakok, a kiugró ablakfülke és a beépített szekrények ajtajának megóvása.
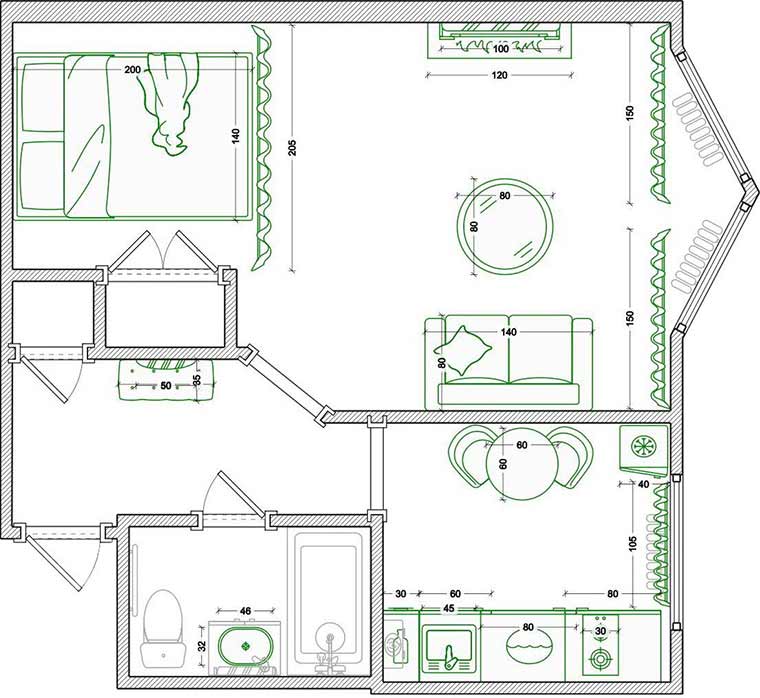
Az elosztás
A felújítás során az eredeti alaprajzon nem változtattak, csupán a beltéri ajtókat távolították el. A lakásban konyha, előszoba, fürdőszoba WC-vel és egy szoba található, amelyet hálófülkére és nappalira osztottak. A háló egy textilfüggönnyel választható le a nappali térről.
Előszoba
Az előszobában élénk, virágmintás tapétát használtak. A tárolást egy, az eredeti tervekben is szereplő beépített szekrény biztosítja, a szekrény belső falait szintén tapétával borították. Az enteriőrt egy puff és egy tükör teszi teljessé.
Ez is érdekelhet: Régi bérházra jellemző szokatlan elrendezésű garzonlakás hangulatos berendezéssel
Konyha
A konyha a felújítás előtt:
A konyha letisztult, minimalista stílust kapott, a felső szekrények elhagyásával a tér szellősebbé vált. A tárolás az alsó elemekben összpontosul, az egyik szekció a mosógép számára van fenntartva. A vöröses-kékes árnyalatú, kompozit kőből készült konyhai hátfal stílusos vizuális kontrasztot teremt.
Tipp: A mennyezet élénk árnyalata dinamikát kölcsönöz és vizuálisan tágítja a helyiséget.
Hálófülke
A hálófülke a felújítás előtt:
A háló egy alkóvban kapott helyet. A falakat itt virágmintás tapéta borítja, a fülkét egy sötétítőfüggöny választja el a nappali tértől.
A falfülkékbe beépített szekrények az eredeti alaprajz részei. Ezeket nem bontották le, hanem modern tárolórendszert alakítottak ki bennük. Ebben a lakásban az egyik szekrény a hálóban, a másik az előszobában található. Az ajtókat gondosan restaurálták – ezek a 60-as évek kézműves munkái, ami különleges bájt és történelmi értéket kölcsönöz az enteriőrnek.
Ez is érdekelhet: Látványosan berendezett sarok garzonlakás egyedi elrendezéssel, 36m2
Nappali
A szoba a felújítás előtt:
A szoba fókuszpontja a nagyméretű, kiugró ablakfülke, amelynek köszönhetően tágasabbnak érződik a tér és természetes fényben sincs hiány. Az ablakkeretek jó állapotban voltak, így nem cserélték ki őket, csupán felújító festést kaptak. A nappali zóna az ablak előtt lett berendezve kis kanapéval és dohányzóasztallal, a szemközti falon hangulatos álkandallóval.
Fürdőszoba
A fürdő a felújítás előtt:
A fürdőszobában a falakat csempe és tapéta borítással díszítették. Utóbbi felületét vízálló, átlátszó akril lakkal vonták be a teljes védelem érdekében. Az öntöttvas kádat felújították. Különös figyelmet fordítottak a csaptelepek kiválasztására, amelyek tovább erősítik az enteriőr vintage hangulatát.
további cikkek kis lakás berendezése témában | lakberendezés: Elena Vertiy | fotók: Alexander Maken


































