A tejfehér árnyalatok és a mély borvörös szín párosítása régóta foglalkoztatta a projekt tervezőjét, és ebben a 35 négyzetméteres lakásban testet ölthetett az elképzelés. Feladat volt a korlátozott költségvetés betartása, a kis alapterületen az elosztás javítása, és egy dolgozósarok kialakítása.

Térszervezés
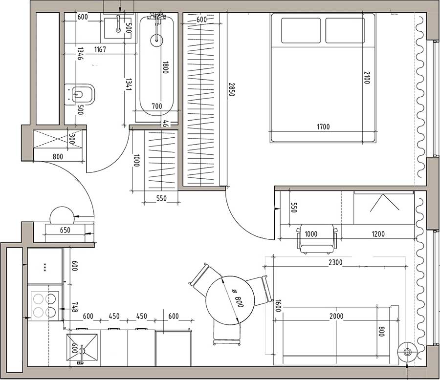
Az ingatlan elrendezése kétszobás: egy amerikai konyhás nappali, egy külön hálószoba és egy fürdőszoba alkotta a tereket. A tervező egyetlen, ám annál praktikusabb változtatást eszközölt: a hálószoba bejáratát a nappaliból nyitotta meg, így az előszobában egy teljes értékű, mély gardróbszekrény kaphatott helyet (és a hálószoba fal is optimálisan beépíthető lett szekrényekkel). Az alaprajz többi része érintetlen maradt.
Ez is érdekelhet: Így újult meg másfél hónap alatt kevés pénzből egy lelakott 35 m²-es lakás
Felületek és színek
A falakra minta nélküli, festhető tapétát vittek fel, melyet a terek alapvető hátteréül szolgáló, lágy tejfehér árnyalatra festettek. Az előszobában karakteres elemként jelenik meg a borvörös falfestés. Ez a telt árnyalat finoman visszaköszön a konyhai hátfalon is, ahol a tervezők kisméretű csempét alkalmaztak, ám a megszokott magasság feléig, egyedi mintával kirakva. A fürdőszobában is folytatódik ez a játék: a kőhatású greslapokat borvörös falfelületek egészítik ki. „A borvörös nem csupán egy aktuális trend, hanem egy tudatos választás, amely karaktert ad a lakásnak. Finom adagolásának köszönhetően nem nyomja össze a teret, inkább érettséget és egyedi atmoszférát teremt” – avat be a részletekbe az alkotó. A padlóra meleg tónusú, fahatású vinyl burkolatot választottak.
Ez is érdekelhet: Hogyan talált helyet gardróbhelyiségnek okos átalakításokkal a férfi a 35m2-es lakásban
A konyhabútor frontjai diszkréten simulnak össze a falak árnyalatával. A tervezők az egyik falszakaszon elhagyták a felső szekrényeket, teret engedve a dekoratív csempeburkolatnak és a hangulatos fali lámpáknak. A főzőlap fölött azonban a mennyezetig érő szekrények rejtik a páraelszívót és további tárolóhelyet kínálnak. A hűtőszekrény és a sütő magas szekrényelembe került, a mosogató mellé pedig egy 45 cm széles mosogatógépet integráltak.
Ez is érdekelhet: Otthonról dolgozó fiatal pár zseniális elosztással kialakított 35 m²-es lakása
A nappali központi elemei: egy kényelmes, ágyazható kanapé, dohányzóasztal és egy komód. Utóbbi bútordarab egyben a dolgozósarkot is magába foglalja, elegánsan megoldva a projekt elején kitűzött fontos feladatot.
A hálószobában a teljes falhosszon végigfutó, beépített szekrény nemcsak a ruhák tárolását oldja meg, de egy külön szekciót biztosít a vasalódeszka és a szárító számára is. A kárpitozott ágy felnyitható, tágas ágyneműtartójában további holmik is elférnek. Az ágy kárpitjának élénk, szinte pirosba hajló árnyalata – bár eltér a borvöröstől – merész színfoltként élettel tölti meg a helyiséget.
Ez is érdekelhet: Lány első saját otthona: 35 m²-es, skandináv stílusú városi lakás
A fürdőszobában a kőhatású greslapokat borvörös falfelületek egészítik ki, a mosdó alatti szekrény mellé került a mosógép, a tárolókapacitást pedig a fali WC-tartály fölé épített szekrény növeli.
Ez is érdekelhet: Fiának rendezte be a férfi a 35m2-es lakást finoman vidéki, természetes hangulattal
Az enteriőr stílusát leginkább “lágy minimalizmusként” írhatnánk le, melyben a színhasználat központi szerepet kap: a borvörös árnyalat dekorációs elemként működik, és megadja az alaphangulatot. A gondosan megválasztott, különböző textúrák és formák mélységet adnak a térnek, míg a fa meleg árnyalatai természetességgel és otthonossággal töltik meg a lakást.
további cikkek kis lakás berendezése témában | lakberendezés: @yuloo_studio





























