A fiatal nő már a kezdetektől élénk színekben gondolkodott: lila, rózsaszín és zöld árnyalatok szerepeltek az elképzeléseiben. A klasszikus egyszobás elosztású, 40m2-es lakásban – egyetlen szoba, kis konyha erkéllyel, fürdőszoba és előszoba – a semleges háttér szó szerint vászonként szolgál a színes bútoroknak, dekorációknak, textíliáknak és műalkotásoknak.

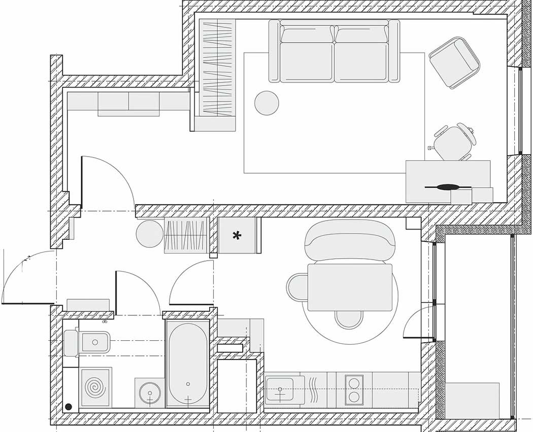
Elosztás
A lakás elrendezése klasszikus egyszobás: egyetlen szoba, kis konyha erkéllyel, fürdőszoba és előszoba alkotja. Mivel nem akartak átalakítást végezni, a tervezőknek és a tulajdonosnak azt kellett eldönteniük, hogy a szoba nappaliként vagy hálószobaként funkcionáljon-e. Végül a nappali mellett döntöttek, alvóhelyként egy ággyá alakítható kanapét választva. Kiemelten fontosságú volt a megfelelő mennyiségű tárolóhely kialakítása, beleértve egy kötelező könyvespolcot és nyitott polcokat is.
Burkolatok és dekoráció
Habár az enteriőr összképe nagyon élénk, a falak burkolata valójában semleges. A tervezők hűvös árnyalatú bézs színt használtak a falakhoz, amit barna tónusú részletekkel egészítettek ki, például az ablak körüli zónánál és a kanapé mögötti falra került lamellás panelek festésénél.
A belső tér látványát nagy méretű műalkotások, színes blokkok és stukkódíszek teszik izgalmassá. A formák lágy vonalai és a tiszta geometriai elemek együttese, a burkolatok összetett mintái, valamint a dekorációk és textilek játékossága teszi mozgalmassá és egyedivé a lakást.
Világítás
A világítás fontos dekoratív elem ebben a lakásban. A szobába rattanból készült lámpaburás csillárt választottak, ami nyugodt hangulatot kölcsönöz. A kanapé fölötti fali lámpák tökéletesen harmonizálnak a kárpittal és más aranyszínű részletekkel. A konyhában a kanapé fölött szokatlan formájú, rózsaszín rojtos falilámpa, az asztal fölött pedig kalapra emlékeztető függőlámpák találhatók. Az erkélyen aszimmetrikusan elhelyezett fali lámpák alkotnak látványos kompozíciót. A lakásban természetesen funkcionális spotlámpák is helyet kaptak.
Előszoba
A tervezők maximálisan kihasználták a tárolási lehetőségeket. Az előszobában kabátok tárolására alkalmas szekrény található, oldalán tükörrel, amely praktikus a kijárat melletti ellenőrzéshez. Az ajtó és a tükör mellett puha, falra szerelt panelek találhatók akasztókkal a napi ruházat számára. Az ajtó másik oldalán cipőtárolót helyeztek el.
Konyha
A konyha festésénél szürkés-bézs színt választottak, az étkező falát és mennyezetét pedig egy mélyebb árnyalattal emelték ki. A kanapé mögötti falat íves formájú díszlécekkel és csíkos mintával díszítették. „A kanapé mögötti csíkok a konyhai frontok színével egyeznek. A nappali díszléceinek ritmusát és színblokkjait ezzel a mintával folytattuk, a stukkódísz pedig a kanapé formáját idézi” – magyarázzák a tervezők.
A konyhabútor lineáris elrendezésű, felső szekrényei mennyezetig érnek. A bejárat mellett egy könyvek, mutatós edények és dekorációk elhelyezésére alkalmas sarokpolc található, amelyen nyitott és zárt részek váltakoznak.
Szoba
A szobában több tárolórendszer is helyet kapott. Belépve, a fal mentén könyvespolc áll: felső részei üvegajtókkal, alsó részei zárt frontokkal vannak ellátva. A polcrendszer változó méretű nyitott polcokat is tartalmaz. Ez a tároló kívülről nem látható közvetlenül a szobából, ezzel optikailag könnyítve a kis teret.
Ez a polcrendszer a ruhásszekrény része is egyben, amely a kanapé mellett található, oldalán tükörrel.
A kényelmes, kinyitható kanapé gyönyörű, élénk zöld kárpittal készült, és alvóhelyként is funkcionál. A nappali ülőbútoraihoz két dohányzóasztal tartozik (az egyik fehér, egyedi tervezésű) és egy hangsúlyos, málnaszínű fotel.
Fürdőszoba
A legfeltűnőbb burkolatok a fürdőszobában találhatók, ahol pöttyös mintájú, négyzet alakú rózsaszín csempét és geometrikus mintázatú fehér csempét használtak a kád előlapján, ezt fehér festéssel és fa hatású greslappal egészítették ki.
további cikkek kis lakás berendezése témában | lakberendezés: Denis & Olesa Tarasenko | fotók: Elena Mikhalina

































