A 43 négyzetméteres, egyszobás lakás teljes felújítása során a legfontosabb feladat a fiatal tulajdonos számára optimálisabb elosztás megvalósítása volt, külön hálószobával, kényelmes konyhával, hangulatos kis nappalival.

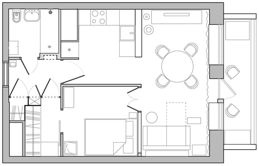
A téglalap alakú terület, melynek egyik rövidebb végén vannak csak ablakok, nem a legoptimálisabb tér a természetes fény elosztásához. Úgy kellett leválasztani a hálót, hogy ne egy sötét helyiség legyen és a lehető legkevesebb kompromisszummal a többi területre is jusson fény. A háló üvegezett új fala nem zárja be a szobát, mely két oldalról, két ajtón át is megközelíthető. Az ablakok felőli oldalra került a közösségi zóna, nappali étkező, a háló magasságában pedig a konyhát építették ki. A világos dekoráció, sok fehér, fényes és tükröződő felület szintén segít a pozitív hangulat megteremtésében. A semleges falak kiváló alapot adnak ahhoz, hogy a kiegészítők segítségével vigyen be színt a tulajdonos. A konyhában látványos és szép elem a gyöngyház fényű, csillogó mozaik falburkolat. A tárolásról főként az előszobai gardróbok gondoskodnak, de az erkélyre is kerültek további szekrények.
Alaprajz:

további cikkek kis lakás berendezése témában




























