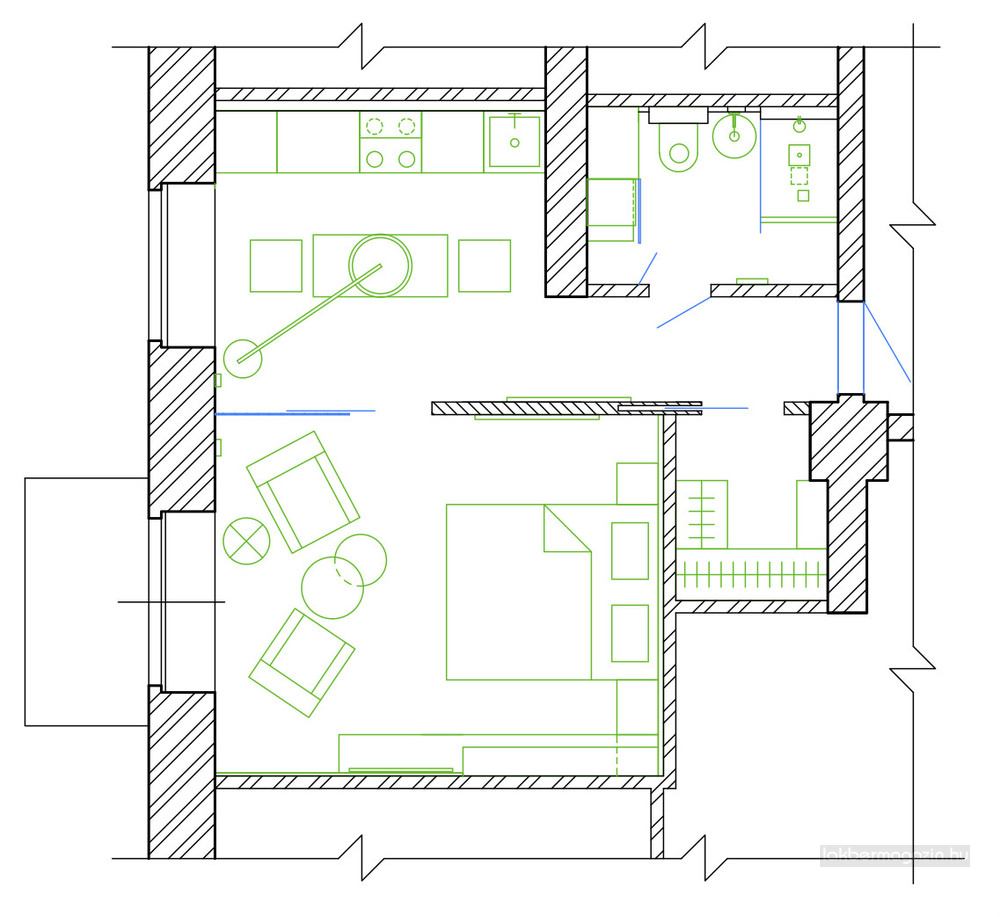
Egyedülálló hölgy megrendelésére a lakberendező néhány alapvető igény szerint tervezte meg az alábbi kis, 34m2-es lakást: elegendő tárolóhely (a bejárat mellett külön helyiségben kapott helyet a gardrób), kényelmes hálószoba, funkcionális de elegáns fürdő, étkező és konyha (utóbbi nem túl sok konyhaszekrénnyel).

Kimondott nappali rész nem volt prioritás, a kis alapterületen úgyis csak kompromisszumokkal lehetett volna megoldani – így a hálószoba kényelmes, a nappalit pedig az ablak előtt kialakított foteles, állólámpás sarok jelenti. A konyhát, étkezőt helytakarékos és látványos megoldással üveg tolófallal választották el a hálótól.
A lakberendezés elegáns, sok minőségi anyaggal és szépen kivitelezett részlettel, meleg színárnyalatokkal. Ha kíváncsiak vagytok, hogy a lakberendező milyen remek látványterveket készített a kivitelezés előtt, egy korábbi cikkünkben itt megnézhetitek: Kis 34nm-es lakás remek látványtervei >
Alaprajz:

további cikkek kis lakás berendezése témában | lakberendezés: Max Kasymov





















