Belvárosi bérházban vásárolt lakást egy fiatal pár, a lerobbant állapot teljes felújítást igényelt. A konyha átalakítását is dizájnját alaposan át kellett gondolni, mert a lakás elosztását is szerették volna kényelmesebbre hangolni, és a konyha nem szabályos alakja is nehezítette a berendezést.

A konyha területe változatlan maradt, csupán a bejárat helyét változtatták meg – a helyiség most a nappaliból nyílik. Az új ajtónyíláshoz gyönyörű kétszárnyú ajtót terveztek, az eredeti ajtó helyén pedig lehetőség nyílt toronyszekrények elhelyezésére.
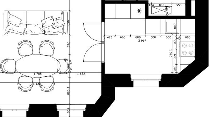
Az étkező és a konyha új elrendezése az áthelyezett átjáróval:
Az eredeti állapot:
A koncepció alapja a nappali-étkező semleges színvilágú tere, amellyel a szomszédos konyha telt kék színe harmonikus egységet alkot. A lakásban számos kontraszt – szimmetria és aszimmetria, színek, textúrák, eklektikus stílus – adja meg a belső tér szükséges dinamikáját.
A konyhabútor egyedi megrendelésre készült, a tervezők egy felső szekrények nélküli sarokbútort álmodtak meg. A bal oldali magas szekrényblokkban található a beépített hűtőszekrény, a sütő és egy fiókos kamraszekrény. A mosogatótól balra egy beépített mosogatógép kapott helyet. A gázfőzőlap alatt fiókokat alakítottak ki.
Az ablakok elé fényáteresztő római rolót helyeztek, amely engedi érvényesülni az ablak körül futó díszléceket. A karakteres kék bútor mellett nem szerettek volna hagyományos hátfalat: helyette függőlegesen rakott csempe védi a fal alsó sávját, fölötte a bútor színével egyező árnyalatra festették a falakat. Egy ferde falszakasz is nehezítette a berendezést, a mélykék falak segítenek szinte láthatatlanná tenni a helyiség szabálytalan alakját.
Az elszívónak egyedi dobozt építettek, a látványos előlap mögé rejtették el a vízmelegítőt is.
további cikkek praktikus lakberendezési ötletekkel | lakberendezés: Olga Slugina


















