Ez a 49 négyzetméteres lakás nem erős kontrasztokkal vagy látványos színváltásokkal dolgozik, hanem egyetlen, lágy tónuscsalád következetes végigvezetésével teremti meg a karakterét. A törtfehér, a krémes bézs és a finom greige árnyalatok szinte eggyé olvasztják a felületeket, amit a visszafogott arany részletek emelnek ünnepélyesebb, neoklasszikus irányba. A végeredmény egyszerre világos, puha hatású és reprezentatív.
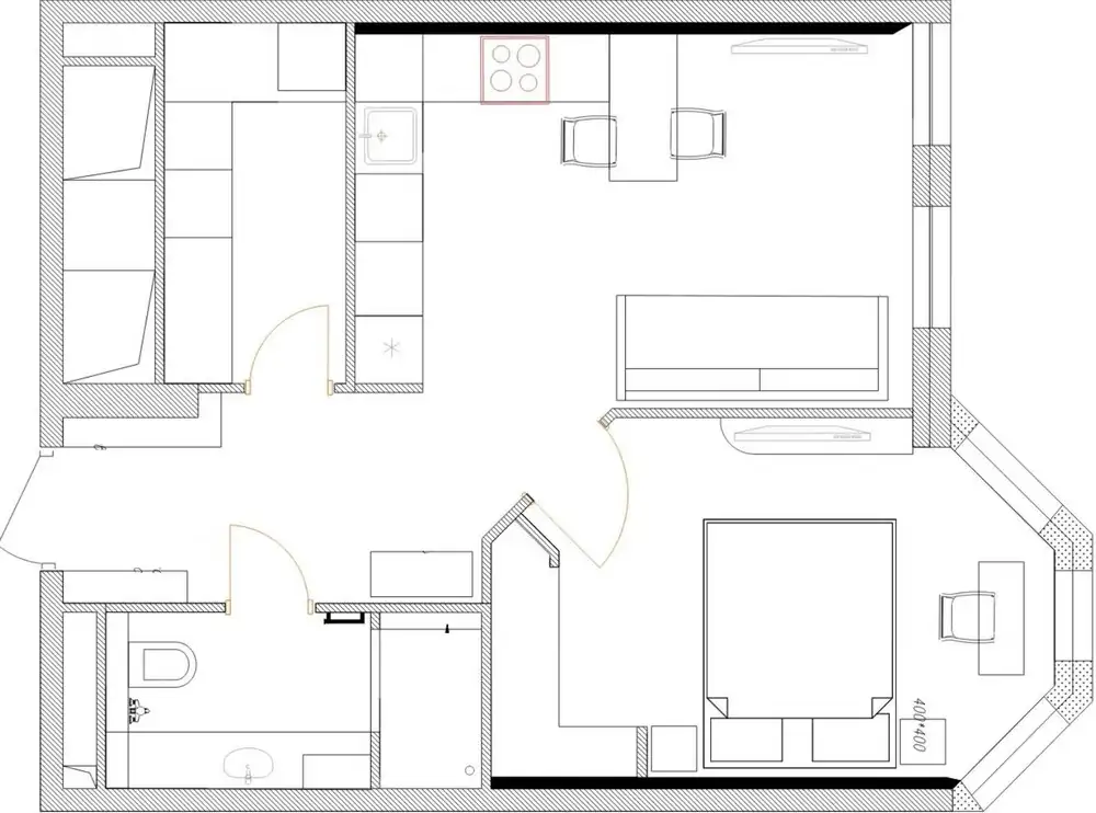
A lakberendező munkájának egyik fontos erénye, hogy a stílus itt nem különálló díszítőelemekből áll össze, hanem a teljes térszervezést áthatja. Az eredeti alaprajz finom korrekciója sokat javított a lakás arányérzetén: a közösségi zóna felé nyitottabb előtér több természetes fényt kap, a nappali-konyha rész szellősebbnek hat, a hálószoba felé visszavett fal pedig oldja a közlekedők zártságát. Ettől a lakás nemcsak elegánsabb, de élhetőbb is lett.
A neoklasszikus hangulatot a képeken jól láthatóan nem nehéz, historizáló formák adják, hanem azok kortársra finomított változatai. A falpanelek, a függőleges osztások, a keretezett felületek, az íves tükrök és a gondosan komponált világítás mind ezt az irányt erősítik. A kristályhatású csillárok és a melegfényű rejtett LED-vonalak különösen sokat tesznek azért, hogy a lakás esti arca is puha, kissé ünnepélyes legyen, mégsem válik túlzóvá.
Közben a látvány mögött erős funkcionalitás dolgozik. A háló sarokgardróbja, az előtér gardróbhelyisége és a magas szekrény azt mutatja, hogy a rendezett összkép nem pusztán dekoratív szándék eredménye, hanem tudatos tárolási rendszerre épül. A panorámaablakokat hangsúlyozó függönyvilágítás és dekorpanelek pedig tovább erősítik azt az érzést, hogy ebben a lakásban minden a fény finom tereléséről, az arányok lágyításáról és az egységes, nőiesen elegáns atmoszféra megteremtéséről szól.
további cikkek kis lakás berendezése témában | lakberendezés: @besthome.design























