Képzelj el egy 75 m²-es, modern városi lakást, ahol a tervezés célja nem csupán a funkciók kipipálása, hanem – ahogy a fiatal tulajdonosok hívják – egy igazi „csendes menedék” megteremtése volt. A tervező zseniálisan ötvözte a maximális kényelmet a praktikummal, miközben a stílust a modern klasszikus irányvonal határozta meg. Adott egy visszafogott, elegáns, klasszikus alap, amit vagány, aktuális részletekkel bolondítottak meg. A pár hallani sem akart egy sablonos bézs / pasztell enteriőrről; érzelmekre ható, színeket sem nélkülöző berendezést kértek – így kapott a tér egyedi karaktert és azt az utánozhatatlan, meleg atmoszférát, amitől azonnal otthon érzed magad.
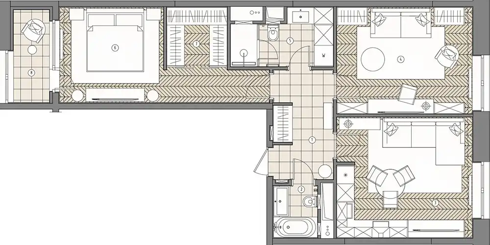
Tiszta lap: az eredeti tér és az alaprajz újragondolása
A tágas, élhető térérzet titka a kristálytiszta zónázásban rejlik. A tervező a rendelkezésre álló alapterületből kihozta a maximumot: leválasztott egy teljesen privát blokkot, a lakás szíve pedig a konyha-nappali lett. Hogy a jövőre is gondoljanak, egy külön bejáratú, rugalmasan alakítható szobát is kialakítottak. A komfortszintet egy kellően tágas előszoba, valamint a társasházi lakásokban igazi luxusnak számító két vizesblokk – egy fő- és egy vendég fürdőszoba – teszi teljessé.
Előszoba
A tágas előszobában a falakat színesre festették és elegáns díszlécekkel, stukkókkal adtak klasszikus megjelenést – ez a megoldás a lakás főbb tereiben is visszaköszön. Mivel az előszoba aktív, nagy igénybevételnek kitett közlekedő zóna, a padlóra strapabíró, látványos, fekete-fehér grafikus mintájú greslap került.
Konyha és nappali
A lakás központja a konyha-nappali tér, ahol minden a közösségi életről szól. A tárolást és a designt mesterien hangolták össze: a teljes egészében méretre gyártott beépített bútorok uralják a teret. A konyhaszekrények zseniálisan fonódnak össze a tévés zónával, egyetlen, letisztult és elegáns frontot alkotva. A beépített gépeket magas oszlopszekrények rejtik el szem elől, megőrizve a nappali szoba-jellegét, míg a felső sarokelemeknél nyitott polcokat alakítottak ki az étkészletek stílusos tárolására. A meleg, otthonos hangulatot az egész egybefüggő térben a klasszikus, „francia halszálka” mintában lerakott parketta alapozza meg.
Hálószoba
A hálószoba egy nyugodt menedék. Ez a blokk nemcsak a hálót foglalja magába, hanem egy rendkívül praktikus gardróbhelyiséget és a lodzsára nyíló kijáratot is. A falakon itt is megjelennek a világos festést karakteresebbé tévő klasszikus díszlécek, a padlón pedig folytatódik a melegséget sugárzó francia halszálkás parketta.
Vendég-, dolgozó- és leendő gyerekszoba
Ez a helyiség jelenleg teljes értékű vendégszoba és otthoni iroda, de a jövőt szem előtt tartva úgy tervezték meg, hogy bármikor könnyedén gyerekszobává alakulhasson. Hogy a tér ne legyen lapos, a falakra kétféle tapéta került, ami azonnal ritmust és dinamikát visz a szobába. A tárolást egy okos, vegyes frontokkal – részben zárt, részben dekoratív zsalus ajtókkal – ellátott rendszer oldja meg. A szoba középpontjában egy egyedi gyártású zöld árnyalatú íróasztal áll. Az igazán személyes, bájos csavart pedig a tulajdonosok saját akvarell festményei adják, amiket újra bekeretezve már most a leendő gyerekszoba falainak díszeivé tettek.
Fő fürdőszoba
A saját fürdőben a kék nyugodt árnyalatai dominálnak, minőségi greslap burkolatok formájában. Itt egyértelműen a mindennapi funkcionalitásé a főszerep: kényelmes zuhanyzó, praktikus mosdószekrény és egy bidézuhannyal felszerelt toalett kapott helyet. A tárolást és a háztartási gépek elhelyezését ügyesen oldották meg: egy kifejezetten ide tervezett, esztétikus beépített blokk nyeli el kényelmesen a mosó- és szárítógépet, hogy egyáltalán ne zavarjanak bele a spa-hangulatba.
Vendég fürdőszoba
A nedves zónák praktikus, vízálló greslap burkolatot kaptak, és a látványra sem lehet panasz. A vendégfürdő igazi karakterét az okos színválasztás adja meg: a kis formátumú smaragdzöld fali csempe azonnal rabul ejti a tekintetet. Van itt egy remek vizuális trükk is: a mennyezeti díszlécet a csempe színére festették, ami optikailag szépen megemeli a belmagasságot. Bár a tér kompakt, a tervező mindent elhelyezett, amire szükség lehet: egy kisebb kádat, egy mosdószekrényt és egy toalettet. Az asztalos által egyedileg, fafurnérból készített kádelőlap organikus természetességet visz a zöld térbe.
további cikkek 50 és 100n2 közötti lakások lakberendezése témában | lakberendezés: Andrey Nekrasov | fotók: Anton Likhtarovich



























